Ons kantoor is lid van Baerz & Co Luxury Homes; een internationaal platform dat exclusieve woningmakelaars met elkaar verbindt. Neem contact op met ons secretariaat voor meer informatie over het landelijke aanbod, waarvan u hieronder een selectie kunt bekijken.

LAGE ZWALUWE
Ameroever 64 - 4926 ED
荷兰

Lennart van Oosterhout profile image
Lennart van Oosterhout
Real Estate Agent
€1,200,000 k.k.
生活区
255m2
地块大小
1515m2
卧室
4

描述

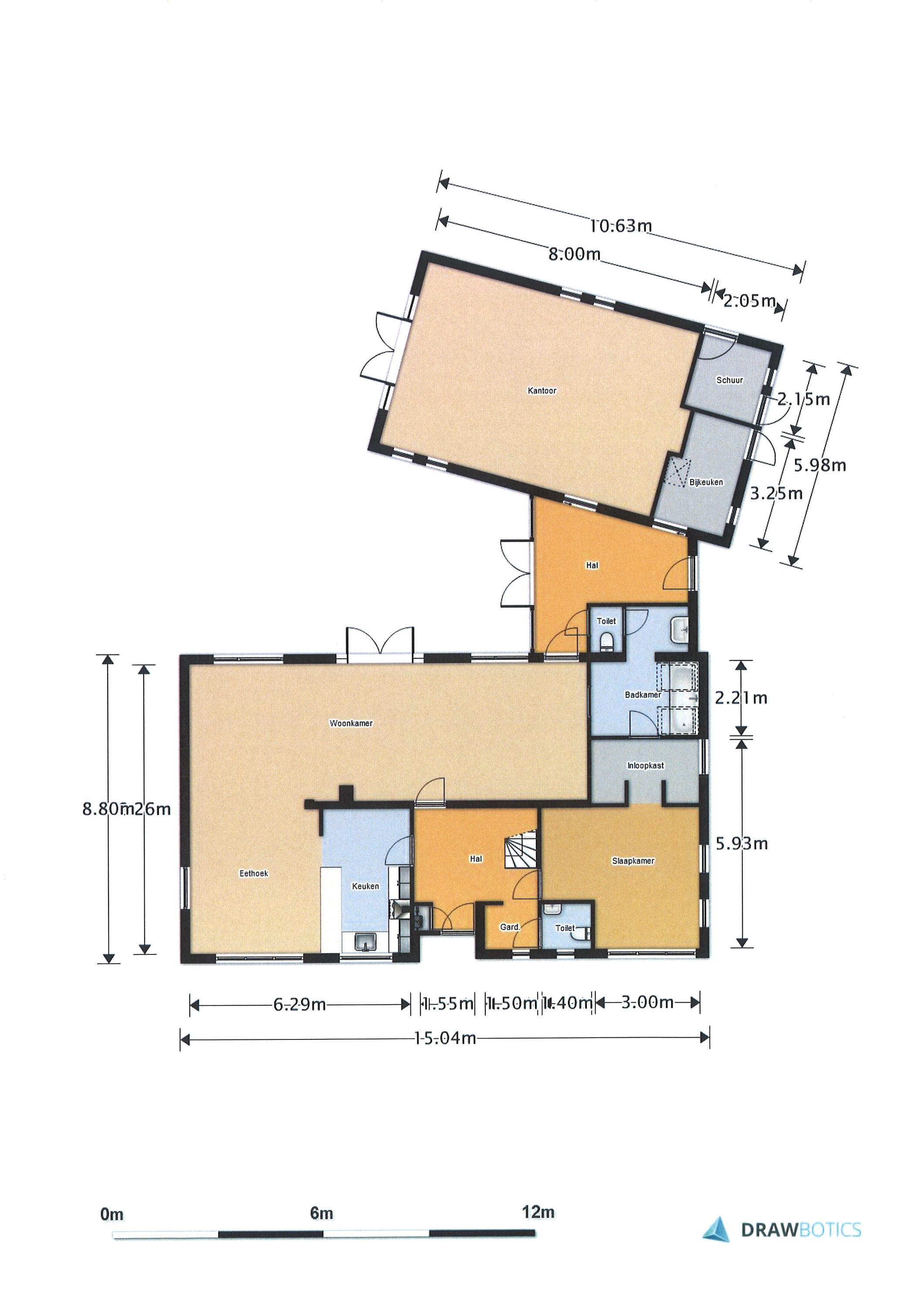
Lage Zwaluwe别墅为独栋水岸住宅,精心布局,拥有面向花园的客厅、宽敞的办公空间,以及在荷兰迷人乡村边缘的宁静氛围。这套别墅集宁谧与灵活于一体,255 m²生活空间分布于多功能、采光充足的各个房间。

花园朝向的客厅是日常生活的核心,宽大的法式门和落地窗将自然光引入室内,庭院景观和水岸与起居空间无缝相连。约42 m²的宽阔办公室或工作室位于2008年扩建部分,配备定制储物柜,挑高5.4米的天花板和直通静谧花园露台的设计,带来极致的空间感。独立入口的这一侧翼同样适合用作办公、待客或护理用途。

别墅底层设有卧室和豪华卫浴套间,营造出面向未来的舒适生活。厨房配备Lacanche燃气灶、石材台面及充裕橱柜,配合实用的杂物间和宽敞储物空间,提升整体功能性。楼上设有三间卧室和第二间浴室,均配以法式小阳台和斜顶隐藏储物空间等细节。

室外,面积达1,515 m²的花园私密性高,布局柔和,有草坪、观赏水池及多处临水露台,部分区域受成熟悬铃木遮荫。环保配置包括两台热泵、18块太阳能板、双层玻璃和屋顶保温,达到B级能效标准。电动车充电桩及丰富储物空间更彰显生活便利。

该别墅位于隐秘住宅区,邻近码头及Biesbosch国家公园,布雷达和Randstad区域交通便利。Lage Zwaluwe水岸别墅兼享隐世静谧与荷兰腹地的便捷通达。

与 Baerz 一起探索 Lage Zwaluwe,您值得信赖的私人房产顾问和搜寻专家

高端置业需要专业团队熟悉本地风俗、掌握稀缺房源并具备策略性谈判能力。顾问可助您发现鲜有公开挂牌的机会,提供中立意见与保密服务。其与建筑师、法律及公证领域关系紧密,简化繁琐流程,保障每一环节安全无忧。

避免常见陷阱

国际买家经常浪费大量时间浏览重复、过时或误导性的在线房源,尤其是因为近 30% 的豪华物业根本不会公开上市。
卖方代理代表卖方的利益,而非您的利益;甚至仅仅对房产进行咨询,都可能导致中介在未经您同意的情况下将您登记为他们的“客户”。
通过 Baerz Property Finders & Advisors,您可以完全避免这些问题。
我们只代表您,提供独立建议、透明指导,并让您接触所有可售房源,包括私人及未上市的独家机会,这些往往不会被他人看到。

想知道如何获得您自己的私人房产顾问吗?联系我们,了解我们如何代表您的利益并为您打开整个市场。

特点

太阳能面板
所有权转让
要价
€ 1.200.000 k.k.
状态
beschikbaar
接受
in overleg
建筑
房屋类型
Villa
建筑类型
vrijstaande woning
建筑时期
1977
能源评级
B
屋顶类型
zadeldak
卧室
4
浴室
2
表面积和体积
生活区
255 m2
其他室内空间
5 m2
外部储存空间
9 m2
体积(立方米)
900 m3
地块大小
1515 m2
设施
Rookkanaal
Frans balkon
Zonnepanelen
Aan water
Aan park
Aan rustige weg
Vrij uitzicht
Aan vaarwater
Baerz & Co Property Brochure

宣传册

视频

户型图

Storimans en Partners

Ginnekenweg 161
4818 JD Breda

lvanoosterhout@storimansenpartners.nl
+31 76 522 60 90

www.storimansenpartners.nl

信息/查看请求

Lennart van Oosterhout profile image
Lennart van Oosterhout
Real Estate Agent