Ons kantoor is lid van Baerz & Co Luxury Homes; een internationaal platform dat exclusieve woningmakelaars met elkaar verbindt. Neem contact op met ons secretariaat voor meer informatie over het landelijke aanbod, waarvan u hieronder een selectie kunt bekijken.

AMSTERDAM
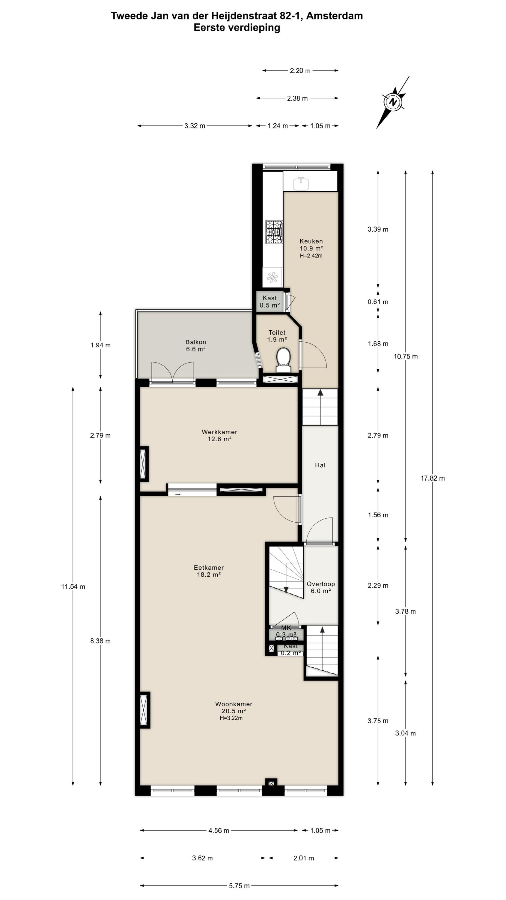
Tweede Jan Van Der Heijdenstraat 82 1 - 1074 XX
荷兰

Michiel Floberg profile image
Michiel Floberg
Real estate agent
€1,865,000 k.k.
生活区
223m2
地块大小
N/A
卧室
4

描述

Apartment Amsterdam 坐落于 Tweede Jan van der Heijdenstraat,这一De Pijp珍贵地段,223平方米宜居空间巧妙分布于三层布局。作为永久产权住宅,融合了经典格局与现代精致,设有四间卧室、家庭办公室及专属步入式衣帽间。层高及大窗设计营造通透采光,精选阳台与23平方米的屋顶露台,俯瞰城市与阿姆斯特尔河景,沐浴阳光至入夜。

宽敞厨房配备内嵌式高端电器,与中央起居区自然衔接,双层玻璃、局部地暖与空调共同营造宜人舒适。两间优雅浴室及多种储物方案,满足日常与长期居住所需。电动百叶与自然通风兼顾舒适与私密。

地处 Sarphatipark 公园和活力四射的 Albert Cuyp 市场近旁,Apartment Amsterdam 兼具本地魅力与都市通达性。地铁与有轨电车交通便捷,城市节奏近在咫尺,而归家仍是以空间、光线与低调奢华定义的静谧居所。

与 Baerz 一起探索 Amsterdam,您值得信赖的私人房产顾问和搜寻专家

驾驭阿姆斯特丹高端市场需深厚本地洞察、严密保密与谈判专业技巧。顶尖顾问可助您获取私密房源,梳理细致产权规定,并洞察那些罕见进入市场的隐藏机会。顾问团队严苛资产甄别与代表,提升协商地位、确保交易顺畅并全程保障您的隐私。

避免常见陷阱

国际买家经常浪费大量时间浏览重复、过时或误导性的在线房源,尤其是因为近 30% 的豪华物业根本不会公开上市。
卖方代理代表卖方的利益,而非您的利益;甚至仅仅对房产进行咨询,都可能导致中介在未经您同意的情况下将您登记为他们的“客户”。
通过 Baerz Property Finders & Advisors,您可以完全避免这些问题。
我们只代表您,提供独立建议、透明指导,并让您接触所有可售房源,包括私人及未上市的独家机会,这些往往不会被他人看到。

想知道如何获得您自己的私人房产顾问吗?联系我们,了解我们如何代表您的利益并为您打开整个市场。

特点

空调
所有权转让
要价
€ 1.865.000 k.k.
状态
onder bod
接受
in overleg
建筑
房屋类型
Bovenwoning
建筑类型
appartement
建筑时期
1880
能源评级
C
卧室
4
浴室
2
表面积和体积
生活区
223 m2
其他室内空间
0 m2
附属于建筑的外部空间
36 m2
体积(立方米)
772 m3
设施
Rolluiken
Buitenzonwering
Airconditioning
Natuurlijke ventilatie
Aan rustige weg
In woonwijk
Baerz & Co Property Brochure

宣传册

视频

Heeren Makelaars

Stadionweg 75
1077 SE Amsterdam

info@heerenmakelaars.nl
+31 204702255

www.heerenmakelaars.nl

信息/查看请求

Michiel Floberg profile image
Michiel Floberg
Real estate agent