Ons kantoor is lid van Baerz & Co Luxury Homes; een internationaal platform dat exclusieve woningmakelaars met elkaar verbindt. Neem contact op met ons secretariaat voor meer informatie over het landelijke aanbod, waarvan u hieronder een selectie kunt bekijken.

AMSTERDAM
Schiemanstraat 10 - 1013 MJ
荷兰

Stefano B. Djoemena profile image
Stefano B. Djoemena
Beëdigd register makelaar o.z.
€985,000 k.k.
生活区
100m2
地块大小
80m2
卧室
2

描述

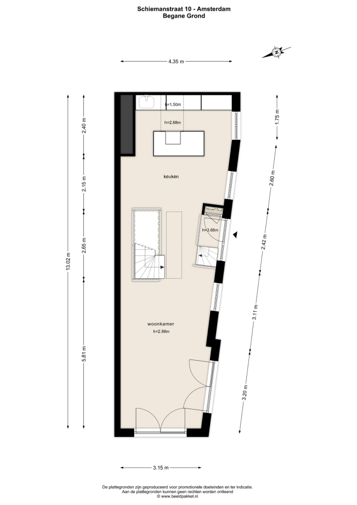
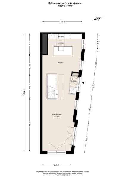
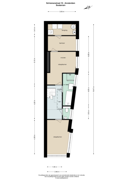
阿姆斯特丹联排公寓为您带来一份难得的机遇,让您能够居住在兼具低调建筑美学与都市活力的现代住处。这座新建、灵感源自仓储风格的建筑,位于Schiemanstraat 10,提供约100平方米的底层公寓,融合醒目的立面设计、宁静的运河景观和专属入口。建筑以经典的长砖外墙、对称的窗户及RAL 6006细致铝框为标志,而A+++级能源表现、三层中空玻璃、太阳能板以及先进的空气源热泵,共同保障了可持续的未来生活。

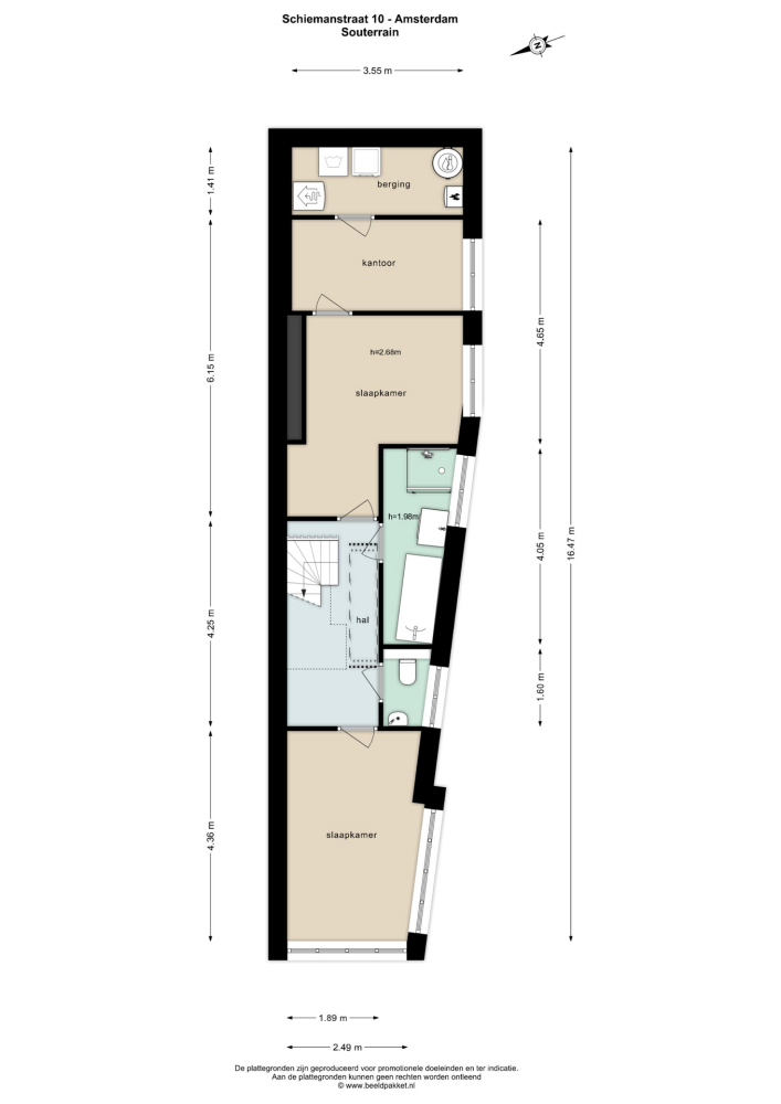
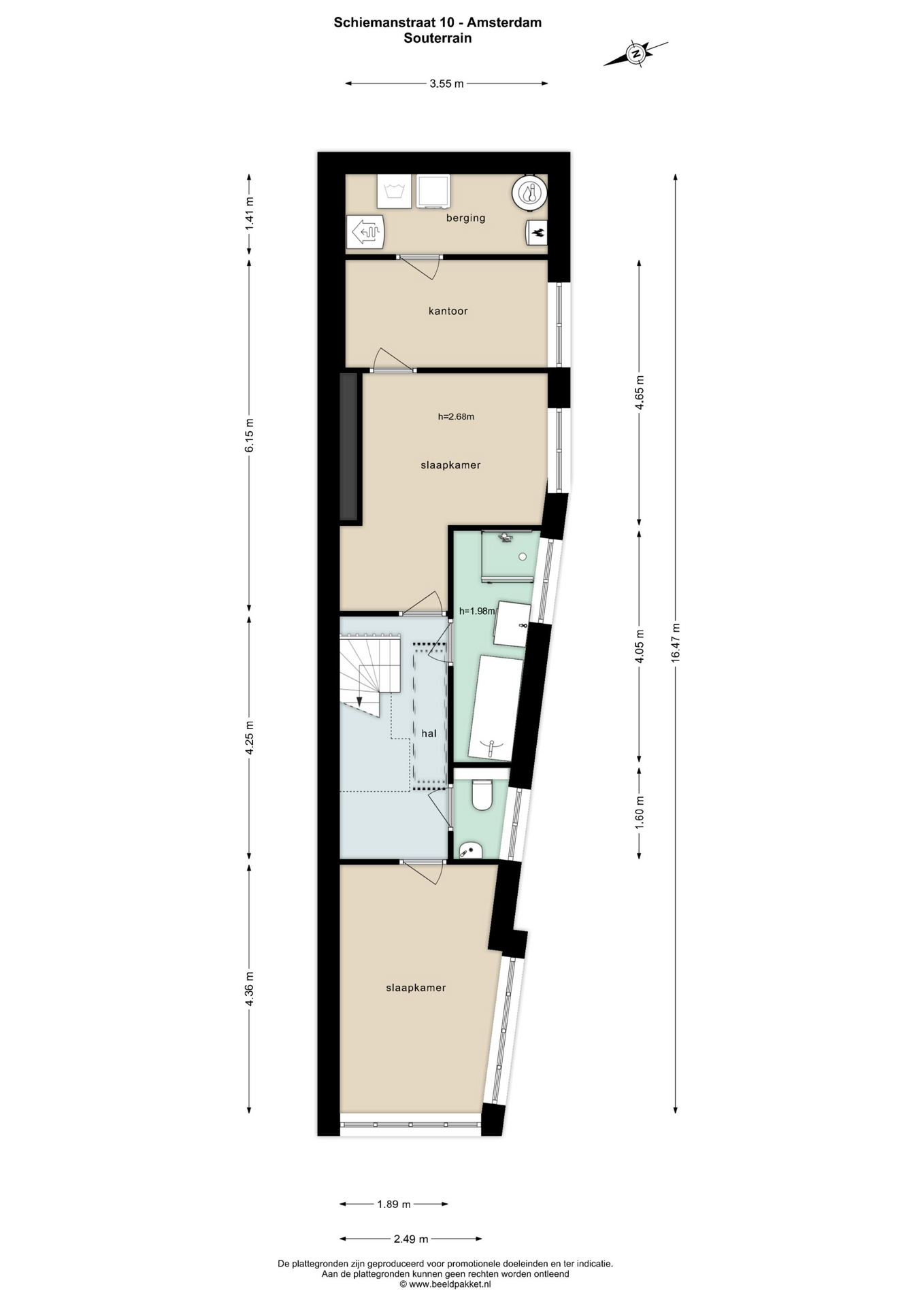
主居住层地势稍高,设有大面积临水窗户,使室内自然光充盈,层高近2.90米。法式阳台门与巧妙折叠长椅静静连接至Westerkanaal。下层为全高地下室内设两间卧室、学习区、功能室和宽敞浴室,辅以和谐的技术底板与机械通风系统。室内以毛坯状态交付,便于您自由打造个人美学风格,同时可获得Co van der Horst的专业咨询支持。

走出家门,阿姆斯特丹历史悠久的市中心沿着静谧的码头徐徐展开。Haarlemmerplein、充满活力的Haarlemmerstraat和Westerpark均步行可达,文化、餐饮与绿意交相融合。住宅还拥有便捷直达中央火车站及A10环线的交通优势。对于追求可定制归属感宅邸的人士而言,这套阿姆斯特丹的高端联排公寓既是一份宣言,也是都市中的一处心灵庇护。

与 Baerz 一起探索 Amsterdam,您值得信赖的私人房产顾问和搜寻专家

驾驭阿姆斯特丹高端市场需深厚本地洞察、严密保密与谈判专业技巧。顶尖顾问可助您获取私密房源,梳理细致产权规定,并洞察那些罕见进入市场的隐藏机会。顾问团队严苛资产甄别与代表,提升协商地位、确保交易顺畅并全程保障您的隐私。

避免常见陷阱

国际买家经常浪费大量时间浏览重复、过时或误导性的在线房源,尤其是因为近 30% 的豪华物业根本不会公开上市。
卖方代理代表卖方的利益,而非您的利益;甚至仅仅对房产进行咨询,都可能导致中介在未经您同意的情况下将您登记为他们的“客户”。
通过 Baerz Property Finders & Advisors,您可以完全避免这些问题。
我们只代表您,提供独立建议、透明指导,并让您接触所有可售房源,包括私人及未上市的独家机会,这些往往不会被他人看到。

想知道如何获得您自己的私人房产顾问吗?联系我们,了解我们如何代表您的利益并为您打开整个市场。

特点

太阳能面板
所有权转让
要价
€ 985.000 k.k.
状态
beschikbaar
接受
in overleg
建筑
房屋类型
Dubbel benedenhuis
建筑类型
appartement
建筑时期
2025
能源评级
A+++
屋顶类型
samengesteld dak
卧室
2
浴室
1
表面积和体积
生活区
100 m2
其他室内空间
0 m2
体积(立方米)
420 m3
地块大小
80 m2
设施
Mechanische ventilatie
Frans balkon
Zonnepanelen
Aan water
Aan rustige weg
In centrum
Vrij uitzicht
Aan vaarwater
 

视频

Lunshof Makelaardij Amsterdam

Keizersgracht 555
1017 DR Amsterdam

info@lunshof.nl
+31 575 55 05

www.lunshof.nl

信息/查看请求

Stefano B. Djoemena profile image
Stefano B. Djoemena
Beëdigd register makelaar o.z.