Ons kantoor is lid van Baerz & Co Luxury Homes; een internationaal platform dat exclusieve woningmakelaars met elkaar verbindt. Neem contact op met ons secretariaat voor meer informatie over het landelijke aanbod, waarvan u hieronder een selectie kunt bekijken.

AMSTERDAM
Dam 5 U - 1012 JS
荷兰

Steijn Schothorst profile image
Steijn Schothorst
Real Estate Agent
€3,900,000 k.k.
生活区
165m2
地块大小
N/A
卧室
3

描述

位于阿姆斯特丹水坝广场,这套165平方米的顶层公寓将奢华生活提升至极致。此地址为居住者提供通往城市历史核心的特权通道,可饱览皇宫及下方广场的广阔景致。在私密性、设计感与世界级舒适度的罕见结合下,专属的克拉斯纳波尔斯基大酒店五星级服务——如代客泊车、礼宾、客房送餐及家政——无缝融入日常起居,从智能家居系统到专属定制家具,每一细节尽显匠心。

搭乘电梯直达七层,顶层公寓布局开阔。钢框烟熏玻璃门与壁炉成为起居室视觉焦点,阳光透过大面积玻璃立面洒入。开放式厨房为社交核心,配备Miele全套厨电、酒柜、中岛并可通向南向露台。三间卧室均配备Hästens床品,主人套房设有步入式衣帽间及以大理石与马赛克铺设的浴室。木质地板配以地暖和顶置冷暖系统、三层中空玻璃及先进通风系统,实现全年舒适宜人。

住户不仅坐享阿姆斯特丹顶级购物与美食体验,亦可轻松抵达运河和Vondelpark等绿意空间静享安宁。实用优势还包括专属储藏室、Krasnapolsky车库专用停车位及高规格安防系统。电车、地铁及阿姆斯特丹中央车站近在咫尺,全市及国际交通畅达无忧。此在售顶层公寓,是荷兰首都核心地段难得的从容与隐逸典范。

与 Baerz 一起探索 Amsterdam,您值得信赖的私人房产顾问和搜寻专家

驾驭阿姆斯特丹高端市场需深厚本地洞察、严密保密与谈判专业技巧。顶尖顾问可助您获取私密房源,梳理细致产权规定,并洞察那些罕见进入市场的隐藏机会。顾问团队严苛资产甄别与代表,提升协商地位、确保交易顺畅并全程保障您的隐私。

避免常见陷阱

国际买家经常浪费大量时间浏览重复、过时或误导性的在线房源,尤其是因为近 30% 的豪华物业根本不会公开上市。
卖方代理代表卖方的利益,而非您的利益;甚至仅仅对房产进行咨询,都可能导致中介在未经您同意的情况下将您登记为他们的“客户”。
通过 Baerz Property Finders & Advisors,您可以完全避免这些问题。
我们只代表您,提供独立建议、透明指导,并让您接触所有可售房源,包括私人及未上市的独家机会,这些往往不会被他人看到。

想知道如何获得您自己的私人房产顾问吗?联系我们,了解我们如何代表您的利益并为您打开整个市场。

特点

Alarm system
空调
所有权转让
要价
€ 3.900.000 k.k.
状态
beschikbaar
接受
in overleg
建筑
房屋类型
Penthouse
建筑类型
appartement
建筑时期
2017
卧室
3
浴室
2
表面积和体积
生活区
165 m2
其他室内空间
0 m2
附属于建筑的外部空间
46 m2
外部储存空间
6 m2
体积(立方米)
579 m3
设施
Mechanische ventilatie
Alarminstallatie
Buitenzonwering
Lift
Airconditioning
Schuifpui
Domotica
In centrum
Vrij uitzicht
Baerz & Co Property Brochure

宣传册

视频

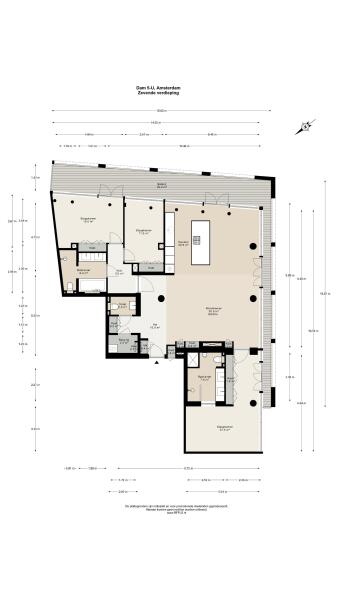
户型图

Heeren Makelaars

Stadionweg 75
1077 SE Amsterdam

info@heerenmakelaars.nl
+31 204702255

www.heerenmakelaars.nl

信息/查看请求

Steijn Schothorst profile image
Steijn Schothorst
Real Estate Agent