Ons kantoor is lid van Baerz & Co Luxury Homes; een internationaal platform dat exclusieve woningmakelaars met elkaar verbindt. Neem contact op met ons secretariaat voor meer informatie over het landelijke aanbod, waarvan u hieronder een selectie kunt bekijken.

'S-GRAVENHAGE
Hellingkade 82 - 2583 WC
荷兰

Irma Postma profile image
Irma Postma
Real estate agent
€800,000 k.k.
生活区
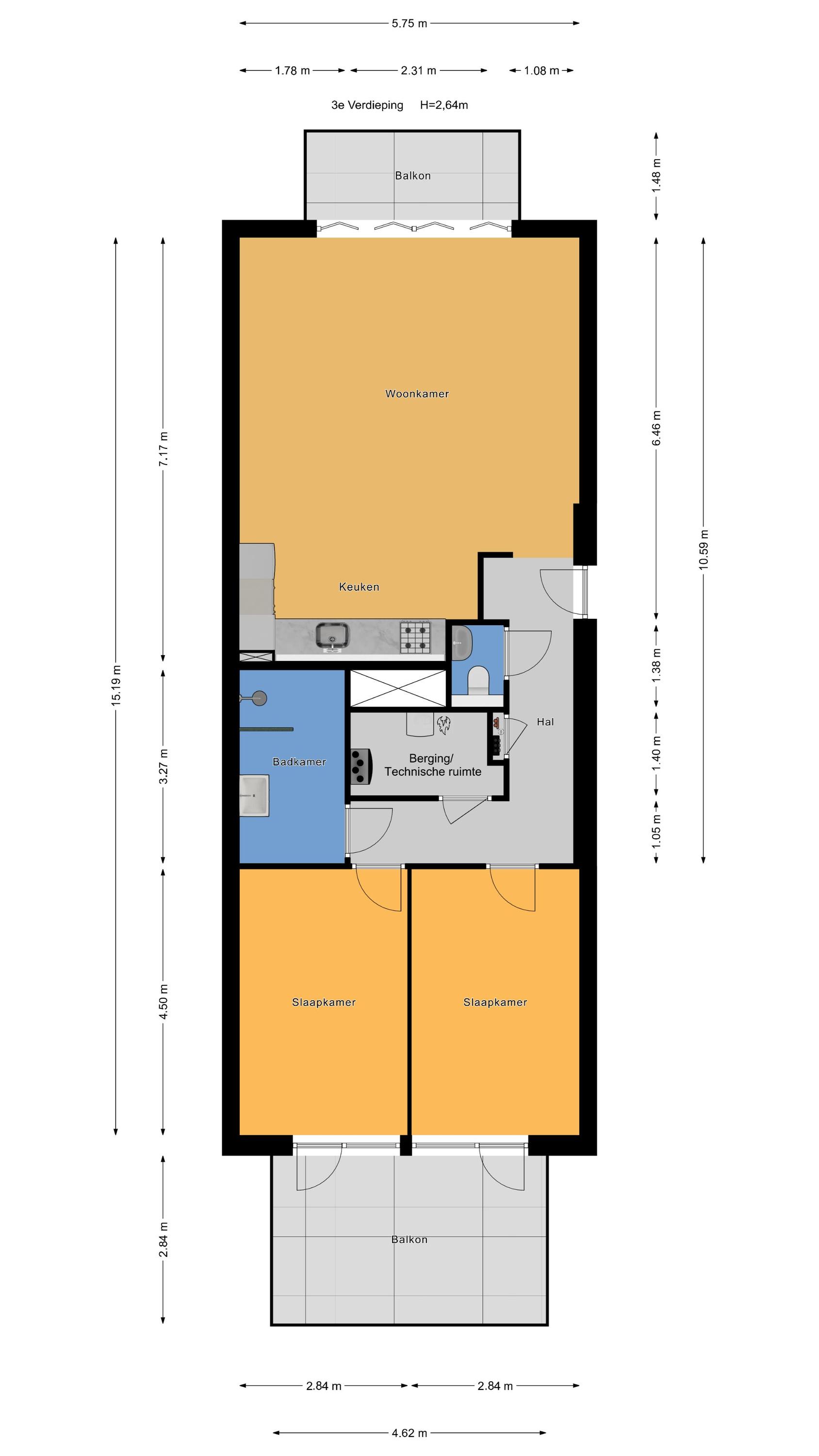
86m2
地块大小
N/A
卧室
2

描述

Scheveningen公寓提供86平方米精致沿海生活,坐落于港口之上,享有广阔海景。这套全新建成的两居室住宅位于三层,既活力四射,又保障私密性,大幅落地窗与推拉门为室内引入全景光线与水波韵律。港口景致和Scheveningen海滨长廊的活力,使日常起居与大海千变万化的情绪相连。

开放式起居空间以NEXT-125厨房为核心,配备复合台面与集成家电,包括Quooker龙头、带内置排风的感应炉灶以及组合烤箱。全屋地暖与制冷系统贯通每个空间,能源效率达A+++级。除技术间外,所有房间皆舒适宜人。南向后阳台俯瞰共用庭院,为居者带来静谧时光,且两间卧室均可直达。

住户享有专属停车位,可选配个人电动车充电桩,还设有带充电点的共用室内自行车库。公寓全方位隔热,无燃气,采用自有热泵科技,处于可持续住宅前沿。附近即有Frederik Hendriklaan精品店、海牙历史中心,以及充满活力的港口餐厅和海滩,彰显只有在Scheveningen出售的豪华公寓才能带来的尊贵生活方式。

特点

所有权转让
要价
€ 800.000 k.k.
状态
verkocht onder voorbehoud
接受
in overleg
建筑
房屋类型
Portiekflat
建筑类型
appartement
建筑时期
2024
能源评级
A+++
屋顶类型
plat dak
卧室
2
浴室
1
表面积和体积
生活区
86 m2
其他室内空间
0 m2
附属于建筑的外部空间
18 m2
外部储存空间
6 m2
体积(立方米)
289 m3
设施
Mechanische ventilatie
Lift
Glasvezel kabel
Balansventilatie
Vrij uitzicht
Open ligging
Zeezicht
Baerz & Co Property Brochure

宣传册

视频

户型图

Nelisse Makelaarsgroep

Statenlaan 128
2582 GW Den Haag

info@nelisse.nl
+31 (70) 350 14 00

www.nelisse.nl

信息/查看请求

Irma Postma profile image
Irma Postma
Real estate agent