Ons kantoor is lid van Baerz & Co Luxury Homes; een internationaal platform dat exclusieve woningmakelaars met elkaar verbindt. Neem contact op met ons secretariaat voor meer informatie over het landelijke aanbod, waarvan u hieronder een selectie kunt bekijken.

HAAFTEN
Steenweg 2 - 4175 AD
Нидерланды

Jeanette van Haaften profile image
Jeanette van Haaften
Real Estate Agent
€1,500,000 k.k.
Жилая площадь
437m2
Размер участка
1930m2
Спальни
6

Описание

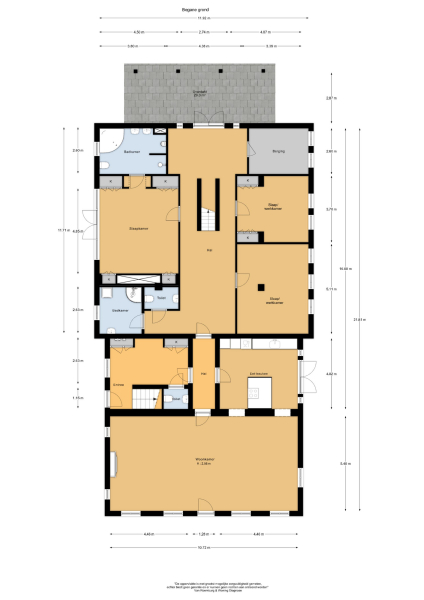
Woonboerderij Haaften представляет собой гармоничное сочетание уединения, простора и экологической устойчивости. Эта архитектурно преобразованная ферма в форме буквы «Т» с высоким сертификатом энергоэффективности A++ располагает жилой площадью 437 м², включающей шесть спален и три ванные комнаты, на участке площадью 1 930 м². Пространственная гибкость резиденции поддерживает как многопоколенное проживание, так и интеграцию рабочих зон, что отражается в двух гостиных, библиотеке и нескольких рабочих пространствах.

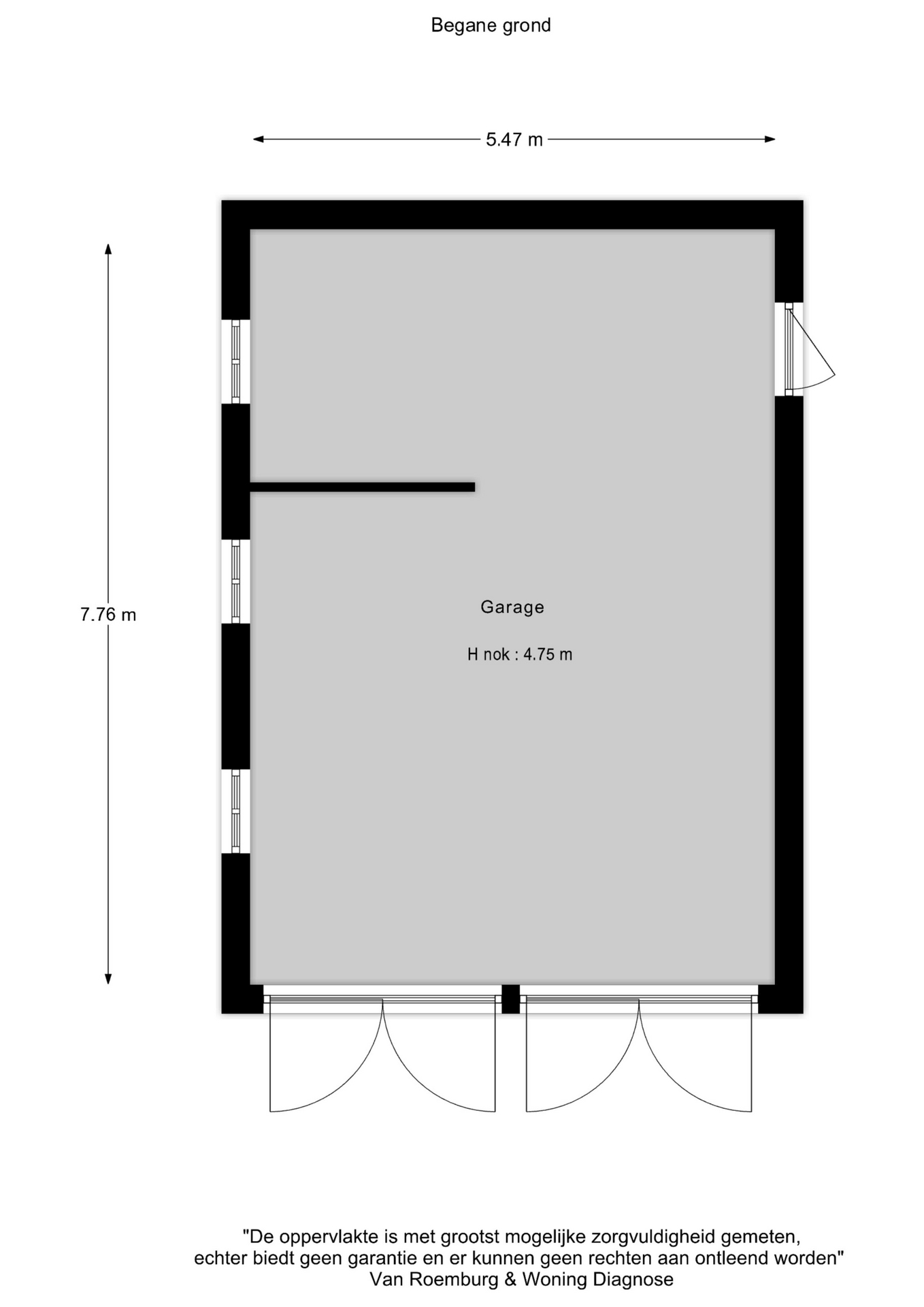
Въезд на территорию осуществляется через ворота с дистанционным управлением, за которыми открывается обустроенный приватный сад и двухместный утепленный гараж площадью 42 м² для нескольких автомобилей. Главный вход ведет в светлую гостиную с ориентацией на сад, где почти трехметровые потолки с деревянными балками и широкие окна с внутренними ставнями придают помещению атмосферу спокойной роскоши. Система тёплых полов, камин из натурального камня и индивидуальные керамические полы дополняют уровень комфорта.

Современная кухня с гранитными рабочими поверхностями, роскошным островом и новейшей техникой премиум-класса выходит на террасу, которую летом защищают от солнца раскидистые платаны. Главный люкс на первом этаже предлагает двустворчатые двери на террасу, вместительные гардеробы и ванную комнату с душем walk-in, двумя раковинами и биде. Дополнительные преимущества — еще три универсальные спальни, хозяйственная комната и две дополнительные ванные. На втором этаже — светлая библиотека, универсальная студия и спальни, каждая из которых поддерживает философию уюта и приватности.

Экологическая устойчивость обеспечена 46 солнечными панелями, энергоэффективными стеклопакетами, комплексной теплоизоляцией и тепловым насосом Nefit. Система сигнализации и надежные замки обеспечивают спокойствие. В тихом тупике Woonboerderij Haaften находится в непосредственной близости от живописных пешеходных маршрутов вдоль реки Ваал и природных резерватов, с удобным доступом до Утрехта и аэропорта Эйндховен. Это владение, определяемое неизменным качеством и уверенным чувством места.

Исследуйте Haaften вместе с Baerz — вашим надежным советником и личным поисковиком недвижимости



Избегайте распространённых ошибок

Международные покупатели часто тратят ценное время на изучение дублирующихся, устаревших или вводящих в заблуждение онлайн-объявлений, особенно учитывая, что почти 30% объектов элитной недвижимости вообще не появляются на открытом рынке.
Агенты продавца представляют интересы продавца, а не ваши, и даже простой запрос о недвижимости может привести к тому, что агентство зарегистрирует вас как своего “клиента” без вашего согласия.
С Baerz Property Finders & Advisors вы полностью избегаете этих подводных камней.
Мы действуем исключительно в ваших интересах, предоставляя независимое представительство, прозрачные рекомендации и доступ ко всем доступным объектам, включая частные и вне-рыночные предложения, которых другие никогда не увидят.

Хотите узнать, как получить собственного персонального консультанта по недвижимости? Свяжитесь с нами, чтобы узнать, как мы можем представлять ваши интересы и открыть вам весь рынок.

Особенности

Солнечные панели
Alarm system
Передача права собственности
Запрашиваемая цена
€ 1.500.000 k.k.
Статус
beschikbaar
Принятие
in overleg
Строительство
Тип дома
Woonboerderij
Тип здания
vrijstaande woning
Период строительства
2002
Энергетический рейтинг
A++
Тип крыши
samengesteld dak
Спальни
6
Ванные комнаты
3
Площадь и объем
Жилая площадь
437 m2
Другое внутреннее пространство
55 m2
Внешнее пространство, прикрепленное к зданию
29 m2
Объем в кубических метрах
1700 m3
Размер участка
1930 m2
Удобства
Mechanische ventilatie
Alarminstallatie
Rookkanaal
Dakraam
Glasvezel kabel
Zonnepanelen
Natuurlijke ventilatie
Aan rustige weg
Beschutte ligging
Baerz & Co Property Brochure

Брошюра

Видео

360 Панорамы

360°
360 Panorama - Steenweg 2
360°
360 Panorama - Steenweg 2
360°
360 Panorama - Steenweg 2
360°
360 Panorama - Steenweg 2
360°
360 Panorama - Steenweg 2
360°
360 Panorama - Steenweg 2
360°
360 Panorama - Steenweg 2

Планы этажей

Bijzonder Wonen Makelaardij

Heilige Geeststraat, 11
5301CP Zaltbommel

info@bijzonderwonen.com
+31 41 868 00 50

www.bijzonderwonen.com

Информация / Запрос на просмотр

Jeanette van Haaften profile image
Jeanette van Haaften
Real Estate Agent