Ons kantoor is lid van Baerz & Co Luxury Homes; een internationaal platform dat exclusieve woningmakelaars met elkaar verbindt. Neem contact op met ons secretariaat voor meer informatie over het landelijke aanbod, waarvan u hieronder een selectie kunt bekijken.

VEENENDAAL
Kerkewijk 169 - 3904 JC
Nederland

Wistik Zonnenberg profile image
Wistik Zonnenberg
Register Makelaar Taxateur/ Eigenaar
Price on request
Woonoppervlakte
169m2
Perceeloppervlakte
660m2
Slaapkamers
6

Omschrijving

Welkom in deze verrassend ruime en praktisch ingedeelde twee-onder-één-kapwoning met maar liefst zes slaapkamers aan de Kerkewijk 169! Deze fraaie gezinswoning biedt volop leefruimte, een moderne afwerking en een heerlijke tuin op een royaal perceel van circa 660 m².

De woning is uitgerust met 11 zonnepanelen (geïnstalleerd in maart 2023) en een Nefit Trendline-ketel, geplaatst door Zon Energie Connect Nederland. Daarmee is de woning uitstekend voorbereid op een duurzame toekomst. De installatie is al voorbereid op aansluiting op een warmtepomp, wat de woning extra toekomstbestendig maakt. Daarnaast is er airconditioning aanwezig op zowel de begane grond als de eerste verdieping, wat zorgt voor een aangenaam binnenklimaat in zowel zomer als in de winter.

De woning ligt aan de Kerkewijk, één van de mooiste straten van Veenendaal. Deze karakteristieke laan verbindt het levendige centrum met de uitvalswegen en biedt daarmee een ideale ligging. Op loop- en fietsafstand bevinden zich diverse winkels, scholen, sportvoorzieningen en gezellige horecagelegenheden. Tegelijkertijd bent u binnen enkele minuten in de natuur: de bossen van de Utrechtse Heuvelrug en de uitgestrekte weilanden rondom Veenendaal liggen om de hoek. Dankzij de centrale ligging zijn ook de snelwegen richting Utrecht, Arnhem en Amersfoort snel bereikbaar. Kortom: wonen aan de Kerkewijk betekent genieten van stadse levendigheid én rust, met alle voorzieningen binnen handbereik.
Indeling

Begane grond
U komt binnen in de entree en hal, welke beiden voorzien zijn van een authentieke granito vloer. Via de entree en hal, toilet en trapopgang betreedt u de ruime woonkamer. De grote raampartijen zorgen voor veel lichtinval. De stijlvolle gashaard vormt een echte blikvanger en creëert een luxe, behaaglijke sfeer.

Aan de achterzijde bevindt zich de royale eethoek, voorzien van airconditioning, met directe toegang tot de moderne keuken. Deze is uitgerust met diverse hoogwaardige inbouwapparatuur, waaronder een Miele stoomoven en tweede oven, inductiekookplaat, Quooker en een ruime Liebherr-koelkast. Aansluitend bevindt zich de bijkeuken met extra bergruimte, aansluitingen voor wasmachine en droger, en toegang tot de achtertuin.

Eerste verdieping
Op de eerste verdieping bevinden zich, grenzend aan de ruime overloop, drie volwaardige slaapkamers en een nette badkamer met inloopdouche, zwevend toilet, badmeubel en inbouwkast. De kamers zijn licht, ruim en praktisch ingedeeld. Diverse inbouwkasten zorgen voor extra opbergruimte. Ook deze verdieping beschikt over een airconditioning, die de gehele etage kan koelen of verwarmen.

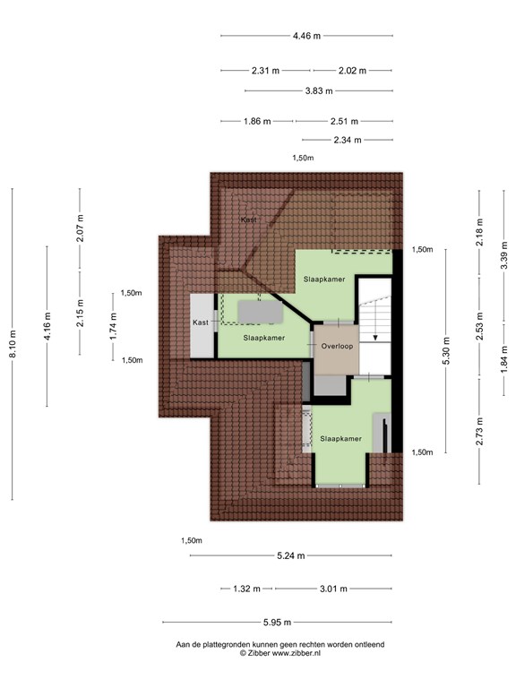
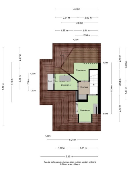
Tweede verdieping
De tweede verdieping telt eveneens drie slaapkamers, allen voorzien van dakramen of dakkapellen, waardoor er veel daglicht binnenvalt. De beschikbare ruimte is efficiënt benut met slimme bergruimtes en een praktische indeling.

Buitenruimte
De achtertuin is verzorgd en royaal opgezet; een ideale plek voor gezinnen en liefhebbers van het buitenleven. Met een diepte van circa 45 meter biedt de tuin volop ruimte om te genieten van meerdere zithoeken, zowel in de zon als in de schaduw. De indeling is fraai en functioneel ingericht met kunstgras en kleurrijke bloemenperken, die zorgen voor een onderhoudsvriendelijke en sfeervolle uitstraling.

Direct aan de woning grenst een gezellige veranda, perfect voor lange zomeravonden met een eethoek en buitenkeuken. Dankzij de ligging op het zuidoosten geniet u hier van veel zon. De tuin is via de zijkant bereikbaar. Achterin bevindt zich een royale extra berging en bij de woning zelf bevindt zich nog een aangebouwde schuur welke ideaal is voor de stalling van uw fietsen, het tuingereedschap of als hobbyruimte.

Hier kunt u het hele jaar door genieten van comfort, rust en privacy!

Geschiedenis
Kerkewijk 169 is een historisch juweel in Veenendaal. Gebouwd tijdens het interbellum, ademt dit huis de wederopbouwgeest van die tijd. De sobere architectuur en het reliëf Ora et Labora (Bid en Werk) op de gevel symboliseren de christelijke arbeidsethos die destijds diep verankerd waren in de lokale gemeenschap. Sinds 2010 erkend als gemeentelijk monument, vormt het huis een tastbare herinnering aan de Veenendaalse geschiedenis.

De Kerkewijk ontwikkelde zich van zandpad tot centrale ader van Veenendaal. In de jaren ’20 vestigden zich hier ambachtslieden, onderwijzers en winkeliers. Kerkewijk 169 bood uitzicht op een samenleving in beweging; van turfwinning naar textielindustrie, van verzuiling naar modernisering.
Het pand is een prachtig voorbeeld van een interbellum-burgerwoning met invloeden van de Amsterdamse School. Het opschrift Ora et Labora maakt het tot een uniek cultureel herkenningspunt. In de jaren ’80 zorgvuldig gerestaureerd en door de jaren heen een symbool van saamhorigheid, arbeid en geloof gebleven.

Algemene gegevens
- Type woning: twee-onder-één-kap
- Bouwjaar: 1926
- Aantal kamers: 7
- Aantal slaapkamers: 6
- Aantal badkamers: 1
- Parkeerruimte: op de oprit (3)
- Aanwezig: dakkapel/berging/schuur
- Ligging tuin: zuidoost
- Tuin bereik: opzij

Technische gegevens
- Warmwatervoorziening: Nefit Trendline (Zon energie connect Nederland) 2024 - voorbereidend tot warmtepomp
- Zonnepanelen: 11 stuks (2023)
- Gashaard
- Voorzieningen: airco/buitenzonwering/kelder
- Isolatie: gevels/dak/vloer
- Dubbel glas: HR (slaapkamer ramen niet)
- TV kabel
- Kozijnen: hout

Voor meer informatie omtrent deze woning, kunt u contact opnemen met ons kantoor in Veenendaal.

U bent van harte welkom! De beste indruk van deze woning krijgt u natuurlijk tijdens een bezichtiging. Wij proberen onze bezichtigingen altijd in samenspraak met verkoper en koper te plannen en nemen ruim de tijd, zodat u op uw gemak de woning kan bekijken en ervaren.
N.B. Aan de samenstelling van deze gegevens is maximale zorg besteed. Aan onvolkomenheden in de vermelde gegevens en tekeningen kunnen geen rechten en aanspraken worden ontleend.

Kenmerken

Zonnepanelen
Garage
Overdracht
Prijs op aanvraag
Status
Available
Aanvaarding
In Concert
Referentie
08089
Bouw
Soort woonhuis
Single Family House
Soort bouw
Semi Detached House One Roof
Bouwjaar
1926
Energieklasse
C
Soort dak
front gable
Slaapkamers
6
Badkamers
1
Oppervlakten en inhoud
Woonoppervlakte
169 m2
Overige inpandige ruimte
9 m2
Gebouwgebonden buitenruimte
29 m2
Externe bergruimte
42 m2
Inhoud
629 m3
Perceeloppervlakte
660 m2
faciliteiten
Airco
Cable Tv
Garage
Garden
Internetconnection
Outdoorawnings
Phoneline
Skylight
Solarpanels
Storageroom
Ventilation
Baerz & Co Property Brochure

Brochure

Video’s

Plattegronden

Zonnenberg Makelaardij

Kerkewijk 108
3904 JG Veenendaal

info@zonnenbergmakelaardij.nl
+31 318 559600

www.zonnenbergmakelaardij.nl

Informatie / bezichtigingsaanvraag

Wistik Zonnenberg profile image
Wistik Zonnenberg
Register Makelaar Taxateur/ Eigenaar

Een luxe woning kopen in Veenendaal

Veenendaal biedt een perfecte balans tussen rust, stedelijke elegantie en veelzijdige voorzieningen. Privacy, groen wonen en internationale connecties staan centraal, ondersteund door hoogstaande vastgoedservices voor een wereldwijde, veeleisende clientèle.