 
	        		 
								Heerlijk wonen aan het water..
Op een centrale locatie ligt deze royale half vrijstaande villa met een onder architectuur aangelegde tuin én een eigen aanlegsteiger van maar liefst 10 meter breed. Vanuit je achtertuin vaar je zo met de sloep over de Oude Rijn richting Leiden, het Braassemmermeer of de Kagerplassen. Met het Valkenburgse Meer op loopafstand én alle dagelijkse voorzieningen binnen handbereik, geniet je hier van het beste van twee werelden: ruimte en comfort, gecombineerd met een centrale ligging.
•	3 slaapkamers (mogelijkheid tot 4)
•	grote luxe badkamer
•	nabij alledaagse voorzieningen
•	parkeren op eigen terrein
Bouwjaar 1992, woonoppervlakte 162m2, inhoud 760m3, perceel 655m2
We nemen je mee…
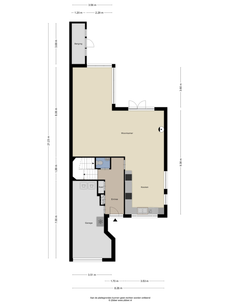
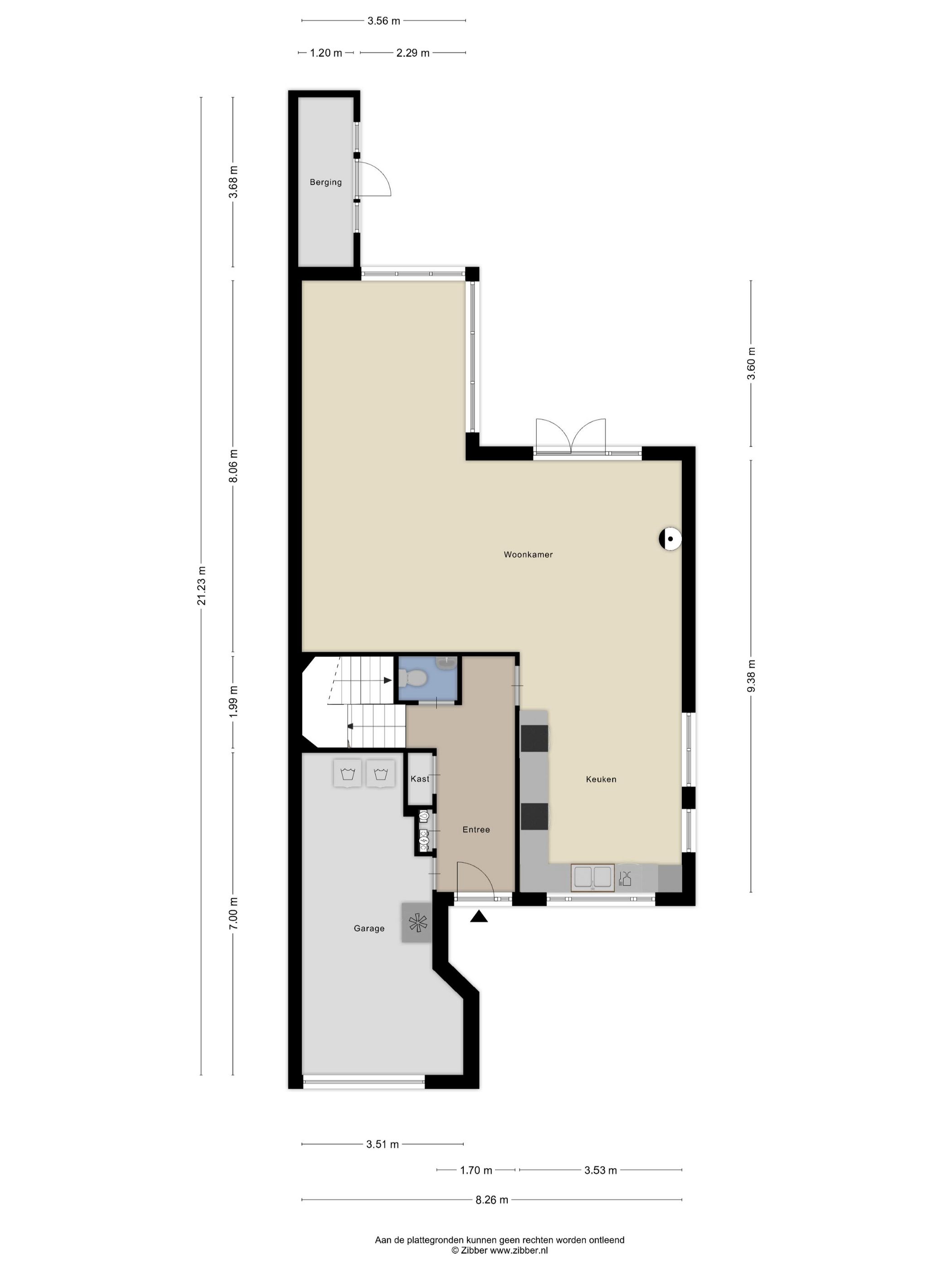
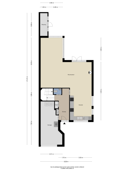
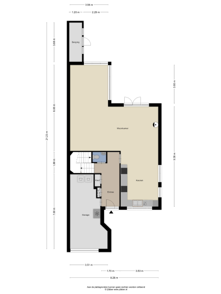
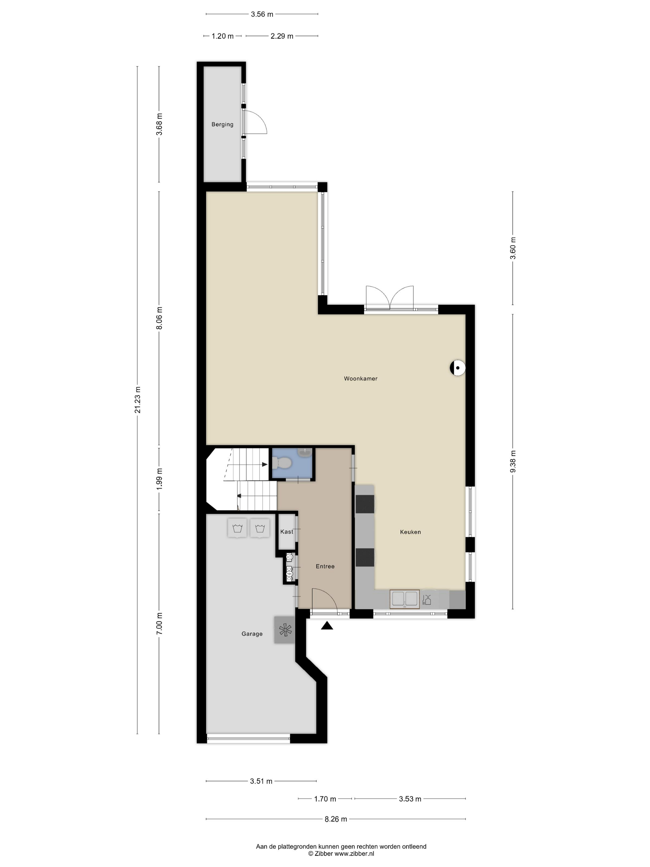
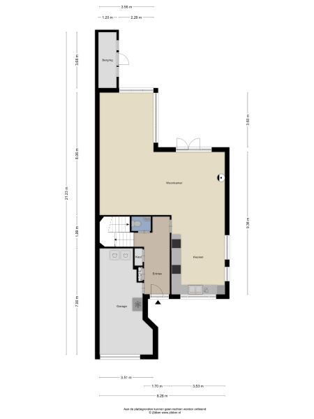
Begane grond
Je komt binnen in een ruime hal met garderobekast, toilet en bordestrap naar de eerste verdieping. De sfeervolle en royale living beschikt over een gasgestookte open haard en openslaande deuren naar de zonnige tuin. Grote raampartijen zorgen voor een prachtige lichtinval. 
De ruime woonkeuken is voorzien van diverse inbouwapparatuur en biedt volop plek om samen te koken en te tafelen. Vanuit de hal heb je toegang tot de inpandige garage met elektrische deur, waar ook de aansluiting voor wasapparatuur is gerealiseerd.
De gehele parterre is voorzien van vloerverwarming.
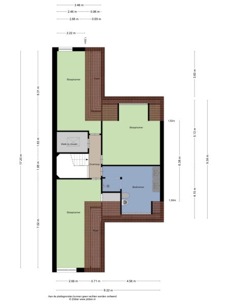
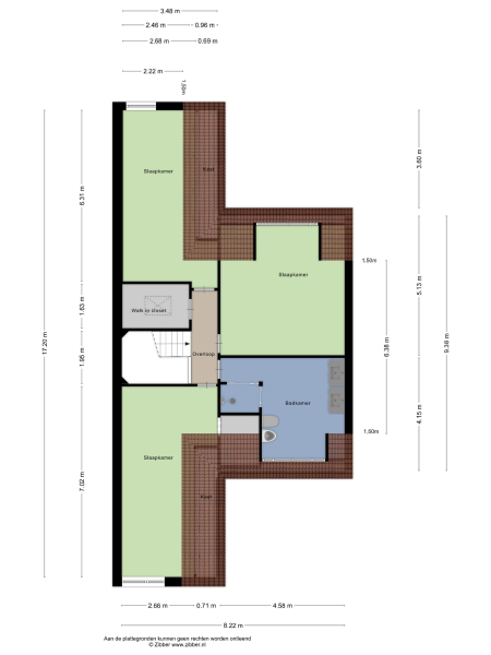
Eerste verdieping      
Hier bevinden zich drie royale slaapkamers, waarvan twee met dakkapel. De luxe badkamer (2022) is een ware eyecatcher, o.a. uitgerust met vloerverwarming, inloopdouche en dubbele wastafel met meubel. De verdieping beschikt bovendien over een praktische walk-in closet.
Bergvliering
Via een vlizotrap bereik je de ruime bergvliering, perfect voor het opbergen van seizoensspullen. Hier bevindt zich tevens de cv-installatie.
Buitenruimte
De prachtig aangelegde, zonnige achtertuin grenst direct aan vaarwater van de Oude Rijn en beschikt over een berging en een eigen aanlegsteiger. In de voortuin ligt een gezellig terras. In de middag en avond is het hier heerlijk toeven in de zon. De gehele tuin is voorzien van een sproei-installatie.  In de voortuin is parkeergelegenheid voor drie auto’s op eigen terrein.
Ligging
De woning is centraal gelegen met het bruisende stadscentrum en het CS-station van Leiden op korte afstand. Ook Amsterdam, Schiphol en Den Haag zijn in circa 20 minuten bereikbaar. Voor gezinnen zijn er meerdere scholen in Leiden en internationale scholen in Wassenaar, Oegstgeest en Voorschoten. Watersportliefhebbers kunnen hun hart ophalen met vaarwater direct bij huis en het Valkenburgse Meer op loopafstand.
       
Duurzaamheid
Deze goed onderhouden woning is gebouwd in 1992 en volledig geïsoleerd. Voorzien van HR++ glas op de begane grond en zelfs HR+++ glas op de verdieping, kunststof en aluminium kozijnen met kierdichting en comfortabele vloerverwarming. Energielabel B is aanwezig.
Bijzonderheden
•	Luxe badkamer uit 2022  
•	Op de vliering is eenvoudig een vierde slaapkamer te realiseren
•	Eigen aanlegsteiger van 10 meter breed    
•	Grote, zonnige tuin aan vaarwater
•	Ruime parkeergelegenheid op eigen terrein
•	Alarminstallatie aanwezig
•	Centraal gelegen nabij scholen, winkels en uitvalswegen
•	Energielabel B
________________________________________
Een unieke kans om royaal, comfortabel én direct aan het water te wonen in de Randstad. Neem snel contact met ons op voor een bezichtiging!
