 
	        		 
								Wonen met uitzicht op de haven, vanuit uw eigen royale terras, in een appartement met het comfort van een woning? Welkom bij Slikkenburg 1 in Tholen – een bijzonder en exclusief appartement op de begane grond, met een eigen entree én inpandige garage. Deze unieke woning biedt het ultieme gevoel van vrijheid, ruimte en luxe, direct aan het water.
Een buitengewone locatie, uitzonderlijk woongenot
Dit stijlvolle appartement is gelegen op een werkelijk unieke plek: direct aan de sfeervolle haven van Tholen. Aan de volledige waterzijde van het appartement bevindt zich een riant terras, voorzien van elektrische zonneschermen over de gehele breedte. Hierdoor kunt u op elk moment van de dag genieten van het buitenleven – met zicht op de haven en het kabbelende water als uw dagelijkse decor.
De mogelijkheid tot het aanleggen van een eigen steiger maakt dit appartement extra bijzonder. Stel u eens voor: wakker worden met uitzicht op uw eigen boot en direct het water op kunnen stappen. Een zeldzame kans voor de echte waterliefhebber.
Royaal en licht wonen
Met een woonoppervlakte van maar liefst 153 m² biedt dit appartement meer dan voldoende ruimte. De grote raampartijen zorgen voor een overvloed aan natuurlijk licht in zowel de woonkamer als de twee slaapkamers – en altijd met zicht op het water.
De woonkamer is royaal opgezet en biedt volop indelingsmogelijkheden. De keuken is functioneel en praktisch, met aansluitend een handige bijkeuken. De badkamer is compleet en comfortabel, en dankzij de directe toegang tot de garage vanuit de hal is ook praktisch gemak gegarandeerd.
Indeling in het kort:
•	Eigen entree op de begane grond
•	Inpandige garage (vanuit de hal toegankelijk)
•	Ruime woonkamer met waterzicht
•	2 riante slaapkamers met grote ramen
•	Keuken met bijkeuken
•	Badkamer met ligbad, douche en 2e toilet
•	Groot terras met zonneschermen over de volle breedte
•	Mogelijkheid tot aanleg van een eigen steiger
Exclusief, ruim en direct aan de haven
Slikkenburg 1 is geen standaard appartement, maar een woning met karakter, ruimte en uitzonderlijke ligging. Ideaal voor wie comfortabel wil wonen aan het water, met alle voorzieningen van het charmante centrum van Tholen binnen handbereik.
Ervaar de luxe van wonen aan de haven – dit is uw kans!
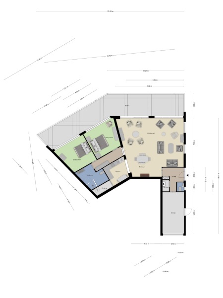
INDELING:
Appartement gelegen op de begane grond met zelfstandige entree:
Hal/entree voorzien van bergkast met opstelplaats HR-combiketel en WTW-unit, wandafwerking sierpleister, tegelvloer v.v. luik naar de kruipruimte, plafond afgewerkt met spuitwerk;
meterkast met 7 groepen, een kookgroep en 2 aardlekschakelaars;
betegeld toilet met fonteintje;
woonkamer met zicht op de haven voorzien van een schuifpui naar het royale terras van 70 m², wandafwerking sierpleister, tegelvloer, plafond afgewerkt met spuitwerk;
half open keuken waarin geplaatst een in hoek opgestelde inbouwkeuken (2013), voorzien van een granieten aanrechtblad met een spoelbak, inbouw inductie kookplaat, -koeler, -combi oven/magnetron, -vaatwasser en een afzuigkap, wandafwerking sierpleister, tegelvloer, plafond afgewerkt met spuitwerk;
bijkeuken met luik naar de kruipruimte, opstelplaats wasmachine-/droger, wandafwerking stucwerk, tegelvloer, plafond afgewerkt met spuitwerk;
vanuit de tussenhal: voorzien van een tegelvloer, wanden afgewerkt met sierpleister en plafond met spuitwerk, toegang tot:
slaapkamer rechts voor (master) met uitzicht op het water, wandafwerking sierpleister, vloer afgewerkt met tapijt, plafond afgewerkt met spuitwerk;
slaapkamer rechts achter, wandafwerking stucwerk, vloer afgewerkt met tapijt, plafond afgewerkt met spuitwerk;
betegelde badkamer, voorzien van een ligbad, douchecabine met jets en massagepaneel voorzien van een lage instap, toilet, badkamermeubel met een dubbele wastafel en een designradiator;
vanuit de hal een deur naar de garage met een loopdeur en elektrische roldeur, wandafwerking stucwerk, tegelvloer en plafond bekleed met houtwolcement platen.
Bouwaard:
Appartementencomplex:
Traditioneel gebouwd in spouw voorzien van kunststof kozijnen m.u.v. de voordeur, opgetrokken in metselbaksteen, verdiepingsvloeren uitgevoerd in beton en platdakconstructie gedekt met bitumineuze dakbedekking.
Isolatie:
Het appartement is voorzien van vloer-, spouwmuur- en dakisolatie alsmede van isolerende beglazing.
Verwarming en warmwatervoorziening:
Het appartement is voorzien van vloerverwarming als hoofdverwarming. De HR-combiketel (fabricaat Remeha Avanta, bouwjaar 2018) ten behoeve van verwarming en warmwatervoorziening en de WTW- unit (fabricaat Afpo HR Optifor) ten behoeve van de ventilatie, zijn geplaatst in de bergkast in de hal.
Diversen:
Het appartement maakt onderdeel uit van een Vereniging van Eigenaren. 
De bijdrage aan de Vereniging van Eigenaren bedraagt € 192,65 per maand en omvat o.a.:
- opstalverzekering;
- reservering planmatig onderhoud;
- verzekeringen;
- verenigingskosten.
- dagelijks onderhoud;
- nutsvoorzieningen algemene ruimten;
- etc.
