Baerz & Co is een landelijk samenwerkingsverband van zorgvuldig geselecteerde boutique luxury makelaars. Samen vormen wij één netwerk, met één gedeeld aanbod. De woningen die u op onze website ziet, zijn afkomstig van alle aangesloten kantoren binnen Baerz & Co. Daardoor is niet ieder object rechtstreeks door ons kantoor in verkoop, maar door een gespecialiseerde collega binnen ons netwerk. Heeft u een woning gevonden die u aanspreekt en wilt u meer informatie? Dan brengen wij u graag persoonlijk in contact met de betreffende verkoopmakelaar, zodat u direct en zorgvuldig wordt begeleid.

TERSOAL
Adam En Atze Strjitte 8 - 9014 CL
Nederland

Angeline Croonen profile image
Angeline Croonen
Real Estate Agent
€825.000 k.k.
Woonoppervlakte
243m2
Perceeloppervlakte
6778m2
Slaapkamers
6

Omschrijving

A+ Landelijk wonen, vrije toplocatie aan vaarwater nabij Sneek!
Op een hoeklocatie aan het water in het buitengebied nabij Sneek, staat deze in 2023 volledig naar A+ verduurzaamde en onderhoudsvriendelijke vrijstaande woning, aan een doodlopend straatje in een kleinschalige villawijk. Hier woont u in alle rust en ruimte, direct aan open vaarwater, met een weids en vrij uitzicht over de landerijen, terwijl alle stedelijke voorzieningen van Sneek zoals winkels, scholen, sportclubs, ziekenhuis, theater en station zich op korte afstand bevinden.
Met een woonoppervlakte van 243 m², een royale inpandige garage en een zeer praktische indeling met 5 slaapkamers en 2 badkamers is deze villa bij uitstek geschikt voor een groot gezin, maar ook voor een combinatie wonen met een kantoor of praktijk aan huis. Grote raampartijen in de woonkamer en woonkeuken zorgen voor een overvloed aan licht en een voortdurend contact met het omliggende water en vrije landschap. De woning beschikt over eigen oevers, meerdere afmeerplaatsen én een extra perceel van maar liefst 1.585 m² aan de overzijde van het water. Een unieke plek waar landelijk wonen, watersport en comfortabel leven perfect samenkomen

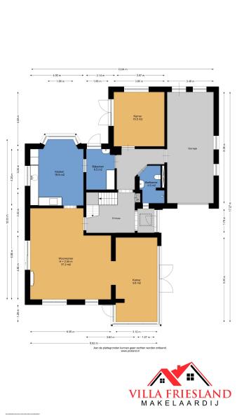
INDELING

BEGANE GROND
Via de entree komt u in een ruime hal met toegang tot de verschillende vertrekken. De royale woonkamer is georiënteerd op het water en de Friese vergezichten en biedt dankzij de grote raampartijen een adembenemend uitzicht. Aansluitend bevindt zich de serre met dubbele tuindeuren, een heerlijke lichte plek die binnen en buiten naadloos met elkaar verbindt.

De ruime woonkeuken is voorzien van inbouwapparatuur en een sfeervolle erker met uitzicht over de tuin en weilanden. Verder vindt u op de begane grond een bijkeuken, een royale slaapkamer met tuindeuren, een badkamer met toilet, wastafel en douche, alsmede toegang tot de inpandige garage.

EERSTE VERDIEPING
De eerste verdieping beschikt over een ruime overloop met toegang tot vier volwaardige slaapkamers, een trapkast, een flinke inloop berging en een riante badkamer voorzien van groot dakkapel, dubbele wastafel, toilet, ligbad en douche.

ZOLDERVERDIEPING
Via een vaste trap bereikt u de geïsoleerde zolderverdieping met stahoogte, dakramen en volop bergruimte. Hier bevinden zich de installaties voor de wtw, heteluchtverwarming en de warmtepomp. Vanaf de overloop is tevens nog een separate vliering bereikbaar.

GARAGE
De royale inpandige garage is voorzien van betonvloer, garagedeur, tuindeur en raampartijen. Er is ruimte voor een grote auto, werkbank, fietsen en extra opslag. Het is mogelijk van deze ruimte kantoor- of praktijkruimte te maken. Op de eigen oprit is plaats voor twee auto’s en direct voor de woning is aanvullende parkeergelegenheid.

TUIN
Dankzij de hoekligging met (eigen) water rondom, is de tuin volledig vrij en biedt deze optimale privacy. In de achtertuin is een kleine vijver, een tuinhuisje en langs de oever bevinden zich diverse (oude) steigers voor het afmeren van boten. Hier geniet u van ’s ochtends vroeg tot ’s avonds laat van het Friese buitenleven pur sang. Het vaarwater is geschikt voor sloepvaren en staat in directe verbinding met de Aldfeart richting Sneek, de Zwette naar Leeuwarden (Elfstedenroute) en de Bangafeart naar het Sneekermeer en Terherne.

BIJZONDERHEDEN
-Bouwjaar 2000
-Energielabel A+
-Volledig geïsoleerd
-WTW, Warmtepomp en 27 zonnepanelen (2023)
-Uitstekende woonstand op hoeklocatie in kleinschalige villawijk
-Volledig omzoomd door vaarwater met verbinding naar o.a. Sneek en Leeuwarden
-Royale inpandige garage
-Lagere school 2km
-NS-station Grou-Jirnsum (7.2 km, 8 min auto, 20 min fietsen)
-Sneek 10 min (20 fiets), Leeuwarden 20min, Amsterdam 1.5 uur, Lelystad 1 uur.

Het traditioneel en duurzaam gebouwde woonhuis is voorzien van kunststof kozijnen, altijd goed onderhouden en verkeert technisch en constructief in uitstekende staat. Gezien de leeftijd van de eerste bewoners zijn zowel het interieur als de tuin toe aan modernisering. Dit biedt echter een uitgelezen kans om deze villa geheel naar eigen smaak en stijl te transformeren tot een indrukwekkend familiehuis op een absolute toplocatie aan het water.

TERSOAL
Tersoal is een kleinschalig en vriendelijk dorp in het hart van Friesland, omgeven door water, natuur en uitgestrekte landerijen. Het ligt in één van de kernen in de Lege Geaen, een streek van oeroude terpdorpjes met een bloeiend gezamenlijk verenigingsleven. De ligging is verrassend gunstig: binnen 10 minuten bereikt u Sneek en de A7, waardoor steden in de Randstad vlot bereikbaar zijn. Sneek biedt een compleet voorzieningenaanbod met supermarkten, scholen, sportverenigingen, een ziekenhuis, theater en NS-station. De combinatie van landelijk wonen met stedelijke voorzieningen op korte afstand maakt deze locatie bijzonder aantrekkelijk voor wie rust en ruimte zoekt, zonder concessies te doen aan bereikbaarheid en comfort.

DISCLAIMER
Deze informatie is met zorg samengesteld en deels gebaseerd op gegevens van de verkoper en/of derden. Hoewel gestreefd is naar een zo accuraat mogelijke weergave, kunnen aan de inhoud, waaronder teksten, bijlagen, plattegronden en maatvoering, geen rechten worden ontleend.
De vermelde oppervlakten zijn gemeten conform de NEN 2580-meetinstructie, waarbij afwijkingen niet zijn uit te sluiten. Deze aanbieding is geheel vrijblijvend en bedoeld als uitnodiging tot het uitbrengen van een bod. Voor objecten ouder dan 25 jaar worden standaard een ouderdoms- en indien van toepassing asbestclausule opgenomen in de koopakte.

Kenmerken

Overdracht
Vraagprijs
€ 825.000 k.k.
Status
beschikbaar
Aanvaarding
in overleg
Bouw
Soort woonhuis
Villa
Soort bouw
vrijstaande woning
Bouwjaar
2000
Energieklasse
A+
Soort dak
samengesteld dak
Slaapkamers
6
Badkamers
2
Oppervlakten en inhoud
Woonoppervlakte
243 m2
Overige inpandige ruimte
29 m2
Externe bergruimte
4 m2
Inhoud
1023 m3
Perceeloppervlakte
6778 m2
faciliteiten
Schuifpui
Aan water
Aan rustige weg
In woonwijk
Vrij uitzicht
Beschutte ligging
Aan vaarwater
Landelijk gelegen
Baerz & Co Property Brochure

Brochure

Video’s

Plattegronden

Croon Makelaars

Breelaan 41
1861 GD Bergen

info@croonmakelaars.nl
+31 72 743 32 44

www.croonmakelaars.nl

Informatie / bezichtigingsaanvraag

Angeline Croonen profile image
Angeline Croonen
Real Estate Agent

Een luxe woning kopen in Tersoal

Tersoal combineert het karakter van een waterrijk dorp, hechte gemeenschap en verfijnde woonbeleving. Selectief woningaanbod en maatwerkdiensten spreken internationale kopers aan.