 
	        		 
								Karakteristiek en royaal jaren ’30 herenhuis op toplocatie in Oud-Oegstgeest
In het hart van het geliefde Oud-Oegstgeest staat dit indrukwekkende jaren ’30 herenhuis met een uitzonderlijk woonoppervlak van maar liefst 294 m². Een woning van dit formaat, op zo’n unieke locatie, komt zelden beschikbaar.
Veel authentieke details zijn bewaard gebleven en geven het huis zijn karakteristieke sfeer: hoge plafonds, glas-in-loodramen, houten vloeren en klassieke lambriseringen. Aan de voorzijde ligt een ruime voortuin, terwijl de diepe, zonnige achtertuin volop privacy en mogelijkheden biedt – ideaal voor een groot gezin en heerlijk buitenleven.
De woning bevindt zich aan een rustige laan met groenvoorziening. Op een steenworp afstand ligt het stadspark ‘De Leidse Hout’ en op loopafstand ligt de sfeervolle De Kempenaerstraat met haar winkels en restaurants. Scholen, sportclubs en recreatiefaciliteiten zijn allemaal nabij. Ook het station en het historische centrum van Leiden zijn eenvoudig per fiets bereikbaar. Voor strandliefhebbers liggen Katwijk en Noordwijk met hun duinen en stranden op korte afstand. Niet voor niets staat Oegstgeest al jaren in de top 10 van meest aantrekkelijke woonplaatsen in Nederland.
INDELING
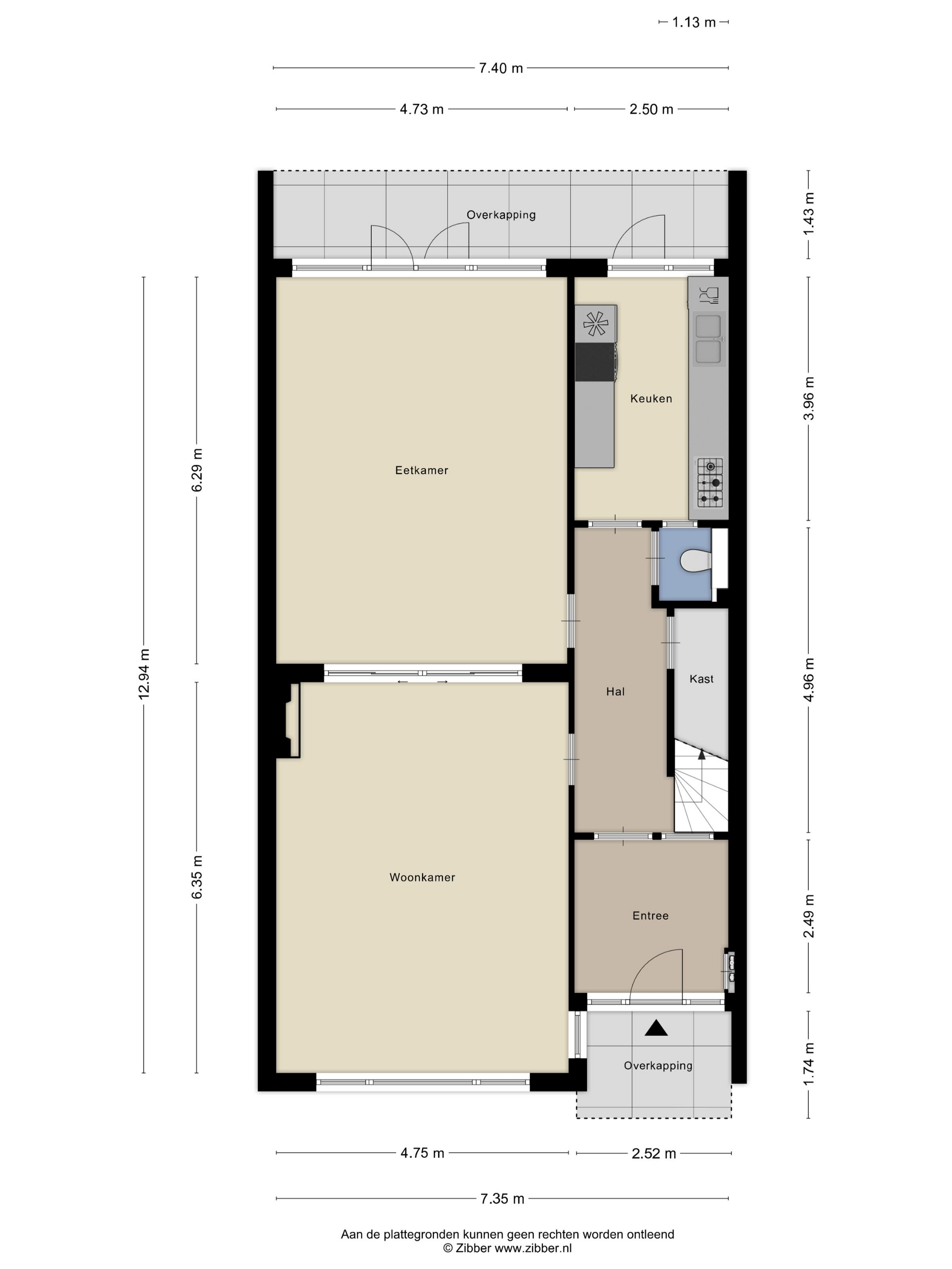
Begane grond:
Entree met voorportaal en hal, voorzien van gastentoilet en trapkast. De ruime woonkamer (ca. 60 m²) heeft een houten vloer en en-suitedeuren naar de eetkamer, met openslaande deuren naar de tuin. De moderne keuken is volledig uitgerust en biedt eveneens toegang tot de tuin. De achterzijde grenst niet direct aan buren, waardoor u volop privacy geniet.
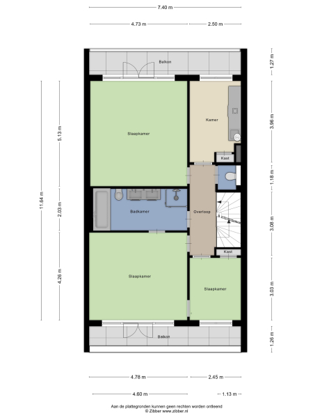
Eerste verdieping:
Karakteristiek trappenhuis met originele lambriseringen. Aan de voorzijde een royale kamer met zijkamer en balkon. Aan de achterzijde een ruime slaapkamer met balkon, een vierde kamer (nu in gebruik als wasruimte) en een centraal geplaatste badkamer met ligbad, inloopdouche, dubbele wastafel en bidet. Separaat toilet op de overloop.
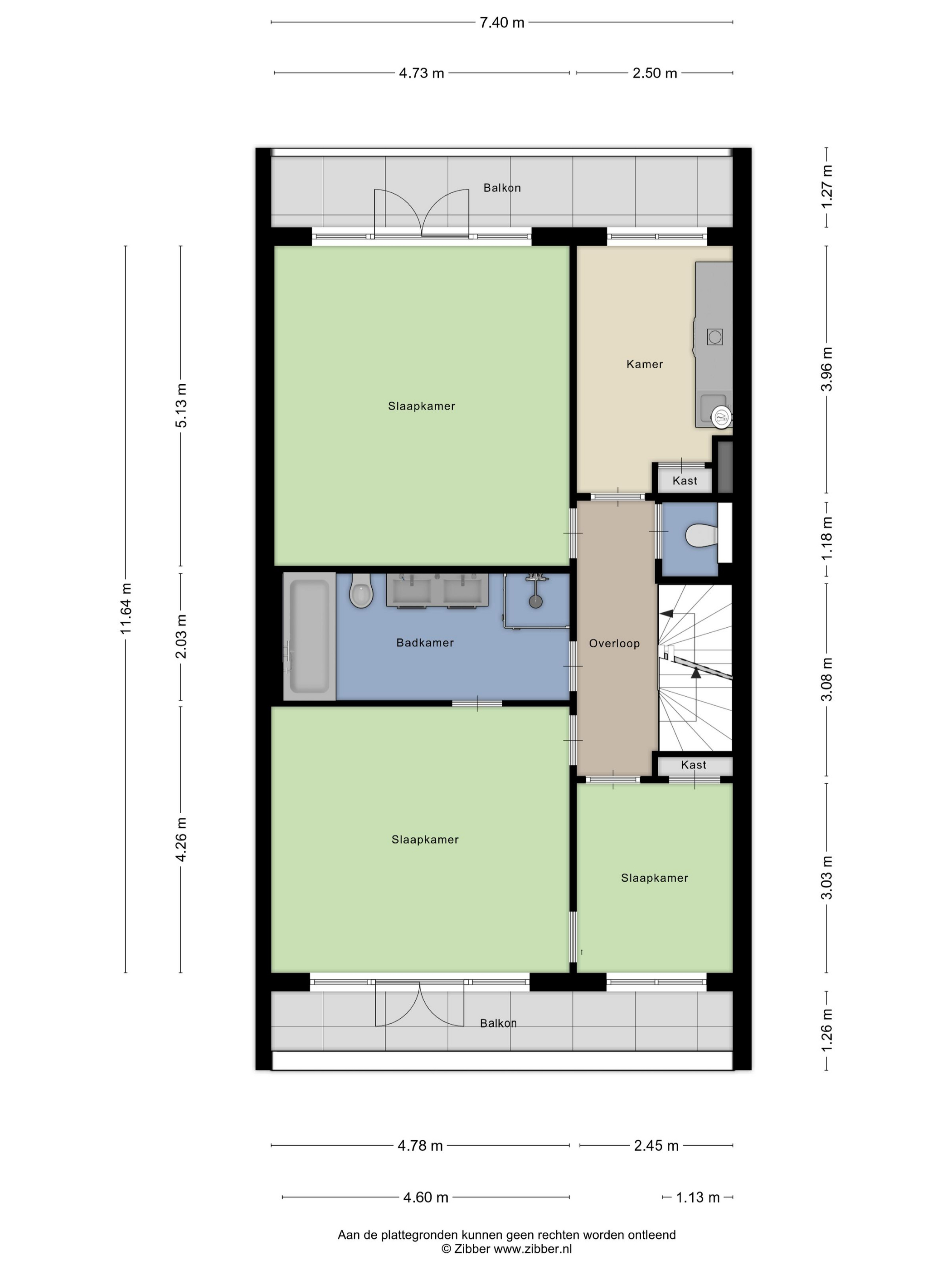
Tweede verdieping:
Overloop met toegang tot vier ruime slaapkamers, voorzien van dakkapellen. Tweede badkamer met douche, toilet en dubbele wastafel. Extra bergruimte achter de schuine wanden.
Derde verdieping:
Via vaste trap bereikbaar: een riante zolder met indrukwekkende nokhoogte (ca. 4 m) en veel lichtinval door tuimelramen. Ook de opstelplaats van de HR cv-combiketel bevindt zich hier.
BIJZONDERHEDEN
- Karakteristiek en royaal jaren ’30 herenhuis
- 10 kamers, waarvan 7 slaapkamers
- Uitstekende ligging in Oud-Oegstgeest
- Energielabel B
- Airconditioning aanwezig
- Woonoppervlak: ca. 294 m²
- Perceeloppervlak: 243 m²
- Ouderdomsclausule en niet-bewoners clausule van toepassing
