Ons kantoor is lid van Baerz & Co Luxury Homes; een internationaal platform dat exclusieve woningmakelaars met elkaar verbindt. Neem contact op met ons secretariaat voor meer informatie over het landelijke aanbod, waarvan u hieronder een selectie kunt bekijken.

Grachtenpand te koop in LEIDEN

LEIDEN Rapenburg 45 - 2311 GG Nederland


Wim Graal RM profile image
Wim Graal RM
Real Estate Agent
+31 715161000
info@graalmakelaardij.nl

Graal Makelaardij

Woonoppervlakte
345m2
Perceeloppervlakte
218m2
Slaapkamers
5

Omschrijving

Uniek volledig gerenoveerd monumentaal grachtenpand op toplocatie, met prachtige zonnige tuin

Al in de 17e en 18e eeuw werd het Rapenburg geroemd als één van de mooiste en meest voorname grachten van Nederland. Ook nu nog wordt het Rapenburg, met zijn vele monumentale panden en bruggen, algemeen beschouwd als de mooiste gracht van Leiden.

Rapenburg 45 betreft een 17e-eeuws monumentaal grachtenpand gelegen op één van de meest prominente locaties van Leiden. Het object biedt een woonoppervlakte van maar liefst 345 m², in combinatie met een fraai aangelegde stadstuin met volledige privacy. Het object is gelegen tegenover het Rijksmuseum van Oudheden en op een steenworp van de beroemde Leidse ‘Hortus Botanicus’. Verder ligt alles wat wonen in het centrum van Leiden zo fijn maakt op loop- en fietsafstand; winkels, uitgaansgelegenheden, het theater, musea, etc.

De beide buurpanden worden door particulieren bewoond, de locatie is rustig en biedt alle privacy.

Sinds de aankoop van deze woning in 2010 hebben de huidige eigenaren het object op zeer hoogwaardige wijze volledig gerenoveerd en verduurzaamd; zelfs een groot deel van alle ramen is recent vervangen voor het allernieuwste vacuüm glas waardoor dit Rijksmonument voldoet aan het allerhoogste niveau van kwaliteit én comfort. Het interieur van de woning bevat nog veel fraaie stijlkenmerken zoals fraaie balken plafonds, een keur aan Delfts Blauwe tegels in de gang en een unieke monumentale trap naar de eerste verdieping.

Leuk weetje: dit monument kent een reeks aan interessante voormalige bewoners, niet in het minst de prinsessen Beatrix en Margriet, tijdens hun studietijd in Leiden.

Ook goed om te weten: verkopers zijn ook eigenaar van enkele parkeerplaatsen in een parkeerkelder aan de rand van de stad (op ca. 1.400m van de woning) welke eventueel ter overname is/zijn.

INDELING

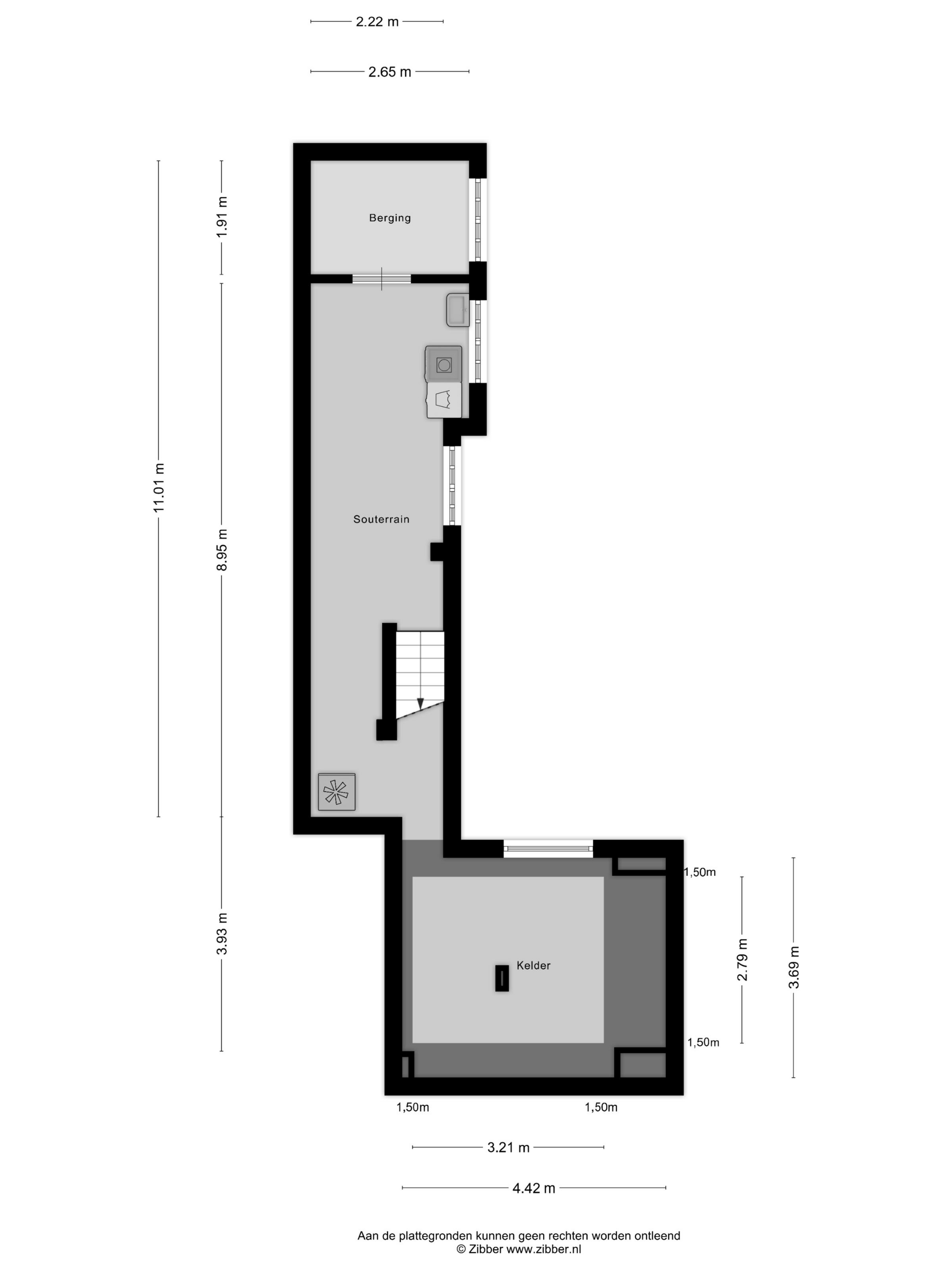
Begane grond:
Ruime en lichte entree. Deur naar de woonkeuken. Dit is een prachtige en zeer sfeervolle ruimte met 2 hoge ramen aan de grachtzijde en openslaande deuren naar de achtertuin. De luxe Bulthaup keuken is uiteraard voorzien van alle gebruikelijke apparatuur. De brede gashaard aan de tuinzijde voegt extra sfeer toe aan het eet- en zitgedeelte van deze ruimte. De lange gang met Delfts Blauwe tegeltjes aan weerszijden leidt naar een kleine hal met toegang tot de tuin en een trap naar het souterrain. Deze is thans in gebruik als wasruimte. Aan de straatzijde bevindt zich op dit niveau een gewelfde kelder voor opslag. Terug naar de gang, Hier treft u nog een gastentoilet en aan het einde van de gang een multifunctionele kamer.

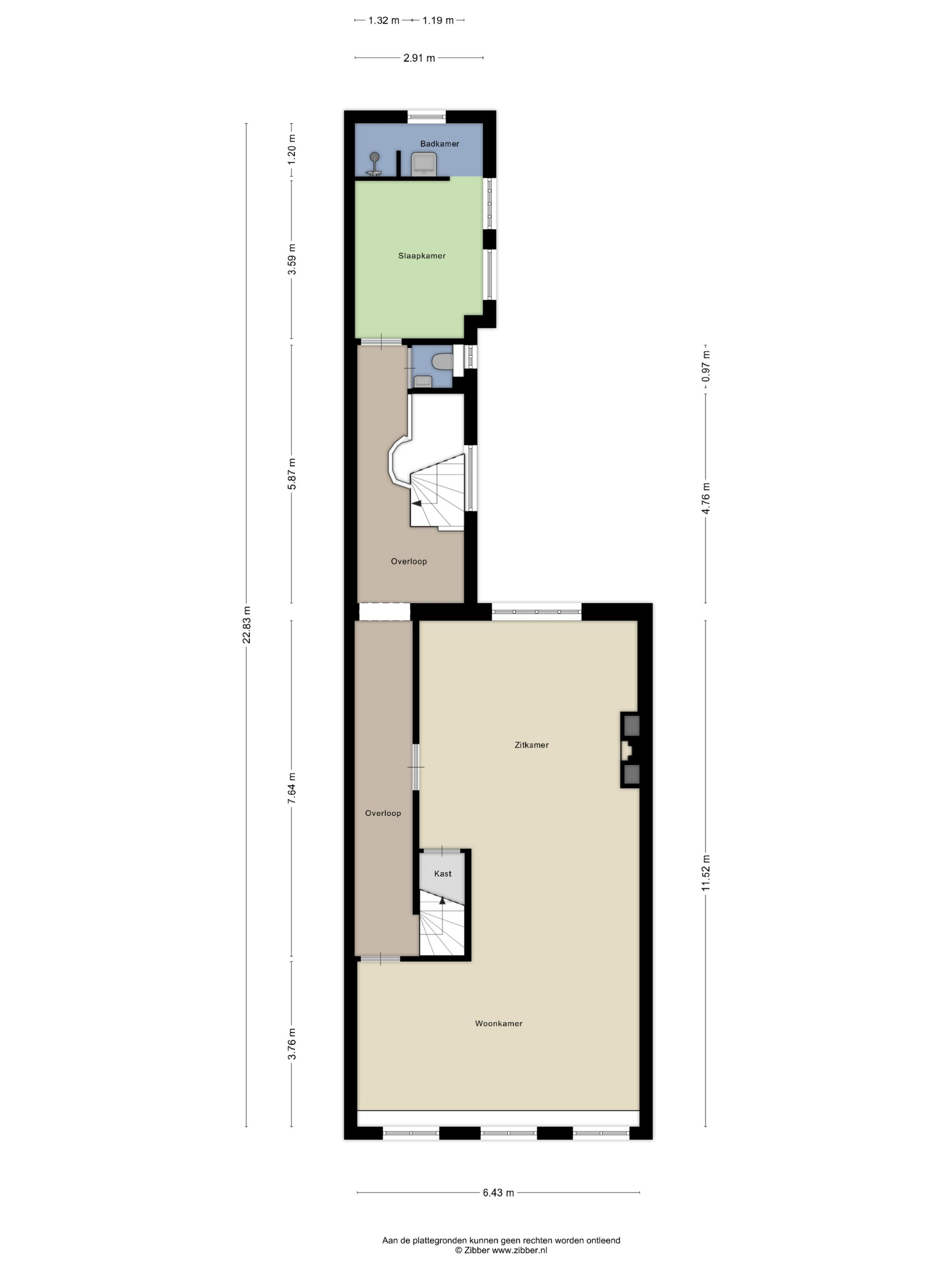
Eerste verdieping:
Een monumentale trap leidt naar de eerste verdieping. In het achterhuis bevindt zich een separaat toilet en een slaapkamer met moderne badkamer en suite. In het voorhuis treft u de zeer ruime en lichte woonkamer met aan de tuinzijde een zitkamer rondom de haardpartij en aan de voorzijde (3 ramen breed) een fijne lichte woonkamer met prachtig uitzicht op de gracht en de stad.

Tweede verdieping:
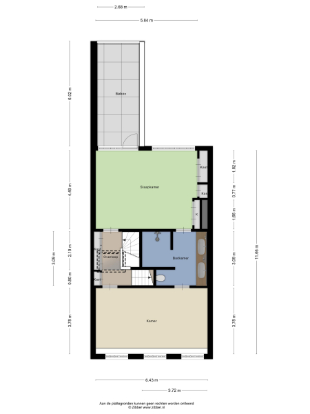
Overloop met kastenwand. Aan de achterzijde de zeer ruime ouderslaapkamer met eigen dakterras, kastenwand en badkamer en suite. Deze badkamer staat ook in verbinding met de ruime kamer aan de voorzijde. Deze is thans in gebruik als werkkamer maar, is ook uitermate geschikt als slaapkamer.

Derde verdieping:
Overloop, badkamer voorzien van douche, toilet en slaapkamer. Zeer ruime en sfeervolle slaapkamer aan de voorzijde met dakkapel en vaste kast. Hier bevindt zich ook een luik met vlizotrap voor toegang tot de grote zolderruimte met o.a. de opstelling voor de CV. Verder aan de achterzijde nog één kleinere slaapkamer met dakkapel.

Tuin:
De tuin is fraai aangelegd en ligt op het westen. Er zijn meerdere zitjes voor zowel zon als schaduw en het is altijd opvallend hoe stil het is aan de achterzijde van een dergelijk pand. Hier kunt u heerlijk ontspannen of met vrienden dineren in de tuin.
Al met al een zeer bijzonder en uniek object. Uw bezichtiging zeker waard.

Kenmerken

Overdracht
Vraagprijs
€ 2.995.000 k.k.
Status
beschikbaar
Aanvaarding
in overleg
Bouw
Soort woonhuis
Grachtenpand
Soort bouw
tussenwoning
Bouwjaar
1660
Soort dak
samengesteld dak
Slaapkamers
5
Badkamers
3
Oppervlakten en inhoud
Woonoppervlakte
345 m2
Overige inpandige ruimte
28 m2
Gebouwgebonden buitenruimte
16 m2
Inhoud
1322 m3
Perceeloppervlakte
218 m2
faciliteiten
Mechanische ventilatie
Alarminstallatie
Tv kabel
Rookkanaal
Aan water
Aan rustige weg
In centrum
Vrij uitzicht
Aan vaarwater
Baerz & Co Property Brochure

Brochure

Informatie / bezichtigingsaanvraag

Video's

Foto's

Plattegronden