 
	        		Singel 104, 1015 AD AMSTERDAM
Uniek grachtenpand (ca. 521 m²) met historische charme en volop mogelijkheden aan het Singel! Dit monumentale pand combineert de allure van de Gouden Eeuw met moderne flexibiliteit. Met meerdere verdiepingen, hoge plafonds, royale ruimtes en een dakterras biedt dit pand talloze opties. Het pand is geschikt voor transformatie tot een riant familiehuis of combinatie van wonen en werken. Gelegen op eigen grond, midden in het centrum van Amsterdam, met alle voorzieningen en uitstekende bereikbaarheid binnen handbereik. Een unieke kans om een droomwoning of bedrijfslocatie volledig naar eigen smaak te realiseren!
Bereikbaarheid 
Dit grachtenpand is gelegen in het centrum van Amsterdam op een goede locatie tussen de Herengracht en het Singel. Alle voorzieningen bevinden zich in de directe omgeving van het pand. Denk hierbij aan de supermarkten, boetieks en speciaalzaken in de Haarlemmerstraat en op de Haarlemmerdijk. Aan horeca ook geen gebrek: een breed aanbod goede restaurants, koffiebarretjes en terrassen sieren de buurt. Voor sport en recreatie kunt u terecht in het nabijgelegen Westerpark. De bereikbaarheid is uitstekend: het Centraal Station met metro’s, trams, treinen, pontjes en bussen in alle richtingen is op vijf minuten afstand gelegen. De ringweg A10 is gemakkelijk te bereiken via de Haarlemmerweg.
Historie 
Het Singel is een van de oudste grachten van Amsterdam en diende in de middeleeuwen als verdedigingsgracht rond de stad. Tijdens de Gouden Eeuw werd het een prestigieuze locatie, waar rijke kooplieden statige grachtenpanden lieten bouwen die nog steeds de historische charme uitstralen. Tegenwoordig biedt het Singel een unieke mix van geschiedenis, levendige sfeer en centraal wonen in het hart van de stad.
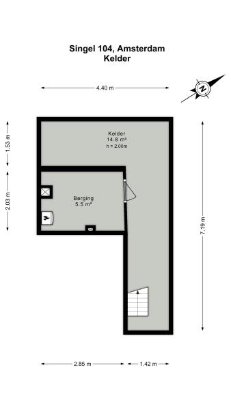
Indeling
Dit unieke grachtenpand aan het Singel biedt een totale woonoppervlakte van circa 521 m² en beschikt over acht verdiepingen met flexibele mogelijkheden. De kelder, begane grond en eerste verdieping zijn gebruikt als kantoor en de tweede, derde, vliering en achterhuis als woning. De royale ruimtes met hoge plafonds en grote raampartijen zorgen voor veel natuurlijk licht en een uitnodigende sfeer. Met een prachtig uitzicht op het Singel en de historische charme van de grachten, biedt dit pand een unieke kans om volledig naar eigen smaak een droomwoning of bedrijfslocatie te realiseren. Het is een perfecte combinatie van historie, ruimte en flexibiliteit in het hart van Amsterdam.
Bijzonderheden 
-	Gebruiksoppervlakte van 521 m² (NEN2580 rapport aanwezig)
-       As is, where is clausule, niet-zelfbewoningsclausule en ouderdomsclausule. 
-       BAG : 104 A kantoor
-       BAG : 104 B woning 
-	Uniek grachtenpand 
-	Volledig naar eigen wens in te richten
-       Pand kan zowel woon- als bedrijfsfunctie krijgen 
-	Monument 
-	Gelegen op eigen grond, GEEN erfpacht 
-	Oplevering in overleg, kan snel
Deze informatie is door ons met de nodige zorgvuldigheid samengesteld. Onzerzijds wordt echter geen enkele aansprakelijkheid aanvaard voor enige onvolledigheid, onjuistheid of anderszins, dan wel de gevolgen daarvan. Alle opgegeven maten en oppervlakten zijn indicatief. Koper heeft zijn eigen onderzoek plicht naar alle zaken die voor hem of haar van belang zijn. Met betrekking tot deze woning is de makelaar adviseur van verkoper. Wij adviseren u een deskundige (NVM-)makelaar in te schakelen die u begeleidt bij het aankoopproces. Indien u specifieke wensen heeft omtrent de woning, adviseren wij u deze tijdig kenbaar te maken aan uw aankopend makelaar en hiernaar zelfstandig onderzoek te (laten) doen. Indien u geen deskundige vertegenwoordiger inschakelt, acht u zich volgens de wet deskundige genoeg om alle zaken die van belang zijn te kunnen overzien. Van toepassing zijn de NVM voorwaarden.
