 
	        		Prins Hendriklaan 14 A, 1075 BB AMSTERDAM
Aan de imposante Prins Hendriklaan, direct bij het Vondelpark, bieden wij dit uitzonderlijk royale driedubbele benedenhuis van 291 m² met zonnige achtertuin en balkon te koop aan. Deze unieke woning beschikt over maar liefst vier slaapkamers, vier badkamers, een indrukwekkende leefverdieping met luxe woonkeuken, hoge plafonds en een souterrain met tweede woonkamer en keuken. Een stijlvol en comfortabel familiehuis op absolute toplocatie in Amsterdam Oud-Zuid, waar ruimte, elegantie en functionaliteit perfect samenkomen.
Ligging & Bereikbaarheid: 
De woning bevindt zich aan Prins Hendriklaan in Amsterdam Oud-Zuid, direct bij het Vondelpark. In de nabije omgeving liggen de Cornelis Schuytstraat, Van Baerlestraat en P.C. Hooftstraat met een uitgebreid aanbod aan winkels, boetieks en horeca. Voor de dagelijkse boodschappen kunt u terecht bij diverse speciaalzaken en supermarkten op loopafstand. Ook scholen, kinderopvang, sportfaciliteiten en culturele voorzieningen zoals het Museumplein liggen dichtbij. De locatie is uitstekend bereikbaar met zowel openbaar vervoer als de auto; tram- en bushaltes liggen om de hoek en de ringweg A10 is binnen enkele minuten bereikbaar. Parkeren geschiedt via het vergunningensysteem.
Indeling:
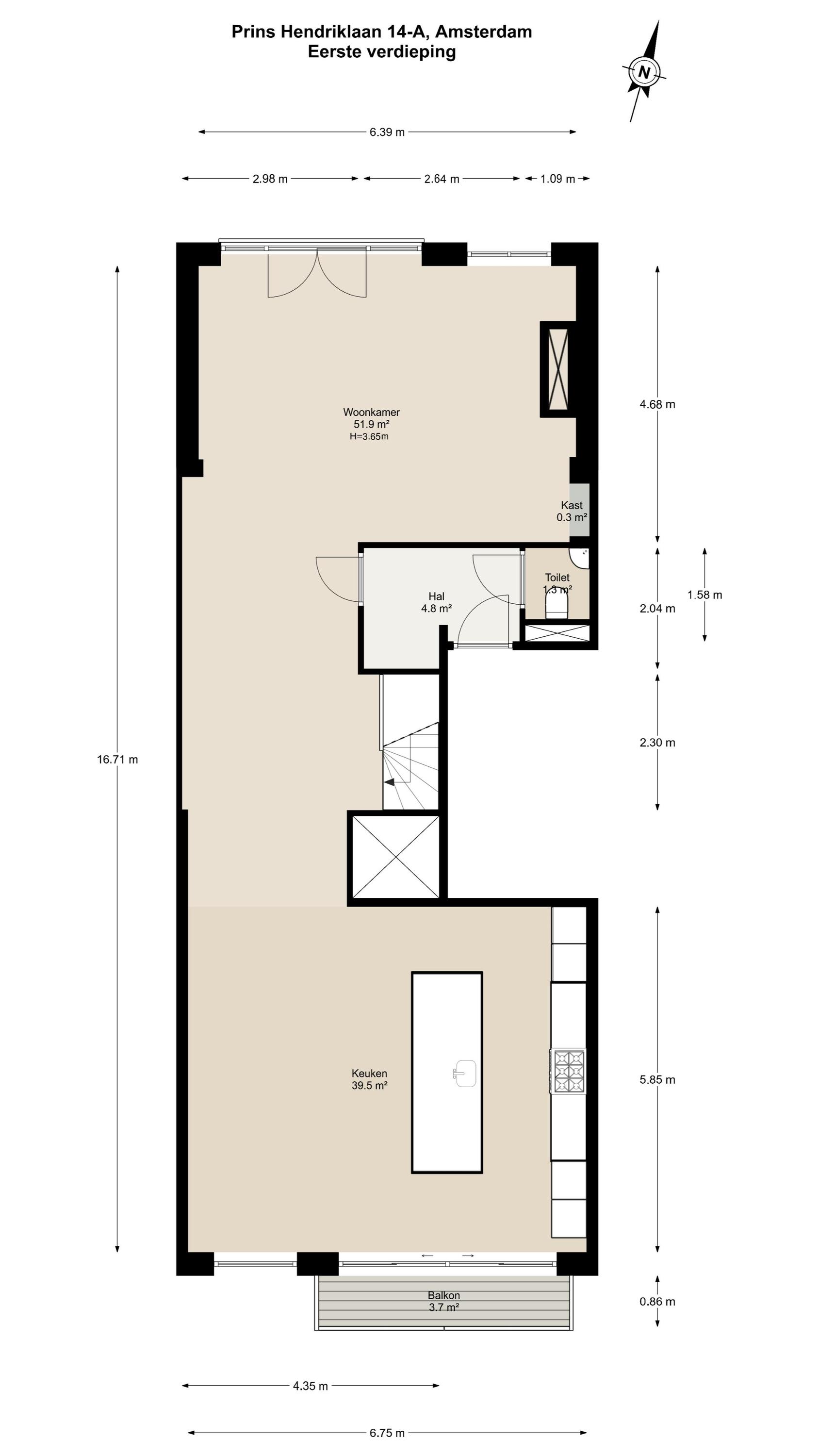
Eerste etage:
Middels de lift of de eigen entree op de eerste verdieping bereikt u de indrukwekkende leefverdieping. Hier valt direct de royale woonkamer op, met grote raampartijen welke zorgen voor een overvloed aan licht en een verfijnde sfeer. Aan de voorzijde bevindt zich de luxe woonkeuken, een absolute eyecatcher, voorzien van een royaal kookeiland met wijnklimaatkast, dubbele spoelbak met Quooker en hoogwaardige inbouwapparatuur: twee ovens, een volledige koelkast en een aparte vriezer. Deze keuken biedt alles voor de echte culinaire liefhebber en vormt het hart van de woning. Vanuit hier heeft u toegang tot het balkon met karakteristieke glas-in-loodramen, ideaal voor een ontspannen ontbijt in de ochtendzon. Op deze verdieping zijn tevens een garderoberuimte en separaat toilet te vinden.
Bel-etage:
De bel-etage beschikt over drie comfortabele slaapkamers en twee stijlvolle badkamers, beide voorzien van vloerverwarming. De master bedroom is uitgerust met een op maat gemaakte kastenwand en een luxe en-suite badkamer met ligbad, dubbele wastafel met meubel, inloopdouche en toilet. De tweede badkamer is eveneens modern uitgevoerd en beschikt over een wastafel met meubel en een inloopdouche. Tevens bevindt zich op deze verdieping nog een apart toilet. De aanwezigheid van een tweede entree op dit niveau benadrukt het praktische én exclusieve karakter van de woning.
Souterrain:
Het souterrain verrast met een tweede woonkamer (tevens als vijfde slaapkamer in te richten), een complete tweede keuken en een vierde slaapkamer. De keuken is voorzien van 4-pits gasfornuis, ingebouwde afzuiger, oven, koel- en vrieskast, spoelbak en vaatwasser. Daarnaast zijn er twee badkamers, een separaat toilet en een ruime berging. Via openslaande deuren bereikt u hier direct de zonnige achtertuin. De tweede keuken maakt dit niveau uitermate geschikt voor lange zomeravonden en tuinfeesten, waarbij koken en serveren moeiteloos samengaan met het buitenleven.
Bijzonderheden 
- Gebruiksoppervlakte woning 291m² (gemeten conform NEN2580 meetinstructie)
- Ruime achtertuin (ca. 76m²);
- Balkon aan voorzijde (ca. 4m²);
- Vijf slaapkamers;
- Vier badkamers, zes toiletten waarvan drie separaat;
- Hoge plafonds;
- Vloerverwarming in alle vier de badkamers; 
- Energielabel B;
- VvE in oprichting;
- Gelegen op eigen grond, dus GEEN erfpacht;
- Oplevering in overleg.
Deze informatie is door ons met de nodige zorgvuldigheid samengesteld. Onzerzijds wordt echter geen enkele aansprakelijkheid aanvaard voor enige onvolledigheid, onjuistheid of anderszins, dan wel de gevolgen daarvan. Alle opgegeven maten en oppervlakten zijn indicatief. Koper heeft zijn eigen onderzoeksplicht naar alle zaken die voor hem of haar van belang zijn. Met betrekking tot deze woning is de makelaar adviseur van verkoper. Wij adviseren u een deskundige (NVM-)makelaar in te schakelen die u begeleidt bij het aankoopproces. Indien u specifieke wensen heeft omtrent de woning, adviseren wij u deze tijdig kenbaar te maken aan uw aankopend makelaar en hiernaar zelfstandig onderzoek te (laten) doen. Indien u geen deskundige vertegenwoordiger in-schakelt, acht u zich volgens de wet deskundige genoeg om alle zaken die van belang zijn te kun-nen overzien. Van toepassing zijn de NVM voorwaarden.
