Baerz & Co is een landelijk samenwerkingsverband van zorgvuldig geselecteerde boutique luxury makelaars. Samen vormen wij één netwerk, met één gedeeld aanbod. De woningen die u op onze website ziet, zijn afkomstig van alle aangesloten kantoren binnen Baerz & Co. Daardoor is niet ieder object rechtstreeks door ons kantoor in verkoop, maar door een gespecialiseerde collega binnen ons netwerk. Heeft u een woning gevonden die u aanspreekt en wilt u meer informatie? Dan brengen wij u graag persoonlijk in contact met de betreffende verkoopmakelaar, zodat u direct en zorgvuldig wordt begeleid.

AMSTERDAM
Korte Ouderkerkerdijk 1 P 3 - 1096 AC
Nederland

Angeline Croonen profile image
Angeline Croonen
Real Estate Agent
€1.850.000 k.k.
Woonoppervlakte
157m2
Perceeloppervlakte
2974m2
Slaapkamers
3

Omschrijving

Korte Ouderkerkerdijk 1 P3, 1096 AC AMSTERDAM

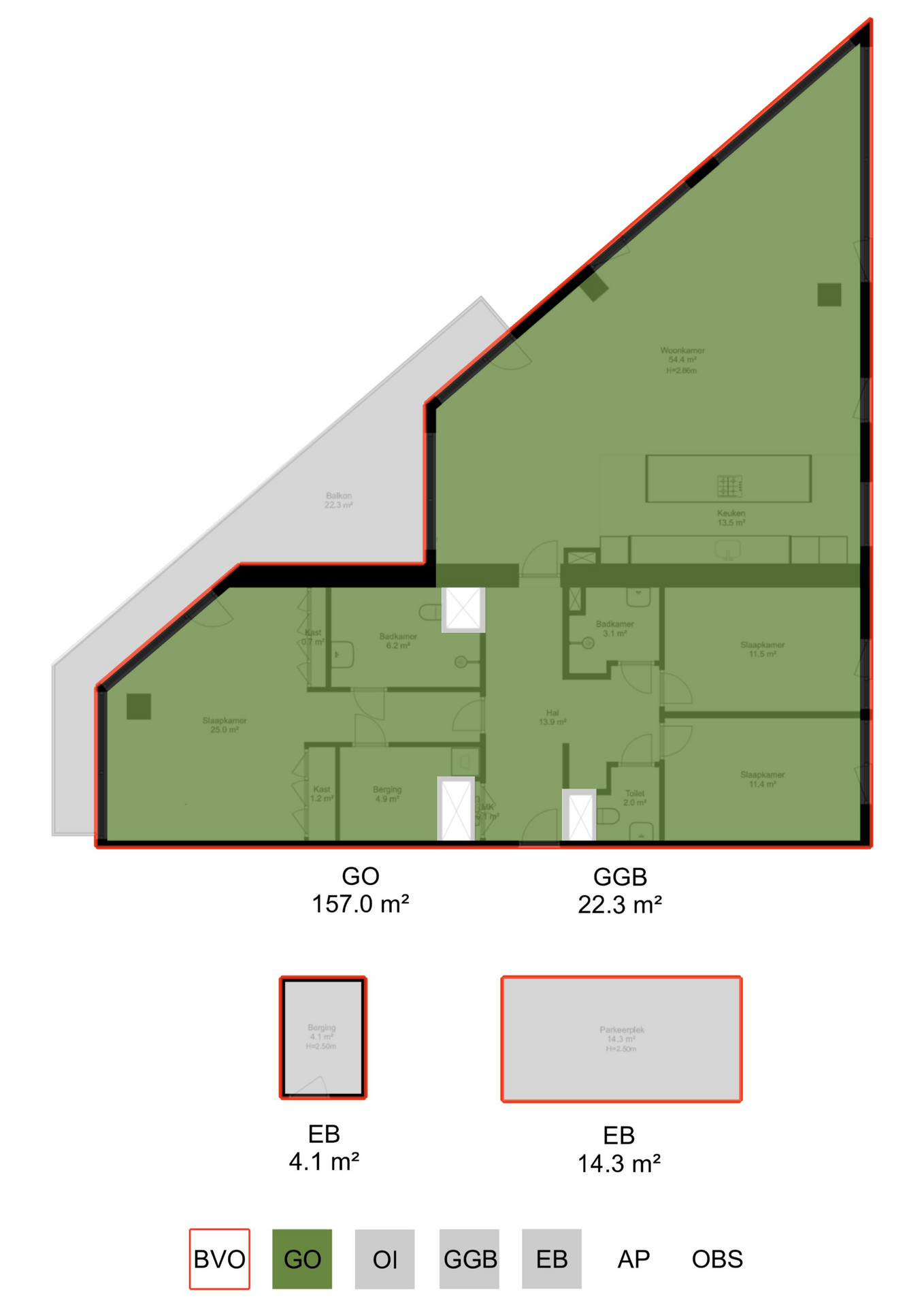
Een modern appartement van ca.157m². De woning is gelegen op de 13e verdieping en beschikt over drie slaapkamers, een overdekt balkon, energielabel A++, een externe bergruimte en een parkeerplaats met laadpaal en een waanzinnig uitzicht over de stad.

Het gebouw HAUT is in 2023 is uitgeroepen tot beste gebouw van Nederland.

Bereikbaarheid:
HAUT is een woongebouw (totaal 21 verdiepingen) gelegen aan de Amstel in Amsterdam, tussen Amsterdam-Zuid, nabij het Amstelstation en de Rijnstraat, waar u dagelijkse boodschappen kunt doen, de Rivierenbuurt en de Watergraafsmeer. In de buurt van HAUT vindt u ook uitstekende restaurants en cafés, zoals L’Osteria, Rijssel, George Marina, The Lobby en thuis aan de Amstel. De uitstekende bereikbaarheid met zowel openbaar vervoer (bus-, tramhaltes en een metrostation) als uitvalswegen (A2 en A10) maakt deze locatie ideaal voor zowel de actieve stadsbewoner als de natuurgenieter. De aanwezigheid van groene parken en waterrijke gebieden biedt volop gelegenheid voor ontspanning en recreatie dicht bij huis.

Indeling

Dertiende verdieping:
Via de gezamenlijke entree bereikt u het appartement per lift of trap. U komt binnen in een ruime hal die toegang biedt tot vrijwel alle vertrekken van de woning. Vanuit hier bereikt u de royale woonkamer met open keuken, drie slaapkamers, een badkamer en het separate toilet. De woonkamer is bijzonder door haar unieke, driehoekige vorm en de lange raampartijen langs de gevel, die zorgen voor een uitstekende lichtinval en een vrij uitzicht richting de Amstel. De ruimte is royaal opgezet en biedt meer dan voldoende plaats voor een comfortabele zithoek en een grote eettafel. Vanuit de woonkamer is het ruime, overdekte balkon bereikbaar, een heerlijke buitenruimte met een fraai uitzicht over de stad en het water. De open keuken is centraal in de leefruimte gepositioneerd en uitgevoerd in een moderne en strakke stijl. De keuken is voorzien van hoogwaardige inbouwapparatuur, waaronder een inductiekookplaat met geïntegreerde afzuiging, Quooker, klimaatkast, koel-/vriescombinatie, vaatwasser en twee ovens van Gaggenau. Het appartement beschikt over drie goed bemeten slaapkamers. De grootste slaapkamer is voorzien van een en-suite badkamer. Deze luxe badkamer is uitgevoerd met een wastafel met meubel, inloopdouche en toilet. De tweede badkamer is bereikbaar vanuit de hal en beschikt over een inloopdouche, dubbele wastafel en lichte afwerking. Daarnaast is er een separaat toilet aanwezig.

Berging & parkeren:
Bij de woning hoort een externe berging van circa 4,1 m² en een eigen parkeerplaats in de ondergelegen parkeergarage.

Bijzonderheden:
- Appartementsrecht ca. 157m² (NEN280 rapport aanwezig);
- Overdekt balkon ca. 22m² (west) biedt een sfeervolle buitenruimte;
- Drie slaapkamers, waaronder een met luxe ensuite badkamer;
- Moderne keuken uitgerust met high-end inbouwapparatuur;
- Energielabel A++;
- Externe bergruimte ca. 4m²
- Eigendom (appartement en berging) belast met erfpacht. De canon bedraagt €3.922,00 per jaar met een jaarlijkse indexering tot en met 15 december 2067
- Eigendom (parkeerplaats) belast met erfpacht. De canon bedraagt €40,- per jaar met een jaarlijkse indexering tot en met 15 december 2067
- Actieve VvE, professioneel beheerd. Maandelijkse servicekosten €676,-;
- Privé parkeerplaats met laadpaal;
- Overdekte fietsenstalling;
- Gelegen in het hoogste hybride houten gebouw van Nederland, HAUT;
- Een innovatief gebouw welke het hoogst haalbare duurzaamheidslabel heeft gekregen;
- Oplevering in overleg, kan snel.

Deze informatie is door ons met de nodige zorgvuldigheid samengesteld. Onzerzijds wordt echter geen enkele aansprakelijkheid aanvaard voor enige onvolledigheid, onjuistheid of anderszins, dan wel de gevolgen daarvan. Alle opgegeven maten en oppervlakten zijn indicatief. Koper heeft zijn eigen onderzoek plicht naar alle zaken die voor hem of haar van belang zijn. Met betrekking tot deze woning is de makelaar adviseur van verkoper. Wij adviseren u een deskundige (NVM-)makelaar in te schakelen die u begeleidt bij het aankoopproces. Indien u specifieke wensen heeft omtrent de woning, adviseren wij u deze tijdig kenbaar te maken aan uw aankopend makelaar en hiernaar zelfstandig onderzoek te (laten) doen. Indien u geen deskundige vertegenwoordiger inschakelt, acht u zich volgens de wet deskundige genoeg om alle zaken die van belang zijn te kunnen overzien.

Kenmerken

Overdracht
Vraagprijs
€ 1.850.000 k.k.
Status
beschikbaar
Aanvaarding
in overleg
Bouw
Soort woonhuis
Bovenwoning
Soort bouw
appartement
Bouwjaar
2021
Energieklasse
A++
Soort dak
plat dak
Slaapkamers
3
Badkamers
2
Oppervlakten en inhoud
Woonoppervlakte
157 m2
Overige inpandige ruimte
0 m2
Gebouwgebonden buitenruimte
22 m2
Externe bergruimte
18 m2
Inhoud
623 m3
Perceeloppervlakte
2974 m2
faciliteiten
Tv kabel
Balansventilatie
Aan water
Vrij uitzicht
Baerz & Co Property Brochure

Brochure

Video’s

Video Korte Ouderkerkerdijk 1 P 3

Plattegronden

Croon Makelaars

Breelaan 41
1861 GD Bergen

info@croonmakelaars.nl
+31 72 743 32 44

www.croonmakelaars.nl

Informatie / bezichtigingsaanvraag

Angeline Croonen profile image
Angeline Croonen
Real Estate Agent

Een luxe woning kopen in Amsterdam

Amsterdam biedt een kosmopolitische levensstijl, gekenmerkt door erfgoed, verbondenheid en discrete luxe. Bewoners profiteren van een sterke internationale gemeenschap, hoogwaardige dienstverlening en een bruisende cultuur. De blijvende aantrekkingskracht van de stad schuilt in de combinatie van geschiedenis, verfijning en een vooruitstrevende geest.