 
	        		Exclusieve design twee-onder-één-kap woning met Piet Boon-signatuur, hoogwaardige afwerking en duurzame installaties op een zeer gewilde locatie in Elsrijk Amstelveen!
Welkom in dit uitzonderlijk stijlvolle huis van 203 m² woonoppervlak, waar modern design en ultiem wooncomfort samenkomen. Deze woning, in 2022 volledig gerenoveerd, onderscheidt zich door een ongeëvenaarde afwerking, maatwerkoplossingen en een doordachte indeling die het dagelijks leven naar een hoger niveau tilt. Elke ruimte ademt kwaliteit, rust en verfijning – perfect voor de veeleisende koper die geen concessies wil doen. Dankzij de duurzame installaties en het energielabel A++ is de woning bovendien volledig toekomstbestendig. Ook de ligging aan de water- en lommerrijke laan is uniek te noemen.
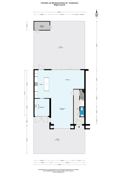
Een stijlvolle entree
De voortuin straalt allure uit en de oprit is afgesloten middels antracietgrijs elektrisch schuifhek.Bij binnenkomst wordt direct duidelijk dat hier over elk detail is nagedacht. De stalen voordeur – een klassiek ontwerp in antracietgrijs naar moderne isolatienormen– vormt een waardige entree. De hal is voorzien van een maatwerk garderobekast met lichte houtfineer deuren, een stijlvol toilet met Piet Boon COCOON-fonteinkraan en eikenhouten trap met stalen leuningen. Via hoge taatsdeuren betreedt u de woonkamer.
Wonen met karakter
De woonkamer is het kloppend hart van deze woning. De imposante gashaard, tot het plafond meegestuuct in grijs betonciré, vormt een indrukwekkend middelpunt. Een maatwerk tv-meubel en het lamelparket met greywash olie creëren een warme en tijdloze sfeer. Grote raampartijen zorgen voor een overvloed aan daglicht en een optimale verbinding met de tuin. Bijzonder is ook de extra breedte die het woongedeelte geniet. Vanaf de bank heeft u een mooi en rustiek uitzicht op het voor de deur gelegen water. Tevens zorgt de grote afstand ten opzichte van de tegenovergelegen panden voor veel privacy. 
Culinair genieten
Grenzend aan de woonkamer bevindt zich de eetkamer, met een schuifpui die directe toegang biedt tot het terras. Een elegante houten designkast van Piet Boon, inclusief Liebherr wijnklimaatkast, maakt dit tot de ideale plek voor lange diners en intieme borrels. De aangrenzende keuken is een meesterwerk van design en functionaliteit. Het marmeren kookeiland vormt het middelpunt. Verder is de keuken uitgerust met hoogwaardige Miele-apparatuur, waaronder een oven, combi-oven/magnetron en koel-vriescombinatie en een Quooker Cube (voor direct kokend, gekoeld én bruisend water). De wandopstelling met zes brede soft-close laden in licht houtfineer biedt royale bergruimte en versterkt de serene uitstraling.
Praktisch en toekomstbestendig
De bijkeuken voorziet in extra opbergruimte en herbergt de technische installaties, waaronder de vloerverwarming en het WTW-ventilatiesysteem. Een functionele, toekomstgerichte oplossing die comfort combineert met duurzaamheid.
Buitenleven in stijl
De achtertuin is ingericht met vergrijsde hardhouten vlonderplanken, weelderige hortensia’s en groene hedera. Hier vindt u een heerlijke plek om te ontspannen in alle privacy. In de schuur is extra bergruimte en er is een separaat gedeelte voor de warmtepomp. Ook is er een doorgang naar het beveiligde achterpad, ideaal als achterom voor de kinderen. 
Eerste verdieping: een luxe suite
De masterbedroom is een waar toevluchtsoord. Het inbouw headboard met taupe leren nachtkastjes en koperen lampjes geeft de ruimte een hotelwaardige uitstraling. Dankzij de dubbele raambekleding – doorschijnend én verduisterend – geniet u van maximale flexibiliteit. De ruime inloopkast, met laden, schoenenkasten en hanggedeeltes, geeft toegang tot de ensuite badkamer.
De masterbadkamer, ontworpen door Piet Boon, is uitgevoerd in exclusieve materialen. Een dubbele wastafel van Portugees marmer met COCOON-inbouwkranen, een in betonciré meegestuuct ligbad en een royale regendouche met glazen deur maken dit een spa-ervaring aan huis.
Op deze verdieping bevindt zich tevens een tweede slaapkamer met maatwerkkast en een tweede badkamer in dezelfde hoogwaardige stijl, voorzien van grote tegels, inbouwkranen en een modern wastafelmeubel.
Tweede verdieping: comfort en flexibiliteit
Op de tweede verdieping bevinden zich nog eens twee slaapkamers, beide voorzien van maatwerkkasten. Een van de kamers beschikt over een speciaal ontworpen inbouwkast met kindvriendelijke indeling. De derde badkamer, wederom in Piet Boon-design, is uitgevoerd met 120x120-tegels, inbouwkranen en een strak vormgegeven wastafelmeubel.
Extra voorzieningen
Op de eerste verdieping bevindt zich een apart washok, slim ingedeeld met ruimte voor wasmachine, droger, strijkplank en wasrek. In de achtertuin vindt u bovendien een berging van 1.70 x 3 meter en praktische opslagkasten.
Duurzaamheid en comfort
Deze woning combineert luxe met toekomstbestendig wonen. Dankzij de warmtepomp, vloerverwarming, WTW-ventilatie en airconditioning geniet u van optimaal klimaatcomfort, lage energielasten en een hoge mate van duurzaamheid. Met een energielabel A++ voldoet de woning aan de hoogste standaarden van energie-efficiëntie.
 
Een unieke kans
Dit huis van 203 m², volledig gerenoveerd in 2022, is geen standaard woning, maar een statement van stijl, comfort en kwaliteit. De combinatie van Piet Boon-design, hoogwaardige materialen en duurzame techniek maakt dit een thuis dat generaties lang mee kan. Een exclusieve kans voor wie op zoek is naar een woning die het dagelijks leven transformeert in pure luxe.
Bijzonderheden
- woonoppervlakte ca. 203 m2
- perceeloppervlakte ca. 226 m2
- high-end gerenoveerd 2022
- Pieter Boon signatuur
- zeer duurzaam, energielabel A++
- voortuin met eigen oprit en elektrisch hek
- gelegen aan het water
