Ons kantoor is lid van Baerz & Co Luxury Homes; een internationaal platform dat exclusieve woningmakelaars met elkaar verbindt. Neem contact op met ons secretariaat voor meer informatie over het landelijke aanbod, waarvan u hieronder een selectie kunt bekijken.

THORN
Trippaardstraat 33 - 6017 AM
Les Pays-Bas

Paul Pouls profile image
Paul Pouls
Registermakelaar
€700,000 k.k.
Surface habitable
232m2
Superficie du terrain
655m2
Chambres
4

Description

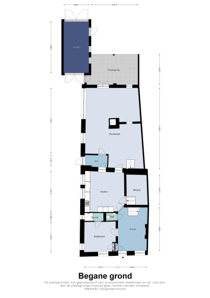
Le Townhouse Thorn s’ancre au cœur du centre historique, rendant hommage à des siècles d’héritage culturel au fil de rues pavées et d’architecture intemporelle. Dotée de 232 m² habitables et d’un terrain de 655 m², cette propriété invite les amateurs de raffinement à vivre une expérience authentiquement néerlandaise. La maison offre quatre chambres et deux salles de bains, intelligemment agencées pour convenir aussi bien à une résidence privée qu’à un projet de maison d’hôtes, une dualité rare parmi les biens classés de Thorn.

L’entrée traversante mène à un vaste hall puis à un séjour modulable d’environ 56 m², dont de larges baies vitrées et portes doubles s’ouvrent sur le jardin paysager, ainsi qu’à une cuisine de 21 m² parfaitement équipée pour un usage moderne. Certaines pièces bénéficient d’un chauffage au sol, de murs soigneusement enduits et de planchers bois harmonisés aux éléments authentiques comme la cheminée centrale. À l’étage, trois chambres s’associent à un salon et une salle de bains contemporaine, accessibles via des escaliers distincts, favorisant la confidentialité des résidents ou invités.

À l’extérieur, le jardin arrière à l’abri des regards, les terrasses et un garage indépendant de 22,7 m² avec grenier offrent des espaces calmes au sein de la ville. Les vitrages HR hautes performances et le chauffage par le sol partiel rehaussent le confort dans cet environnement chargé d’histoire. Le Townhouse Thorn incarne l’élégance intemporelle et séduira ceux qui recherchent une alliance unique entre histoire et discrétion.

Découvrez Thorn avec Baerz, votre conseiller et chasseur immobilier personnel de confiance

Valoriser grâce à l’expertise localeL’achat et la vente exigent la maîtrise du patrimoine, des réglementations et normes de préservation urbaine. Les conseils d’un expert offrent un accès ciblé au marché, des contacts privilégiés et un regard sur les opportunités confidentielles. Leur compétence en négociation et leur connaissance fine de la région protègent la valeur et la discrétion à chaque étape.

Évitez les pièges courants

Les acheteurs internationaux perdent souvent un temps précieux à naviguer entre des annonces en ligne dupliquées, obsolètes ou trompeuses, d’autant que près de 30% des propriétés de luxe ne sont jamais mises sur le marché.
Les agents du vendeur représentent les intérêts du vendeur, pas les vôtres, et une simple demande d’information peut entraîner votre inscription comme “client” auprès d’une agence sans votre consentement.
Avec Baerz Property Finders & Advisors, vous évitez totalement ces écueils.
Nous agissons exclusivement en votre nom, en vous offrant une représentation indépendante, des conseils transparents et un accès à toutes les propriétés disponibles, y compris les opportunités privées et off-market que les autres ne voient jamais.

Curieux de savoir comment obtenir votre propre Conseiller Immobilier Personnel ? Contactez-nous pour découvrir comment nous pouvons défendre vos intérêts et vous ouvrir l’accès à l’ensemble du marché.

Caractéristiques

Transfert de propriété
Prix demandé
€ 700.000 k.k.
Statut
beschikbaar
Acceptation
in overleg
Construction
Type de maison
Eengezinswoning
Type de bâtiment
halfvrijstaande woning
Période de construction
1700
Classe énergétique
D
Type de toit
samengesteld dak
Chambres
4
Salles de bains
2
Surfaces et volumes
Surface habitable
232 m2
Autre espace intérieur
14 m2
Espace extérieur attenant au bâtiment
20 m2
Espace de stockage externe
17 m2
Volume en mètres cubes
947 m3
Superficie du terrain
655 m2
Équipements
Aan rustige weg
In centrum
Baerz & Co Property Brochure

Brochure

Vidéos

Plans

Jack Frenken Makelaars & adviseurs

Graaf Reinaldstraat 1
6041 XB Roermond

paul.pouls@jackfrenken.nl
+31 475335225

www.jackfrenken.nl/

Demande d'information / de visite

Paul Pouls profile image
Paul Pouls
Registermakelaar