Ons kantoor is lid van Baerz & Co Luxury Homes; een internationaal platform dat exclusieve woningmakelaars met elkaar verbindt. Neem contact op met ons secretariaat voor meer informatie over het landelijke aanbod, waarvan u hieronder een selectie kunt bekijken.

SASSENHEIM
Van Pallandtlaan 24 - 2172 JJ
Pays-Bas

Rick Broekhof profile image
Rick Broekhof
Real estate agent
€1,295,000 k.k.
Surface habitable
199m2
Superficie du terrain
1130m2
Chambres
2

Description

La Villa Sassenheim vous invite à savourer l'espace et l'intimité sur un terrain de 1 130 m², au cœur d'un quartier résidentiel de renom aux Pays-Bas. Cette propriété combine son empreinte d'origine datant de 1951 à 199 m² d'espace de vie, révélant un dialogue harmonieux entre classicisme et modernité. Dès l'entrée, une allée spacieuse vous accueille, offrant de nombreux stationnements et menant vers des intérieurs lumineux, articulés autour d’un séjour en L, de vitraux d’époque et de parquets. La lumière se prolonge jusqu’à une véranda récente et à un second salon, tous deux équipés de sols carrelés chauffants, offrant ainsi une expérience de vie élargie et des espaces flexibles, propices à la détente comme à la convivialité.

Au premier étage, deux chambres d'environ 15 m² chacune sont agencées à l’arrière pour préserver la quiétude. La suite principale intègre une salle d’eau privative avec douche, tandis que la seconde chambre s’ouvre sur un balcon orienté sud-ouest. Une seconde salle de bains complète — avec baignoire, douche et double accès — offre un confort supplémentaire. Les combles, avec une hauteur au faîte de 2,3 mètres, laissent entrevoir un potentiel d’aménagement personnalisé.

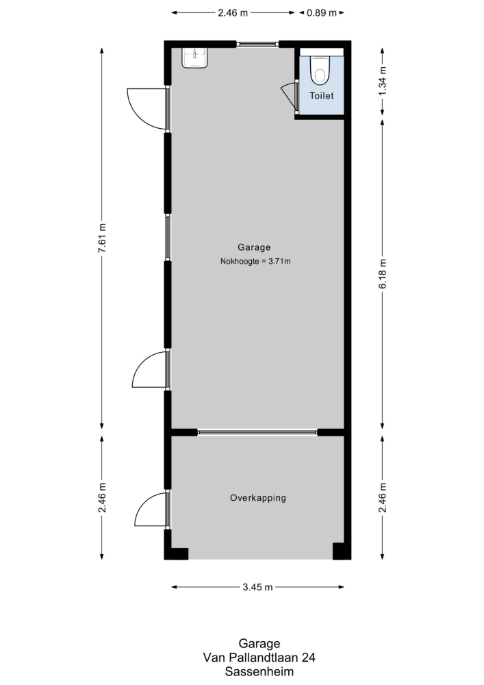
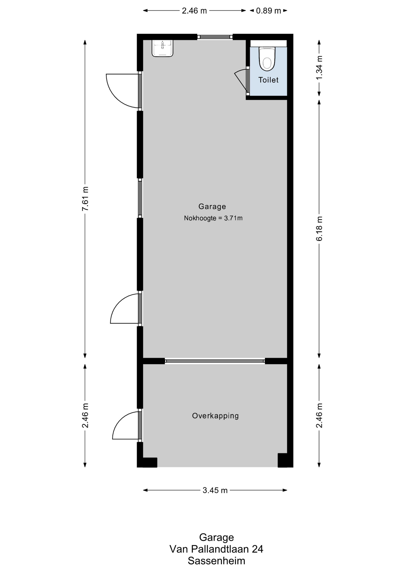
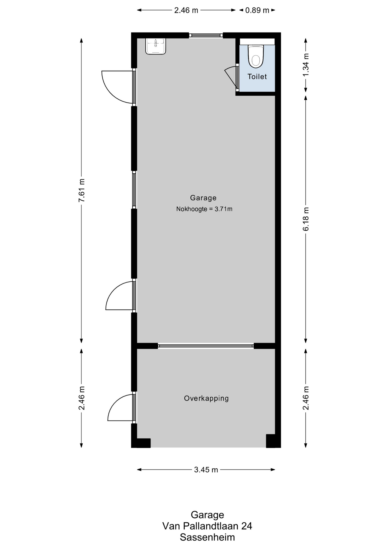
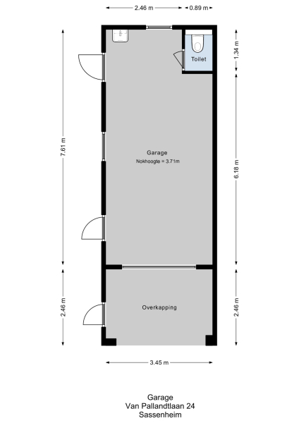
Le sous-sol, quasi intégral sur toute la surface, accessible depuis deux points, fait actuellement office de buanderie et d’espace de rangement, mais il est aisé d’y imaginer une salle de sport, un home cinéma ou un espace bien-être. À l’extérieur, le jardin paysager est desservi par deux allées et comprend un garage de 26 m² ainsi qu’un second de 16 m², permettant de nombreux stationnements et une parfaite fonctionnalité. La villa Sassenheim bénéficie d’un accès privilégié au cœur de Sassenheim — commerces, écoles, restaurants — ainsi qu’aux axes néerlandais principaux tels que l’A44 et la N206, offrant des liaisons rapides vers Leyde, Amsterdam, Haarlem et La Haye, sans oublier d’excellentes infrastructures de transport en commun. Cette villa à vendre à Sassenheim conjugue le charme authentique à des perspectives raffinées pour un mode de vie des plus exigeants.

Explorez Sassenheim avec Baerz, votre conseiller et chercheur de biens immobiliers de confiance

Le secteur haut de gamme exige une discrétion absolue et une connaissance approfondie du marché local. Les transactions hors marché et négociations confidentielles sont fréquentes. Le conseiller de confiance apporte un accès privilégié, défend les intérêts de son client et offre une lecture avisée des réglementations et de la rentabilité de l’investissement.

Évitez les pièges courants

Les acheteurs internationaux perdent souvent un temps précieux sur des annonces en double, obsolètes ou trompeuses en ligne, d'autant plus que près de 30% des maisons de luxe n'apparaissent jamais sur le marché public. Les agents du vendeur représentent les intérêts du vendeur, pas ceux de l'acheteur. Même demander des informations sur une propriété peut entraîner l'enregistrement par un agent du vendeur comme leur « client » sans votre consentement.
Avec Baerz Property Finders & Advisors, vous évitez entièrement tous ces pièges. Nous travaillons uniquement en votre nom, offrant une représentation indépendante, des conseils clairs et un accès à toutes les propriétés disponibles, y compris les opportunités hors marché que d'autres ne voient jamais.

Intéressé par un conseiller personnel en immobilier ?

Nous vous montrons toutes les maisons disponibles en un seul endroit. N'hésitez pas à nous contacter pour savoir comment nous pouvons répondre à vos besoins et protéger vos intérêts exclusivement.

Caractéristiques

Système d'alarme
Transfert de propriété
Prix demandé
€ 1.295.000 k.k.
Statut
beschikbaar
Acceptation
in overleg
Construction
Type de maison
Villa
Type de bâtiment
vrijstaande woning
Période de construction
1951
Classe énergétique
E
Type de toit
samengesteld dak
Chambres
2
Salles de bain
2
Surfaces et volume
Surface habitable
199 m2
Autre espace intérieur
94 m2
Espace extérieur attenant au bâtiment
11 m2
Espace de stockage externe
42 m2
Volume en mètres cubes
980 m3
Superficie du terrain
1130 m2
Installations
Alarminstallatie
Rookkanaal
Baerz & Co Property Brochure

Brochure

Vidéos

Wilbrink & v.d. Vlugt Makelaars

Heereweg 231
2161 BG Lisse

info@wilbrinkvandervlugt.nl
+31 252 41 90 49

www.onsaanbod.nl

Demande d'information / de visite

Rick Broekhof profile image
Rick Broekhof
Real estate agent