Ons kantoor is lid van Baerz & Co Luxury Homes; een internationaal platform dat exclusieve woningmakelaars met elkaar verbindt. Neem contact op met ons secretariaat voor meer informatie over het landelijke aanbod, waarvan u hieronder een selectie kunt bekijken.

LEIDEN
Nieuwe Rijn 17 - 2312 JC
Les Pays-Bas

Michiel de Jong RM profile image
Michiel de Jong RM
NVM Register Makelaar - Partner
€1,995,000 k.k.
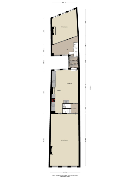
Surface habitable
437m2
Superficie du terrain
273m2
Chambres
7

Description

Cette maison historique à Leyde offre un rare équilibre entre architecture du XVIIe siècle et confort contemporain, sur les rives du Rhin, au pied de la colline du château. Derrière une façade discrète, la propriété dévoile 437 m² d’espaces de vie répartis entre la demeure principale d’origine et un bâtiment arrière restauré. Les vastes pièces, certaines surmontées de huit mètres sous faîtage, sont caractérisées par des poutres en chêne apparentes, des cheminées en pierre naturelle et un somptueux stuc, héritage d’une époque florissante.

Le premier étage accueille un salon de 70 m² avec vue sur le Rhin et la place de l’hôtel de ville (Stadhuisplein), ainsi qu’une remarquable cuisine-salle à manger de 50 m² dotée de vastes plans de travail et d’une table pour douze convives, procurant grandeur aux réceptions comme à la vie quotidienne. Les espaces de nuit occupent les niveaux supérieurs, proposant sept chambres et trois salles de bains, chacune bénéficiant de grandes fenêtres, de placards intégrés et de rangements pour le linge, dont une suite parentale avec salle de bain attenante sous des toitures spectaculaires.

La maison arrière s’ouvre naturellement sur le jardin, véritable havre au cœur du centre médiéval protégé de Leyde. Pensé pour la détente ou la convivialité, il offre un jardin d’hiver avec cuisine supplémentaire au rez-de-chaussée, un second salon lumineux avec vue sur le château, et une dépendance indépendante pour invités. Des éléments tels que la ventilation mécanique, le conduit de cheminée, l’isolation de la toiture, le chauffage partiel par le sol et la fibre optique assurent un confort moderne, tandis que le classement en monument national et l’intégration dans un ensemble urbain préservé préservent toute sa portée historique.

À deux pas, le centre de Leyde séduit par ses cafés en terrasse, marchés et musées accessibles à pied, tandis qu’écoles, clubs sportifs et gare centrale se rejoignent aisément à vélo. Les résidents bénéficient d’un permis de stationnement en centre-ville, avec garages à proximité pour les invités. Une opportunité rare d’habiter une propriété superbement restaurée, alliant prestige historique, ampleur et accès immédiat à la vie culturelle de Leyde.

Découvrez Leyde avec Baerz, votre conseiller et chasseur immobilier personnel de confiance

Pénétrer le marché de Leiden suppose une parfaite connaissance des usages locaux, du cadre règlementaire et des opportunités discrètes. Des conseillers experts donnent accès à des portefeuilles rares, maîtrisent la négociation et offrent un accompagnement intégral dans la structuration des acquisitions. Leur capacité à anticiper les tendances, à discerner les occasions singulières et à protéger les intérêts de leurs clients assure un avantage stratégique et une tranquillité constante.

Évitez les pièges courants

Les acheteurs internationaux perdent souvent un temps précieux à naviguer entre des annonces en ligne dupliquées, obsolètes ou trompeuses, d’autant que près de 30% des propriétés de luxe ne sont jamais mises sur le marché.
Les agents du vendeur représentent les intérêts du vendeur, pas les vôtres, et une simple demande d’information peut entraîner votre inscription comme “client” auprès d’une agence sans votre consentement.
Avec Baerz Property Finders & Advisors, vous évitez totalement ces écueils.
Nous agissons exclusivement en votre nom, en vous offrant une représentation indépendante, des conseils transparents et un accès à toutes les propriétés disponibles, y compris les opportunités privées et off-market que les autres ne voient jamais.

Curieux de savoir comment obtenir votre propre Conseiller Immobilier Personnel ? Contactez-nous pour découvrir comment nous pouvons défendre vos intérêts et vous ouvrir l’accès à l’ensemble du marché.

Caractéristiques

Transfert de propriété
Prix demandé
€ 1.995.000 k.k.
Statut
beschikbaar
Acceptation
in overleg
Construction
Type de maison
Grachtenpand
Type de bâtiment
tussenwoning
Période de construction
1650
Type de toit
zadeldak
Chambres
7
Salles de bains
3
Surfaces et volumes
Surface habitable
437 m2
Autre espace intérieur
31 m2
Volume en mètres cubes
1659 m3
Superficie du terrain
273 m2
Équipements
Mechanische ventilatie
Rookkanaal
Dakraam
Glasvezel kabel
Aan water
In centrum
Vrij uitzicht
Aan vaarwater
Baerz & Co Property Brochure

Brochure

Vidéos

Graal Makelaardij

Rapenburg 4
2311 EV Leiden

info@graalmakelaardij.nl
+31 (0)71 51 61 000

www.graalmakelaardij.nl

Demande d'information / de visite

Michiel de Jong RM profile image
Michiel de Jong RM
NVM Register Makelaar - Partner