Ons kantoor is lid van Baerz & Co Luxury Homes; een internationaal platform dat exclusieve woningmakelaars met elkaar verbindt. Neem contact op met ons secretariaat voor meer informatie over het landelijke aanbod, waarvan u hieronder een selectie kunt bekijken.

HAAREN
Nieuwe Erven 12 - 5076 NP
Países Bajos

Marleen de Bekker profile image
Marleen de Bekker
Real Estate Agent
€1,250,000 k.k.
Área de estar
184m2
Tamaño del terreno
918m2
Dormitorios
5

Descripción

Esta casa familiar en Haaren ofrece una extraordinaria combinación de privacidad y amplitud, ubicada en una generosa parcela de 918 m² en las afueras del pueblo. Con una superficie habitable de 184 m², la vivienda dispone de cuatro dormitorios en una sola planta, lo que la convierte en una opción ideal para una convivencia familiar armoniosa. El diseño cuidadoso se refleja en la transición desde un luminoso salón—con grandes ventanales y chimenea central—hacia una cocina moderna de concepto abierto, acabada en blanco brillante con encimera de material compuesto, grifo Quooker y dos hornos. Un amplio lavadero conecta el garaje y el jardín, optimizando la funcionalidad diaria.

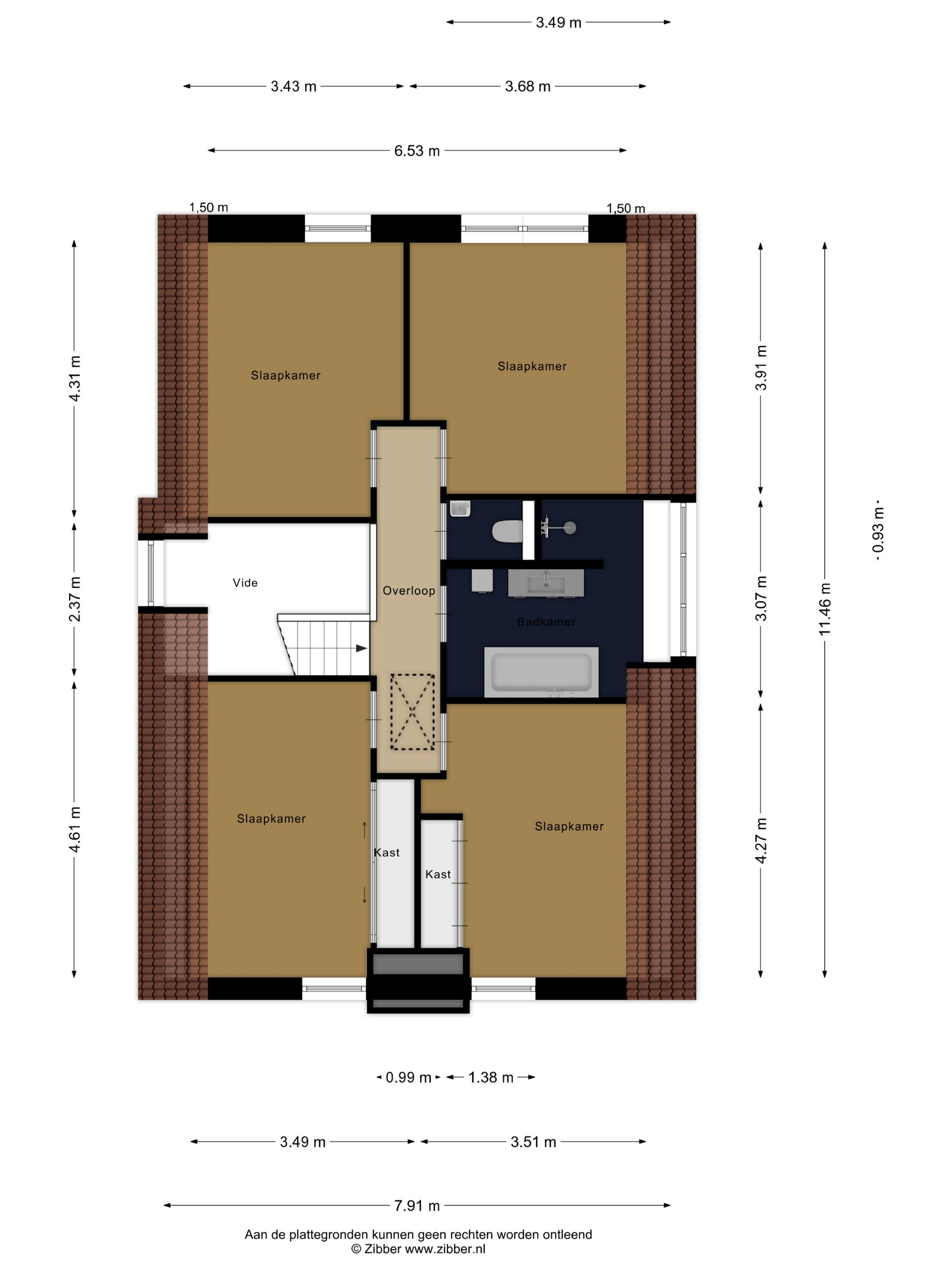
En la planta superior, cada dormitorio ofrece aproximadamente 15 m² de espacio tranquilo, mientras que el baño cuenta con ducha a ras de suelo, doble lavabo, bañera grande, luz natural y suelo radiante. El ático, que recorre toda la longitud de la casa, proporciona un generoso espacio de almacenamiento para necesidades estacionales.

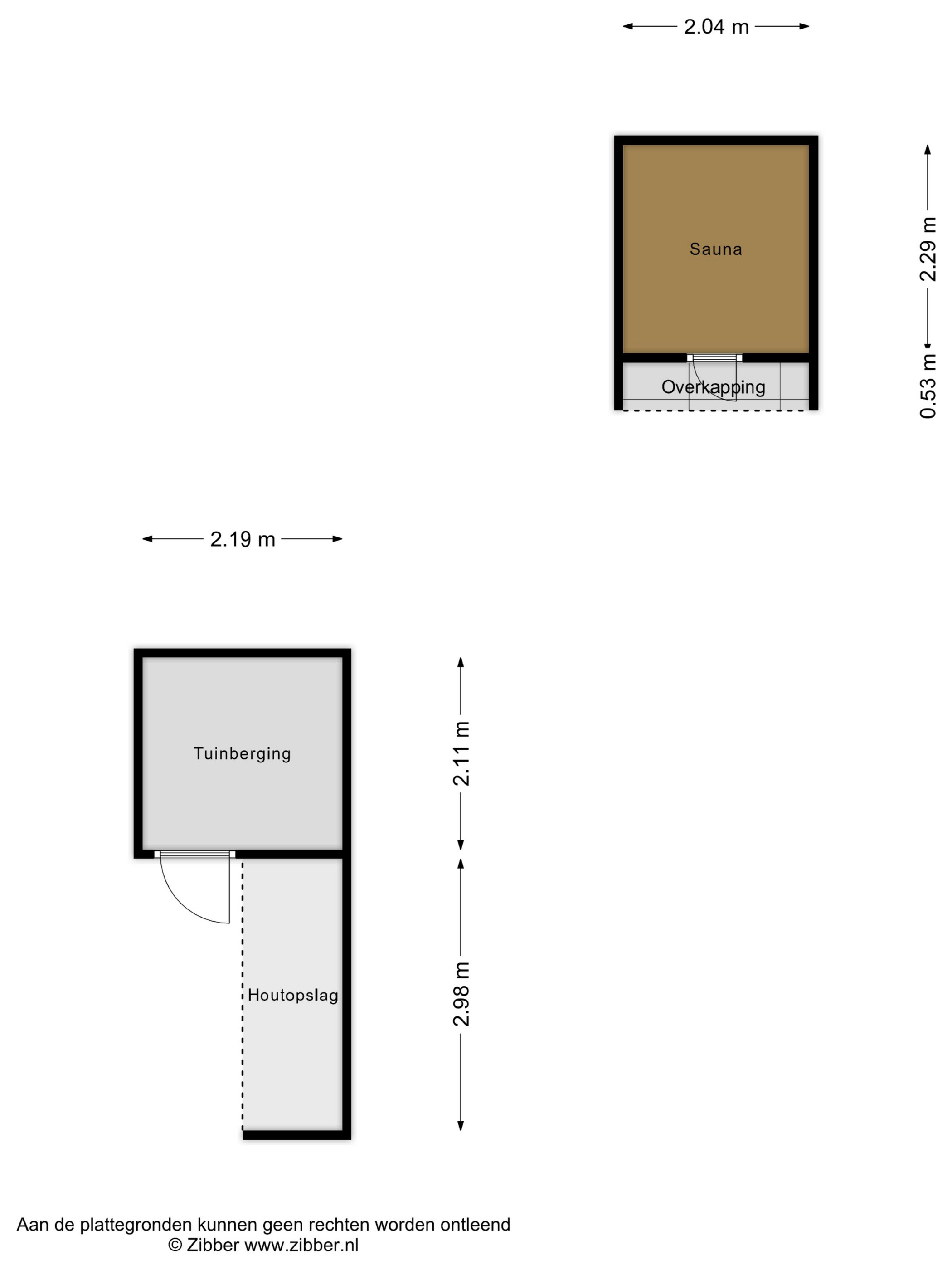
En el exterior, los ambientes varían entre una amplia terraza soleada, un área cubierta con lucernario y una sauna privada. Los setos adultos garantizan privacidad, dejando espacio para el juego y la relajación. El garaje aislado de 3,85 m por 6,30 m aporta versatilidad, y la entrada permite estacionar entre cuatro y seis coches. Dieciocho paneles solares, aislamiento total y una calificación energética A+ garantizan una eficiencia duradera.

La vivienda se sitúa en una tranquila zona residencial de Haaren, cerca de cafeterías, restaurantes, rutas ciclistas, la extensa reserva natural Kampina y el parque nacional Loonse en Drunense Duinen. La fluidez entre interior y exterior, los conforts contemporáneos y la proximidad a la vida del pueblo convierten a esta propiedad en un acogedor refugio familiar en el corazón de los Países Bajos.

Explora Haaren con Baerz, tu asesor y buscador personal de propiedades de confianza

Los clientes más exigentes se benefician de asesores con profundo conocimiento local, conexiones sólidas y dominio de operaciones internacionales. Muchas de las mejores propiedades cambian de manos de forma privada, requiriendo la intervención de expertos en negociación, revisión legal y servicios a medida. La ventaja de un asesor experimentado es facilitar acceso a opciones exclusivas y proteger los intereses del cliente en operaciones complejas.

Evite errores comunes

Los compradores internacionales a menudo desperdician tiempo valioso navegando por anuncios duplicados, desactualizados o engañosos, especialmente porque casi el 30% de las propiedades de lujo nunca aparecen en el mercado.
Los agentes del vendedor representan los intereses del vendedor, no los suyos, y simplemente solicitar información sobre una propiedad puede hacer que las agencias lo registren como su “cliente” sin su consentimiento.
Con Baerz Property Finders & Advisors, evita completamente estos problemas.
Actuamos únicamente en su nombre, ofreciendo representación independiente, orientación transparente y acceso a todas las propiedades disponibles, incluidas oportunidades privadas y fuera de mercado que otros nunca ven.

¿Le gustaría saber cómo asegurar su propio Asesor Personal de Propiedades? Contáctenos para descubrir cómo podemos representar sus intereses y abrirle el mercado completo.

Características

Paneles solares
Transferencia de propiedad
Precio de Venta
€ 1.250.000 k.k.
Estado
onder bod
Aceptación
in overleg
Construcción
Tipo de casa
Eengezinswoning
Tipo de edificio
vrijstaande woning
Período de construcción
2016
Calificación energética
A+
Tipo de techo
zadeldak
Dormitorios
5
Baños
1
Superficies y Volumen
Área de estar
184 m2
Otro espacio interior
44 m2
Espacio exterior adjunto al edificio
36 m2
Espacio de almacenamiento externo
9 m2
Volumen en metros cúbicos
844 m3
Tamaño del terreno
918 m2
Instalaciones
Mechanische ventilatie
Tv kabel
Rookkanaal
Schuifpui
Sauna
Glasvezel kabel
Zonnepanelen
Aan rustige weg
In woonwijk
Baerz & Co Property Brochure

Folleto

Vídeos

Planos

Finesse Makelaardij

Groenstraat 31
5062 NA Oisterwijk

info@finesse-makelaardij.nl
+31 655757171

www.finesse-makelaardij.nl

Solicitud de información / Visita

Marleen de Bekker profile image
Marleen de Bekker
Real Estate Agent