Ons kantoor is lid van Baerz & Co Luxury Homes; een internationaal platform dat exclusieve woningmakelaars met elkaar verbindt. Neem contact op met ons secretariaat voor meer informatie over het landelijke aanbod, waarvan u hieronder een selectie kunt bekijken.

BLARICUM
Rotondeweg 26 - 1261 BG
Países Bajos

Marquiette Schaap profile image
Marquiette Schaap
Real estate agent
€1,495,000 k.k.
Área de estar
144m2
Tamaño del terreno
540m2
Dormitorios
4

Descripción

La casa familiar Blaricum combina el encanto de mediados de siglo con una cuidada modernización en una tranquila avenida arbolada. Esta villa ofrece 144 m² de superficie habitable, donde el carácter original de los años 50 coexiste con el confort contemporáneo. El terreno ajardinado de 540 m² proporciona privacidad y un jardín orientado al sur, envolviendo la vivienda en naturaleza y luz.

El salón en forma de L, acabado con suelo de parqué y chimenea de gas, se abre mediante puertas francesas a soleadas terrazas en el jardín. La cocina de concepto abierto dispone de electrodomésticos integrados y acceso directo al exterior. Un sótano de altura completa ofrece espacio adicional de almacenamiento y utilidad, facilitando la vida diaria.

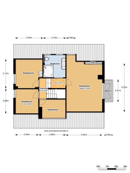
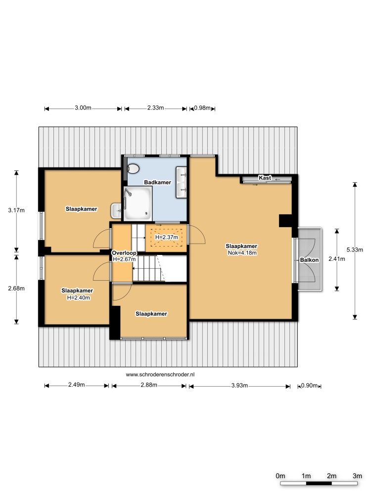
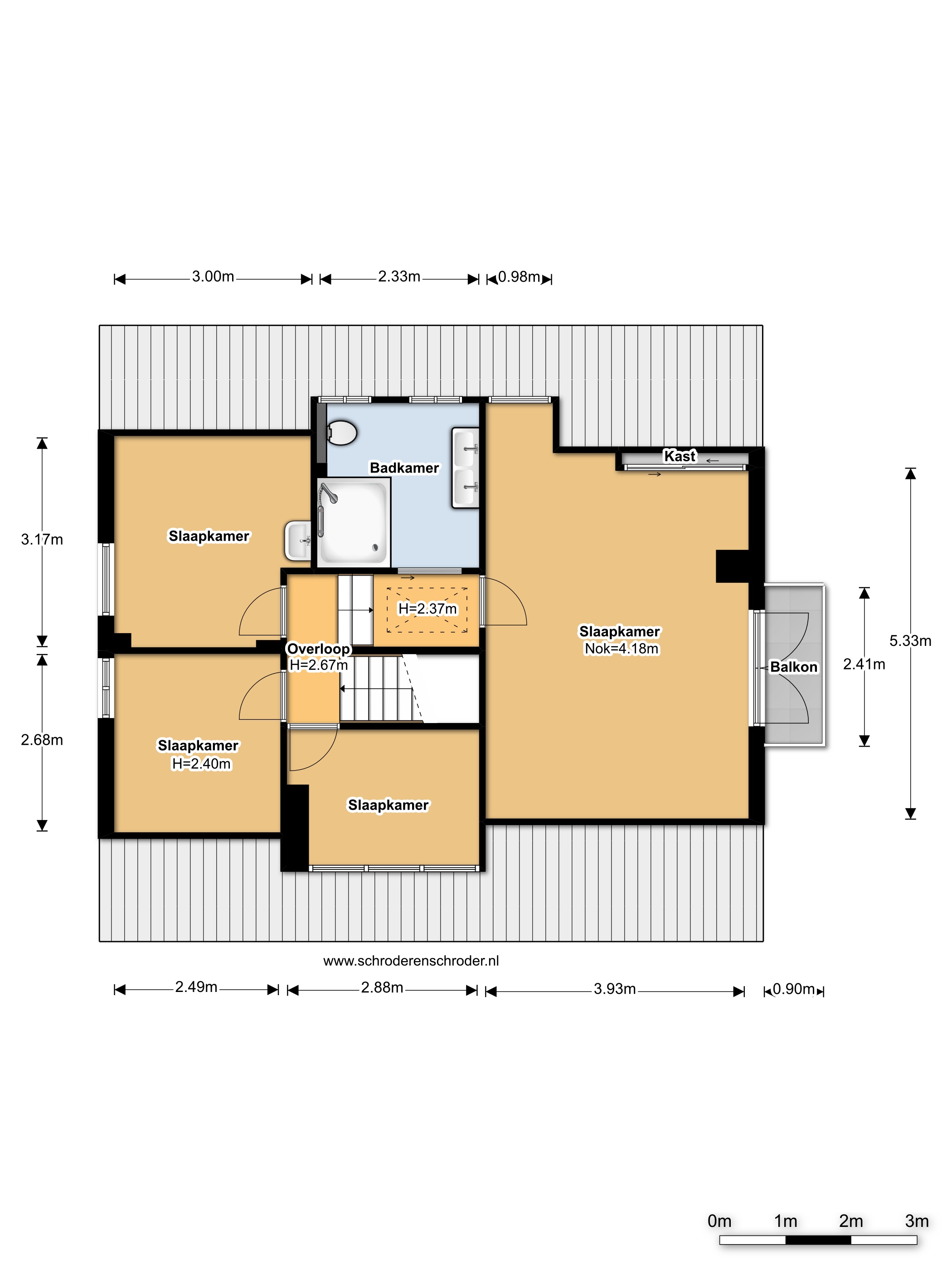
En la planta superior, la suite principal destaca por su techo abovedado y balcón, acompañada de dos dormitorios adicionales, un despacho y un baño moderno con suelo radiante, ducha a ras de suelo y cabina de vapor. El antiguo garaje se ha convertido en un estudio independiente de 16 m² con espacio de trabajo climatizado y luz natural, equipado con agua y electricidad.

Entre las características sostenibles se incluyen un sistema de calefacción central de 2025, catorce paneles solares y un aislamiento de alto rendimiento con acristalamiento doble y HR. La vivienda cuenta con aparcamiento privado para dos coches y está a poca distancia a pie del centro histórico de Blaricum, bosques y brezales. El acceso privilegiado a la autopista sitúa Ámsterdam y Utrecht a poca distancia, convirtiendo esta villa de lujo a la venta en Blaricum en un refugio pensado para quienes buscan serenidad y conexión.

Explora Blaricum con Baerz, tu asesor y buscador personal de propiedades de confianza

Navegar el mercado inmobiliario de Blaricum exige discreción y acceso privilegiado. Los asesores descubren oportunidades fuera de mercado y guían las negociaciones con profesionalidad, garantizando la protección de los intereses del cliente. Su conocimiento local y red permiten decisiones informadas, facilitando la diligencia debida y alineando objetivos de estilo de vida con lo que ofrece la zona.

Evite errores comunes

Los compradores internacionales a menudo desperdician tiempo valioso navegando por anuncios duplicados, desactualizados o engañosos, especialmente porque casi el 30% de las propiedades de lujo nunca aparecen en el mercado.
Los agentes del vendedor representan los intereses del vendedor, no los suyos, y simplemente solicitar información sobre una propiedad puede hacer que las agencias lo registren como su “cliente” sin su consentimiento.
Con Baerz Property Finders & Advisors, evita completamente estos problemas.
Actuamos únicamente en su nombre, ofreciendo representación independiente, orientación transparente y acceso a todas las propiedades disponibles, incluidas oportunidades privadas y fuera de mercado que otros nunca ven.

¿Le gustaría saber cómo asegurar su propio Asesor Personal de Propiedades? Contáctenos para descubrir cómo podemos representar sus intereses y abrirle el mercado completo.

Características

Alarm system
Transferencia de propiedad
Precio de Venta
€ 1.495.000 k.k.
Estado
beschikbaar
Aceptación
in overleg
Construcción
Tipo de casa
Eengezinswoning
Tipo de edificio
vrijstaande woning
Período de construcción
1952
Calificación energética
C
Tipo de techo
zadeldak
Dormitorios
4
Baños
1
Superficies y Volumen
Área de estar
144 m2
Otro espacio interior
20 m2
Espacio exterior adjunto al edificio
2 m2
Espacio de almacenamiento externo
8 m2
Volumen en metros cúbicos
519 m3
Tamaño del terreno
540 m2
Instalaciones
Alarminstallatie
Tv kabel
Rookkanaal
Dakraam
Natuurlijke ventilatie
Aan bosrand
Aan rustige weg
In woonwijk
Beschutte ligging
In bosrijke omgeving
Baerz & Co Property Brochure

Folleto

Vídeos

Art of Living by Marquiette & Partners

Meentweg 4
1261 XT Blaricum

hello@artoflivingbymar.com
+31 35 763 54 24

www.artoflivingbymarquiette.com

Solicitud de información / Visita

Marquiette Schaap profile image
Marquiette Schaap
Real estate agent