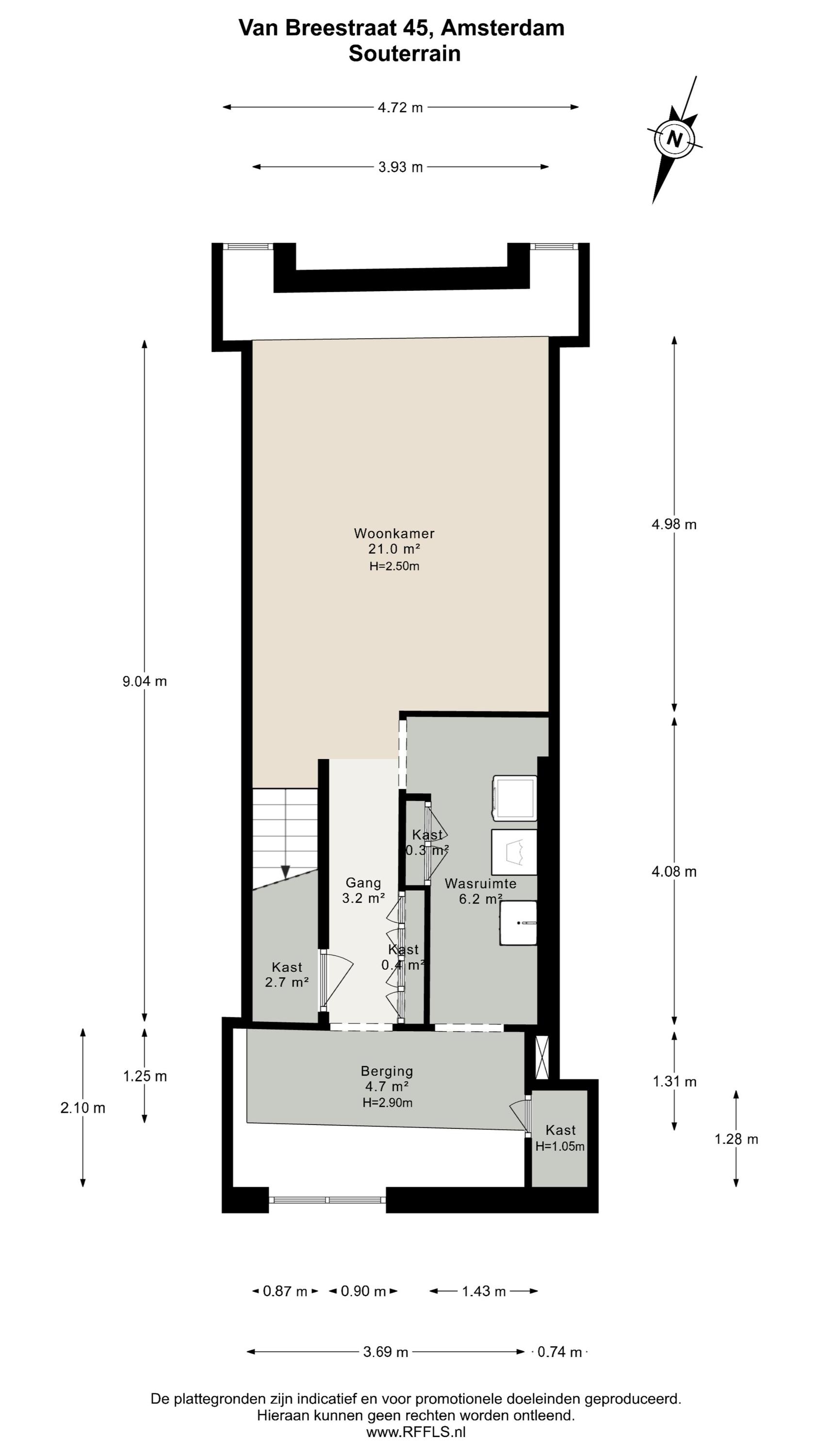
Townhouse Amsterdam Oud-Zuid representa la convergencia entre la integridad arquitectónica y el prestigio urbano en una de las ubicaciones más codiciadas de Ámsterdam. Esta residencia familiar, que abarca 291 m² distribuidos en cinco plantas completas, se encuentra en Van Breestraat, en el Distrito de los Museos, a escasa distancia de P.C. Hooftstraat, Vondelpark y Museumplein. El hogar ofrece un mundo privado forjado por la renovación arquitectónica realizada en 2012 por Dick van Gameren, donde el flujo espacial expansivo, la abundante luz natural y un diseño sereno se combinan de forma armoniosa. El townhouse cuenta con cuatro dormitorios, dos baños, un atrio bañado por la luz natural coronado por una gran claraboya y un jardín orientado al sur de 40,2 m², que prolonga los espacios de convivencia y permite disfrutar del aire libre en Amsterdam Oud-Zuid.
En toda la vivienda, la interacción entre los detalles originales y las modernas actualizaciones—como interruptores inteligentes programables, domótica, aislamiento acústico de alta calidad y aire acondicionado—reafirma el compromiso con el confort y la preparación para el futuro. La cocina a medida ha sido diseñada para comidas familiares íntimas y eventos distinguidos, con acceso directo, a través de puertas francesas, a la terraza cubierta y al jardín. Varios balcones, un sótano multifuncional y una galería con vistas al atrio central aportan dimensión al estilo de vida.
Con clase energética A, tecnología doméstica avanzada, paneles solares y preparativos para un ascensor de pasajeros, la propiedad combina sostenibilidad y flexibilidad contemporánea. Ubicada en una tranquila calle arbolada que evoca una atmósfera residencial, la dirección ofrece la calma de un pueblo en medio de la vitalidad de Ámsterdam. Una conectividad excelente, la proximidad a colegios internacionales y el acceso inmediato a espacios culturales enriquecen la vida diaria. Este townhouse en Amsterdam Oud-Zuid encapsula la privacidad y el dinamismo que definen la vida urbana de primer nivel.
Explora Ámsterdam con Baerz, tu asesor y buscador personal de propiedades de confianza
Navegar en el mercado de lujo de Ámsterdam exige un profundo conocimiento local, discreción y habilidad negociadora. Los mejores asesores ofrecen acceso a listados privados, aclaran las complejidades legales y detectan oportunidades en un contexto donde rara vez afloran al público. Los equipos consultores realizan auditorías exhaustivas y representación personalizada, fortaleciendo su posición en negociaciones, garantizando transacciones impecables y protegiendo su privacidad en cada etapa.
Evite errores comunes
Los compradores internacionales a menudo desperdician tiempo valioso navegando por anuncios duplicados, desactualizados o engañosos, especialmente porque casi el 30% de las propiedades de lujo nunca aparecen en el mercado.
Los agentes del vendedor representan los intereses del vendedor, no los suyos, y simplemente solicitar información sobre una propiedad puede hacer que las agencias lo registren como su “cliente” sin su consentimiento.
Con Baerz Property Finders & Advisors, evita completamente estos problemas.
Actuamos únicamente en su nombre, ofreciendo representación independiente, orientación transparente y acceso a todas las propiedades disponibles, incluidas oportunidades privadas y fuera de mercado que otros nunca ven.
¿Le gustaría saber cómo asegurar su propio Asesor Personal de Propiedades? Contáctenos para descubrir cómo podemos representar sus intereses y abrirle el mercado completo.