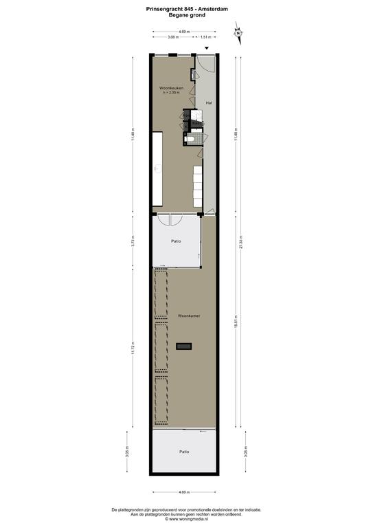
Esta casa de canal en Ámsterdam alcanza la perfección en Prinsengracht, donde esta residencia completamente renovada se extiende sobre aproximadamente 287 m² y establece un estándar excepcional para la vida urbana. Distribuida en cinco plantas diseñadas con esmero, la vivienda dispone de cuatro dormitorios y tres baños, además de dos patios privados y una experiencia residencial definida por la luz, la proporción y la autenticidad.
El acceso se realiza a través de una histórica entrada junto al canal. El vestíbulo, con suelo de mármol, conduce a una luminosa cocina con comedor, equipada con electrodomésticos Gaggenau y un amplio salón-comedor con vistas al canal a través de ventanales de gran tamaño. Las puertas de acero acristalado, los azulejos antiguos conservados y la impresionante extensión de más de 30 metros en la planta baja aportan una continuidad difícil de encontrar incluso entre las célebres casas de canal de Ámsterdam. El microcemento del salón, la chimenea de gas tipo túnel y los generosos lucernarios ofrecen un ambiente sereno y sofisticado, mientras que los patios y los azulejos originales conectan el exterior con el interior.
Cada planta superior está acabada en roble francés, desde los espacios de la primera planta —ideales para oficina en casa o sala de estar— hasta la suite principal que ocupa todo el segundo nivel, con vistas al canal, vigas expuestas y baño privado de lujo. Los dormitorios adicionales, los baños de microcemento de última generación y una suite en la última planta proporcionan estancias familiares amplias, todas climatizadas y gestionadas mediante avanzada domótica.
Ubicada en el centro de Ámsterdam, entre Nieuwe Spiegelstraat y Vijzelstraat, la propiedad brinda acceso inmediato a museos, tiendas distinguidas, alta gastronomía y la tranquila dignidad de Amstelveld. Tranvía, metro y vías principales comunican la ciudad y el aeropuerto con suma facilidad. Esta casa de canal en propiedad eleva la vida urbana a un referente internacional, combinando historia, ritmo y discreción. Para quienes buscan una casa de canal de lujo en venta en Ámsterdam, esta dirección supone una rara fusión de patrimonio y refinamiento contemporáneo.
Explora Ámsterdam con Baerz, tu asesor y buscador personal de propiedades de confianza
Navegar en el mercado de lujo de Ámsterdam exige un profundo conocimiento local, discreción y habilidad negociadora. Los mejores asesores ofrecen acceso a listados privados, aclaran las complejidades legales y detectan oportunidades en un contexto donde rara vez afloran al público. Los equipos consultores realizan auditorías exhaustivas y representación personalizada, fortaleciendo su posición en negociaciones, garantizando transacciones impecables y protegiendo su privacidad en cada etapa.
Evite errores comunes
Los compradores internacionales a menudo desperdician tiempo valioso navegando por anuncios duplicados, desactualizados o engañosos, especialmente porque casi el 30% de las propiedades de lujo nunca aparecen en el mercado.
Los agentes del vendedor representan los intereses del vendedor, no los suyos, y simplemente solicitar información sobre una propiedad puede hacer que las agencias lo registren como su “cliente” sin su consentimiento.
Con Baerz Property Finders & Advisors, evita completamente estos problemas.
Actuamos únicamente en su nombre, ofreciendo representación independiente, orientación transparente y acceso a todas las propiedades disponibles, incluidas oportunidades privadas y fuera de mercado que otros nunca ven.
¿Le gustaría saber cómo asegurar su propio Asesor Personal de Propiedades? Contáctenos para descubrir cómo podemos representar sus intereses y abrirle el mercado completo.