Ons kantoor is lid van Baerz & Co Luxury Homes; een internationaal platform dat exclusieve woningmakelaars met elkaar verbindt. Neem contact op met ons secretariaat voor meer informatie over het landelijke aanbod, waarvan u hieronder een selectie kunt bekijken.

AMSTERDAM
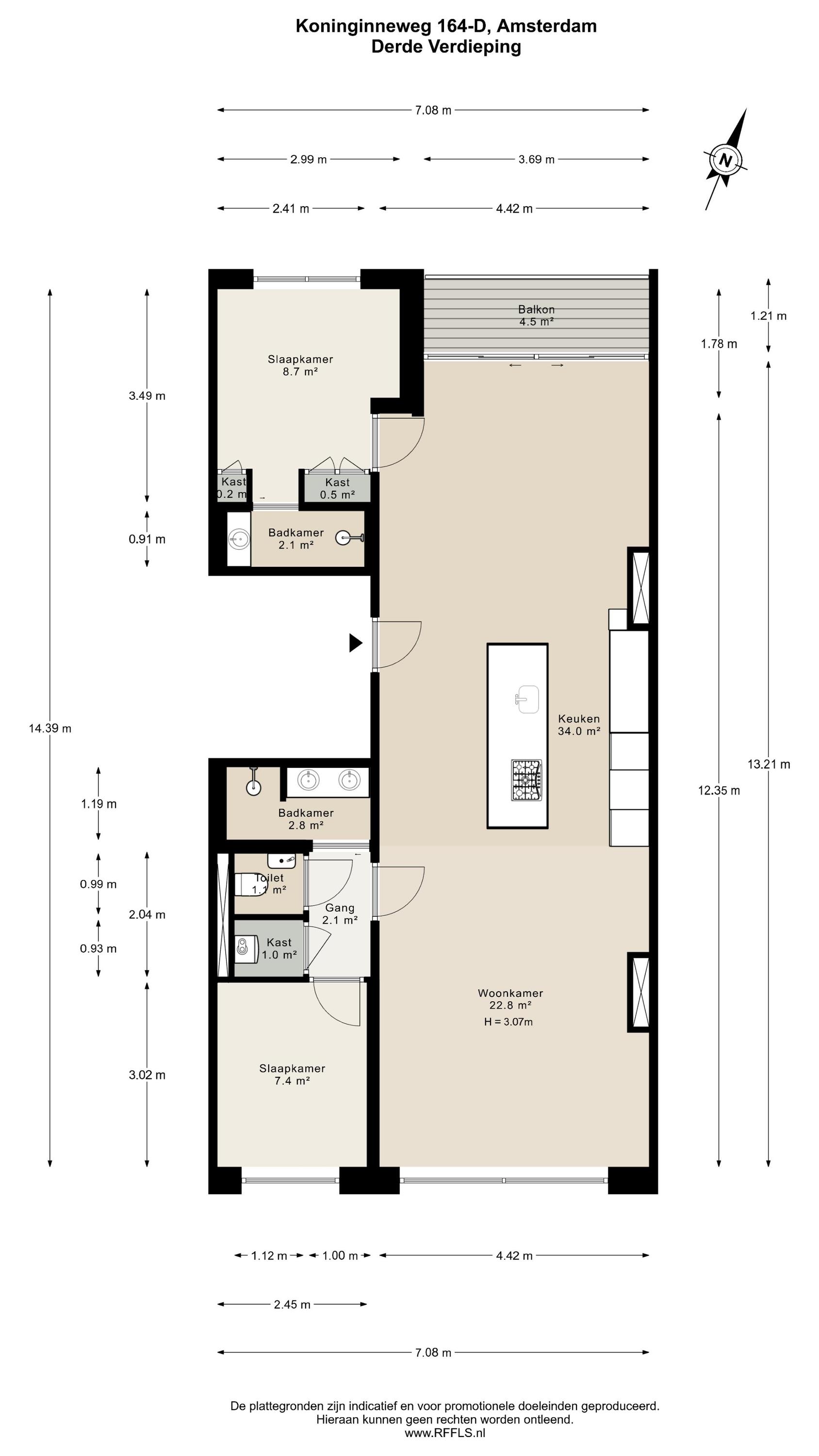
Koninginneweg 164 D - 1075 EG
Países Bajos

Eran Hausel profile image
Eran Hausel
Real estate agent
€1,050,000 k.k.
Área de estar
88m2
Tamaño del terreno
N/A
Dormitorios
2

Descripción

El apartamento Amsterdam Oud-Zuid introduce un equilibrio pensado entre proporciones clásicas y confort refinado. Ubicado en la distinguida Koninginneweg, esta residencia en la tercera planta ofrece 88 m² de espacio vital elegantemente diseñado. La propiedad le sitúa en el corazón cultural de Ámsterdam, a pocos pasos del Vondelpark y el Barrio de los Museos, con boutiques exclusivas y todos los servicios diarios a su alcance.

La amplia zona de estar de planta abierta se caracteriza por la abundante luz natural procedente de grandes ventanales en la parte delantera y trasera, acompañada de techos que alcanzan aproximadamente 3,07 metros. La cocina de alta gama constituye el centro natural del hogar, equipada con una generosa isla con placa de inducción, Quooker, electrodomésticos integrados y un área de bar para conversaciones relajadas. Dos dormitorios y dos baños garantizan privacidad y confort; la suite principal dispone de armarios empotrados y baño en suite con ducha a ras de suelo. El segundo baño está adaptado tanto para invitados como para la familia.

Un balcón cubierto invita a la calma, con vistas a jardines frondosos, ofreciendo un respiro del ritmo de la ciudad. La calefacción por suelo radiante, un avanzado aislamiento y la etiqueta energética A reflejan un auténtico compromiso con la comodidad y la eficiencia. Este apartamento combina lujo discreto con practicidad diaria, beneficiándose de una pequeña y bien gestionada comunidad de propietarios (VvE) y una propiedad plena. El acceso directo a las mejores tiendas, espacios culturales y zonas verdes de Ámsterdam completa el escenario para un estilo de vida cosmopolita.

Explora Ámsterdam con Baerz, tu asesor y buscador personal de propiedades de confianza

Navegar en el mercado de lujo de Ámsterdam exige un profundo conocimiento local, discreción y habilidad negociadora. Los mejores asesores ofrecen acceso a listados privados, aclaran las complejidades legales y detectan oportunidades en un contexto donde rara vez afloran al público. Los equipos consultores realizan auditorías exhaustivas y representación personalizada, fortaleciendo su posición en negociaciones, garantizando transacciones impecables y protegiendo su privacidad en cada etapa.

Evite errores comunes

Los compradores internacionales a menudo desperdician tiempo valioso navegando por anuncios duplicados, desactualizados o engañosos, especialmente porque casi el 30% de las propiedades de lujo nunca aparecen en el mercado.
Los agentes del vendedor representan los intereses del vendedor, no los suyos, y simplemente solicitar información sobre una propiedad puede hacer que las agencias lo registren como su “cliente” sin su consentimiento.
Con Baerz Property Finders & Advisors, evita completamente estos problemas.
Actuamos únicamente en su nombre, ofreciendo representación independiente, orientación transparente y acceso a todas las propiedades disponibles, incluidas oportunidades privadas y fuera de mercado que otros nunca ven.

¿Le gustaría saber cómo asegurar su propio Asesor Personal de Propiedades? Contáctenos para descubrir cómo podemos representar sus intereses y abrirle el mercado completo.

Características

Transferencia de propiedad
Precio de Venta
€ 1.050.000 k.k.
Estado
beschikbaar
Aceptación
in overleg
Construcción
Tipo de casa
Tussenverdieping
Tipo de edificio
appartement
Período de construcción
1913
Calificación energética
A
Tipo de techo
plat dak
Dormitorios
2
Baños
2
Superficies y Volumen
Área de estar
88 m2
Otro espacio interior
0 m2
Espacio exterior adjunto al edificio
5 m2
Volumen en metros cúbicos
335 m3
Instalaciones
Mechanische ventilatie
Tv kabel
In centrum
In woonwijk
Baerz & Co Property Brochure

Folleto

Vídeos

Heeren Makelaars

Stadionweg 75
1077 SE Amsterdam

info@heerenmakelaars.nl
+31 204702255

www.heerenmakelaars.nl

Solicitud de información / Visita

Eran Hausel profile image
Eran Hausel
Real estate agent