Ons kantoor is lid van Baerz & Co Luxury Homes; een internationaal platform dat exclusieve woningmakelaars met elkaar verbindt. Neem contact op met ons secretariaat voor meer informatie over het landelijke aanbod, waarvan u hieronder een selectie kunt bekijken.

Villa for rent in UITDAM

UITDAM Zeedijk 2 434 - 1154 PP The Netherlands


Niels Eering profile image
Niels Eering
Real Estate Agent
+020 2050208
info@11makelaars.nl

11 Makelaars - Waterland
Nieuwe Gouw 10-12
1121 GX Landsmeer
NETHERLANDS
+31 20 20 50 208
www.11makelaars.nl
info@11makelaars.nl

Living area
146m2
Plot size
840m2
Bedrooms
6

Description

Zeedijk 2 (434) te Uitdam

Bel nu voor een afspraak of vraag een brochure aan van dit royale familiehuis, perfect voor short stay-verhuur, met een spectaculair uitzicht over het Markermeer! Gelegen op de allermooiste plek in de 'Poort van Amsterdam'!

Deze Waterlandse villa met 6 slaapkamers, 3 badkamers, sauna en royale living ligt op de verste punt van een prachtig haven resort. De grootste HOEK kavel van 840 m2 EIGEN GROND, geeft mooie vergezichten over het Waterlandse polder landschap en het open vaarwater van het Markermeer.

De villa is rustig gelegen aan het einde van het park. Hier komt geen (doorgaand) verkeer, en heb je volop privacy.
In de volwassen tuin met terrassen en vlonder steiger aan het water, kan je met familie en vrienden gezellig bijeenkomen.

Uitdam is een ideale uitvalsbasis voor het maken van lange wandel- en fietstochten of het verkennen van de gezellige dorpjes, zoals het historische Marken, Monnickendam en Volendam. Op de fiets of met de auto naar Amsterdam? Je bent er echt heel snel!

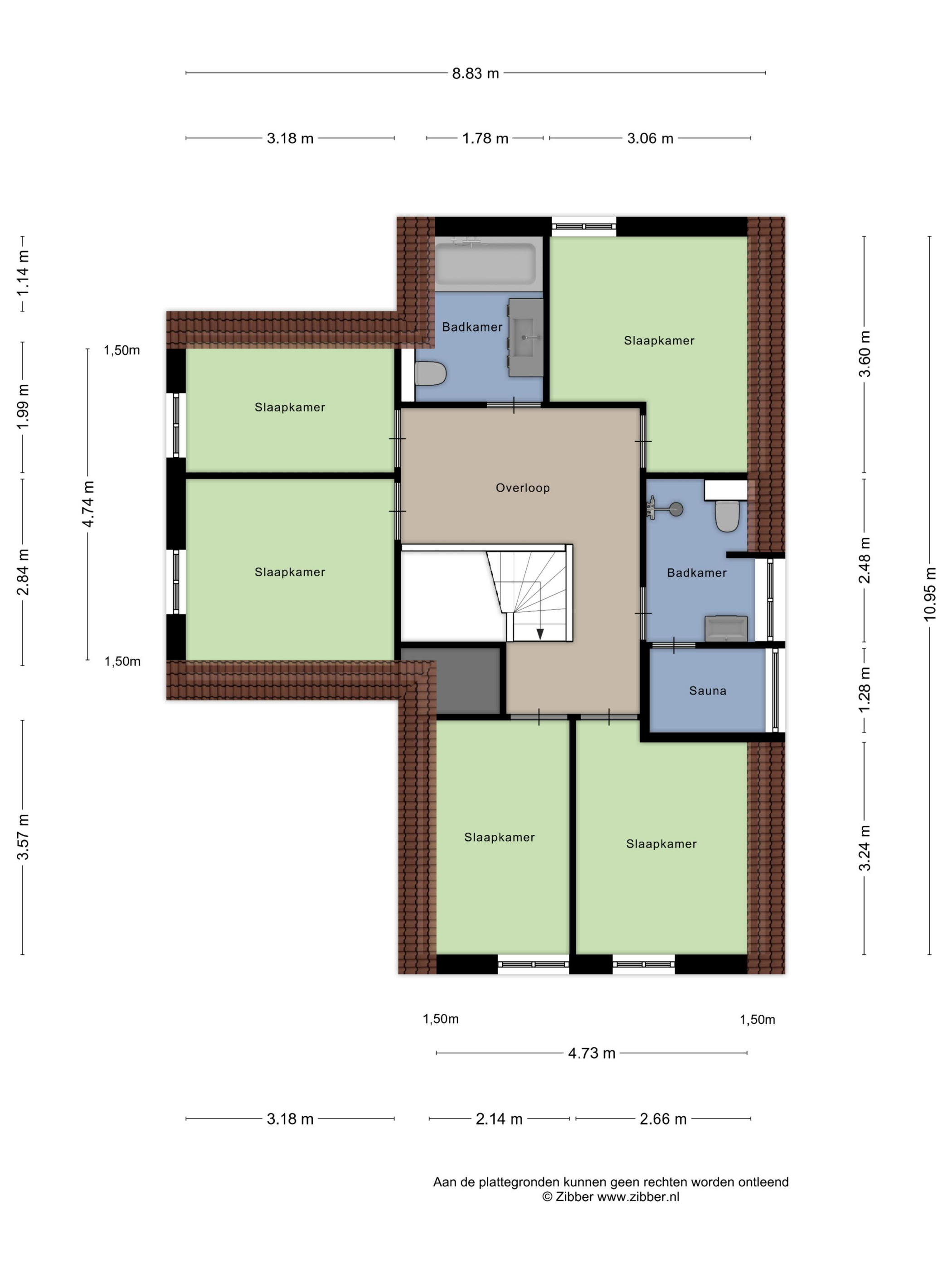
Indeling:
Begane grond:
Entree, hal met toilet, garderobe en trapopgang, slaapkamer met en suite badkamer, tuingerichte living met dubbele deuren, royale woonkeuken met inbouwapparatuur, ook met dubbele deuren naar de tuin. Parkeren op eigen erf. Prachtig aangelegde tuin met terrassen en steiger aan het water.

1e verdieping:
Royale overloop, 5 slaapkamers, 2 badkamers, waarvan 1 met inbouw sauna.

De 'Poort van Amsterdam' kenmerkt zich door maritieme recreatiewoningen met een centrale jachthaven en strand in het vakantiepark. Tot de faciliteiten op park behoren een binnenzwembad, mini golf, restaurant, indoor- & outdoor speeltuin, snackbar en mini market. Verhuur van fietsen en sup's.

Meer weten over de mogelijkheden van short stay-verhuur? Neem contact op voor meer informatie!

Noemenswaardig:
- Verhuurmogelijkheden voor short stay
- Grootste HOEK kavel 840 m2 EIGEN GROND
- Spectaculaire vergezichten
- Veel privacy
- 6 slaapkamers, 3 badkamers, waarvan 1 slaapkamer en badkamer op de begane grond
- Royale living en moderne grote woonkeuken
- Verwarming middels cv, goede isolatievoorzieningen
- Centrale jachthaven (vaste ligplaatsen in de verhuur, als plaatsen voor passanten)
- Parkeerplaatsen voor meerdere auto's zijn op eigen erf
- Allermooiste plek in de 'Poort van Amsterdam'!

Features

Transfer of ownership
price
€ 2.950 p.m.
Status
beschikbaar
Acceptance
in overleg
Construction
Kind of house
Eengezinswoning
Building type
vrijstaande woning
Construction period
2019
Energy rating
A
Roof type
samengesteld dak
Bedrooms
6
Bathrooms
3
Surface Areas And Volume
Living area
146 m2
Other indoor space
0 m2
Volume in cubic meters
482 m3
Plot size
840 m2
facilities
Mechanische ventilatie
Sauna
Aan water
Aan rustige weg
Vrij uitzicht
Buiten bebouwde kom
Baerz & Co Property Brochure

Brochure

Information / Viewing request

Videos

Photos

Floor Plans