Ons kantoor is lid van Baerz & Co Luxury Homes; een internationaal platform dat exclusieve woningmakelaars met elkaar verbindt. Neem contact op met ons secretariaat voor meer informatie over het landelijke aanbod, waarvan u hieronder een selectie kunt bekijken.

Landgoed for sale in OIRSCHOT

OIRSCHOT Heerenbeek 1 - 5688 MN The Netherlands


Jeanette van Haaften profile image
Jeanette van Haaften
Real Estate Agent
+31 (0)41 86 80 050
info@bijzonderwonen.com

Bijzonder Wonen Makelaardij
Heilige Geeststraat, 11
5301CP Zaltbommel
NETHERLANDS
+31 41 868 00 50
www.bijzonderwonen.com
info@bijzonderwonen.com

Living area
673m2
Plot size
9758m2
Bedrooms
5

Description

In fairytale location in the middle of the woods stands "NSW-Landgoed Heerenbeek", a monumental country estate in top condition with A+ label. The main house has a spacious coach house (Heerenbeek 2) and a barn for several cars.
The property stands on nearly an acre of leasehold land from the North Brabant Landscape Foundation, landscaped with mature trees, shrubs, lawn and a gazebo.

Hall, dining room and sitting room with fireplaces, high stucco ceilings and parquet flooring, fully equipped kitchen with high-end appliances and pantry on the first floor.
Upper hall with toilet, suite with dressing room and adjoining bathroom, two guest bedrooms with a shared 2nd bathroom and a large storage room on the second floor.
Landing with toilet, guest bedroom cum relaxation room with adjacent spa with walk-in shower, sauna and bathtub under the excellently insulated high roof on the second floor.
Municipal monuments

Gross volume: 2,155 m³
Living area: 673 m²
(of which 195 m2 in the coach house Heerenbeek 2)
Land area: 9.758 m²
Year built: 1864; rebuilt in 1998

First floor layout:
A long driveway leads to the majestic entrance hall. Adjacent to the hall are the living room, kitchen and utility room, where there is also an exterior door.
The completely nature-oriented living room consists of a sitting room and a dining room. There are two fireplaces and four pairs of French doors to the garden. The 3.60m high stucco ceilings combined with the amount of light through the high windows create a magnificent spatial experience. Double doors lead into the cozy eat-in kitchen. This fully equipped kitchen is furnished with a classic Tinello kitchen unit with a natural stone worktop, sink island and high-quality appliances. In the tower adjacent to the kitchen diner is a pantry. In the living kitchen are two pairs of double doors to the garden. The entire first floor has underfloor heating.

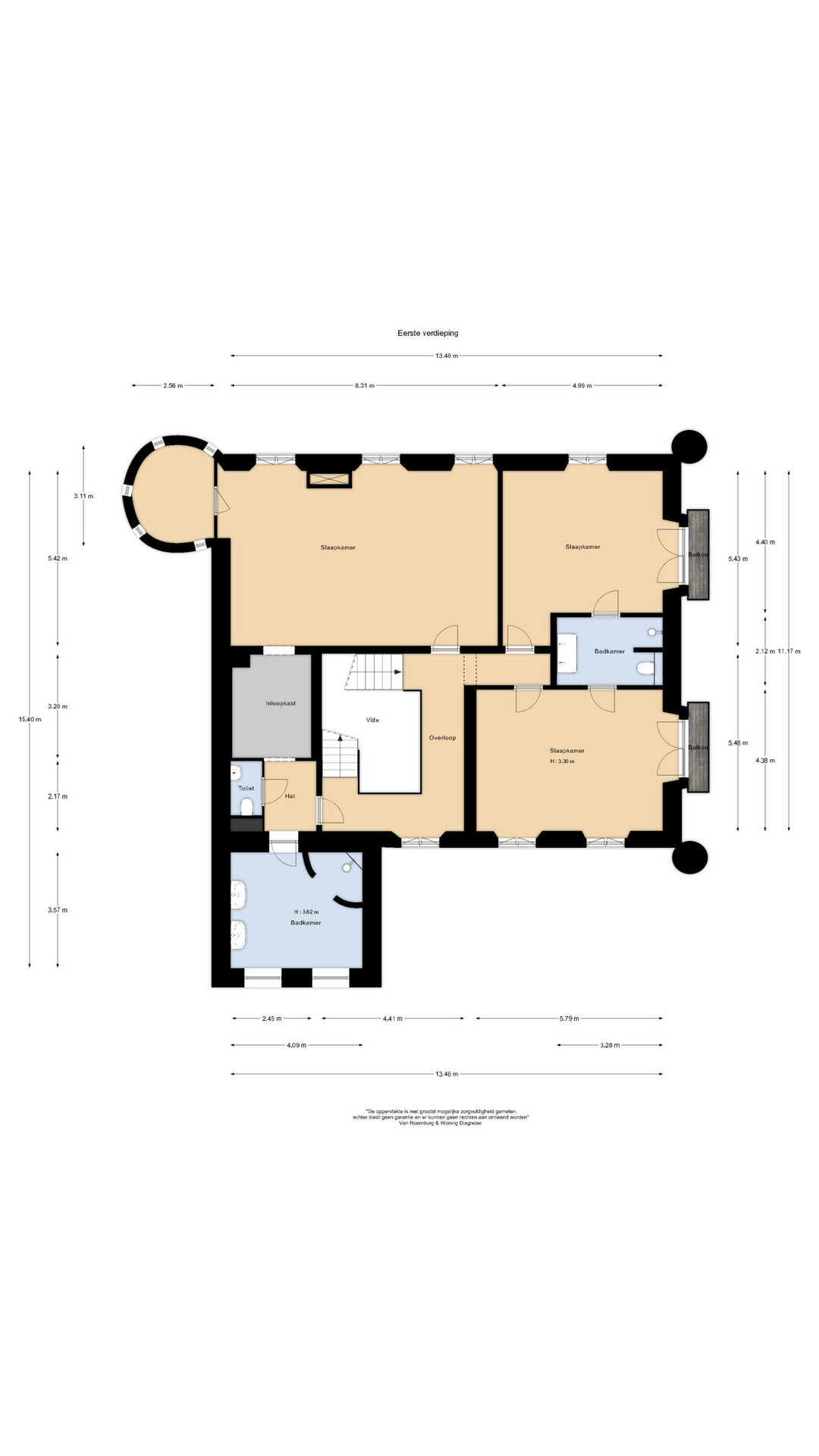
Second floor layout:
The imposing staircase leads to the second floor. The eye-catcher on this floor is the suite; a nature-oriented bedroom of 45 m2 with high stucco ceiling, three pairs of double doors to the French balconies, an adjoining dressing room and private bathroom. From this suite is also access to the tower where there is space for a shoe collection if desired. On this floor are two more bedrooms, also with French balconies. Between these bedrooms is the 2nd bathroom with double sink vanity, walk-in shower and toilet. On the landing is another separate 2nd toilet. The floor in the suite is covered with luxury carpet and the floors of the other two bedrooms are covered with parquet. This floor is also fully equipped with underfloor heating.

Layout coach house:
The detached coach house is divided into a garden-oriented independent workspace with pantry, toilet and storage space, a living room with loft, kitchen and bathroom on the first floor and a bedroom upstairs. On the side of the manor house are a practical indoor garden shed and garage. Recently built a large field barn with space for five cars. Of course, a charging connection is provided here.

Details:
The quiet and also strategic location of the estate with castle-like allure make it an ideal residence. Within 30 minutes you can reach Eindhoven airport, the High Tech Campus and Tilburg, among others, while Den Bosch is only 20 minutes away. In the immediate vicinity are extensive hiking trails to wander for hours through the beautiful Brabant woods. Surrounding the mansion is an English landscape garden with a pond, several lawns and many mature trees, including a magnificent monumental Caucasian wingnut and a Canadian poplar.
The mansion is characterized by white plastered facades, hipped roofs, hanging towers at the corners and one round corner tower with battlements. Although the original year of construction cannot be traced exactly, the history leads back to ± 1864. In 1998 the mansion was largely destroyed by fire and hereafter completely renovated, modernized and preserved with a lot of craftsmanship, love and attention. Partly due to the presence of 40 solar panels and two heat pumps, this has led to a unique energy label A+.
The object is suitable as an estate under the Natural Beauty Act, which entails various tax advantages, including exemption from transfer tax.
The buildings will be sold and the subsoil will be issued on a long lease.
The subsoil cannot become full ownership. The tax-deductible ground rent amounts to € 35.323 per year. The ground lease contract with the associated conditions will be drawn up in consultation with the Brabant Landscape.
Of both the main house and the coach house is a comprehensive inspection report drawn up by Monumentenwacht Noord-Brabant that can be viewed with serious interest.
If you are looking for a spacious property with allure to combine living and working, please make an appointment for a viewing. We will be happy to show you around.

Features

Transfer of ownership
price
€ 1.950.000 v.o.n.
Status
beschikbaar
Acceptance
in overleg
Construction
Kind of house
Landgoed
Building type
vrijstaande woning
Construction period
1998
Energy rating
A_P
Roof type
samengesteld dak
Bedrooms
5
Bathrooms
4
Surface Areas And Volume
Living area
673 m2
Other indoor space
0 m2
Exterior space attached to the building
3 m2
External storage space
47 m2
Volume in cubic meters
2155 m3
Plot size
9758 m2
facilities
Mechanische ventilatie
Alarminstallatie
Tv kabel
Rookkanaal
Sauna
Glasvezel kabel
Zonnepanelen
In bosrijke omgeving
Baerz & Co Property Brochure

Brochure

Information / Viewing request

Videos

Video Heerenbeek 1

360 Panoramas

360°
360 Panorama - Heerenbeek 1
360°
360 Panorama - Heerenbeek 1
360°
360 Panorama - Heerenbeek 1
360°
360 Panorama - Heerenbeek 1
360°
360 Panorama - Heerenbeek 1
360°
360 Panorama - Heerenbeek 1
360°
360 Panorama - Heerenbeek 1
360°
360 Panorama - Heerenbeek 1

Photos

Floor Plans