Ons kantoor is lid van Baerz & Co Luxury Homes; een internationaal platform dat exclusieve woningmakelaars met elkaar verbindt. Neem contact op met ons secretariaat voor meer informatie over het landelijke aanbod, waarvan u hieronder een selectie kunt bekijken.

Dubbel benedenhuis for sale in AMSTERDAM

AMSTERDAM Hobbemakade 30 A - 1071 XK The Netherlands


Eran Hausel profile image
Eran Hausel
Real Estate Agent
+31 6 46 11 94 28
info@heerenmakelaars.nl

Heeren Makelaars
Stadionweg 75
1077 SE Amsterdam
NETHERLANDS
+31 0204702255
www.heerenmakelaars.nl
info@heerenmakelaars.nl

Living area
135m2
Plot size
N/A
Bedrooms
3

Description

Hobbemakade 30A in Amsterdam

“Now, boys, don’t get caught watching the paint dry”

One of the many famous quotations from the actor Dennis Hopper, whose name this gorgeous ground floor apartment in the prestigious “The Glass House” bears. This is a high quality and luxurious apartment block of ten apartments with a car park in the basement.

This block was designed and finally completed in 2012, with an eye for detail and quality. The design provided for extra high ceilings and the use of predominantly glass in the façades on the garden side. The apartments are light, airy and spacious. The current owners finished off the apartment’s interior with a great deal of taste and an eye for detail which may be seen in the sturdy materials such as the herringbone pattern floors and the steel surrounds to the internal framing for doors and windows. Lots of details are repeated throughout the apartment. This apartment has a floor area of 135 m² and a garden of 41 m².

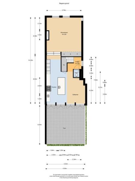
The layout of the apartment is as follows;

The generous entrance with a lift offers access to the apartment. Spacious hallway with separate toilet and cloakroom. You enter into the epicentre of the apartment - the open kitchen - which provides access to the spacious garden of 41 m2 through French windows. The luxurious and well-equipped kitchen is fitted with all the conveniences you can imagine. From the professional dishwasher to the several fridges, which make staying in this space an absolute joy. Here, you will also find a spacious cupboard under the stairs.

The living room is on the street side of the building and this means it has a gorgeous view out over the waters of the Boerenwetering. This area has a ceiling height of 3.90 metres and is fitted with a gas fireplace. There is a lovely view through from this space to the kitchen and garden, as well as to the freestanding bath.
You reach the landing of the bedroom floor up the internal staircase. The master bedroom is on the garden side with a second spacious bedroom next to it, with its own wardrobe section. The third room on this floor is currently being used as a walk-in wardrobe and has separate access to the central staircase. In the hallway there is a cupboard with the connections for the washing machine and tumble dryer as well as the location for the technical equipment.

The luxurious bathroom is situated in the middle of the floor and is fitted with a freestanding bath, separate shower and toilet, as well as a double washbasin. The window, which provides the necessary light, can be electrically adjusted from transparent to matte glass when you need the privacy.

There is a car park in the basement of the building. A parking space for two cars may be parked here, one behind the other. There is also a large external storage area in the basement, which belongs to the apartment.
The apartment is part of an active owners’ association. FREEHOLD.

Details:
- Year of construction: 2012
- Living floor space: 135 m²
- Storage: 20 m²
- Spacious garden of 41 m²
- Extra deep parking place (2.35m/9m) for two cars
the purchaser
- FREEHOLD, which means no ground rent
- Active owners’ association. Service cost €1000,- per month (including the service costs for the car park €200,- per month). Service costs include an advance on heating and hot water costs
- The block makes use of geothermal energy with its own heat and cold storage. Underfloor heating and cooling in the
apartment
- Caretaker available
- Professional manager: VvE beheer Amsterdam
- Prime location in Amsterdam Zuid
- Finished off to a high standard
- Initial preparatory work for a B&O sound system has been installed
- Living room with gas fireplace and a height of 3.93 m!
- Additional entrance on the first floor
- Two good-sized bedrooms and a dressing room (which could also be used as a 3rd bedroom)

We have gathered this information with the greatest of possible care. However, we will not accept liability for any incompleteness, inaccuracy or any other matter nor for the consequences of such. All measurements and surfaces stated are indicative. The purchaser has a duty to investigate any matter that may be of importance to him or her. The estate agent is the adviser to the seller with regard to this residence. We advise you to engage an (NVM-registered) expert estate agent who will guide you through the purchasing process. Should you have any specific desires with regard to the residence, we advise you to make these known as soon as possible to your purchasing estate agent and have an independent investigation carried out into such matters. If you do not engage an expert, you will be deemed as considering yourself to be sufficiently expert to be able to oversee all matters that could be important. The NVM terms and conditions are applicable.

Features

Transfer of ownership
price
€ 1.550.000 k.k.
Status
verkocht onder voorbehoud
Acceptance
in overleg
Construction
Kind of house
Dubbel benedenhuis
Building type
appartement
Construction period
2012
Energy rating
A_PP
Bedrooms
3
Bathrooms
1
Surface Areas And Volume
Living area
135 m2
Other indoor space
0 m2
External storage space
8 m2
Volume in cubic meters
387 m3
facilities
Mechanische ventilatie
Tv kabel
Aan water
In woonwijk
Baerz & Co Property Brochure

Brochure

Information / Viewing request

Videos

Video Hobbemakade 30 A
Video Hobbemakade 30 A

Photos

Floor Plans