تقدم فيلا ساسينهايم دعوة للتمتع بالمساحة والخصوصية على أرض تبلغ مساحتها 1130 متر مربع ضمن حي سكني راقٍ في هولندا. تجمع هذه الفيلا بين طابعها الأصلي الذي يعود إلى عام 1951 ومساحة معيشة تبلغ 199 متر مربع، لتقدم تناغماً بين العناصر الكلاسيكية والمعاصرة. عند الوصول، ترحب بك الممرات الفسيحة مع مواقف واسعة للسيارات، لتقودك إلى مساحات داخلية مشرقة تتوزع حول غرفة معيشة على شكل حرف L وزجاج ملون أصلي وأرضيات باركيه. ينتقل الضوء بسلاسة نحو الحديقة الشتوية الحديثة وغرفة معيشة إضافية، وكلاهما يقع فوق أرضية مبلطة مدفأة ويوفر خيارات مرنة للاسترخاء أو الترفيه.
في الطابق الأول، هناك غرفتا نوم، كل واحدة بمساحة تقارب 15 متر مربع، تقعان في الجزء الخلفي لضمان الهدوء. يضم الجناح الرئيسي حمامًا داخليًا مع دش، بينما تفتح غرفة النوم الثانية على شرفة مواجهة للجنوب الغربي. كما يوجد حمام كامل ثانٍ مع حوض استحمام ودش ومدخلين منفصلين، مما يعزز مستوى الراحة. يشير العلّيّة، التي يبلغ ارتفاعها عند الجِرْوَة 2,3 متر، إلى إمكانية التخصيص المستقبلي حسب الطلب.
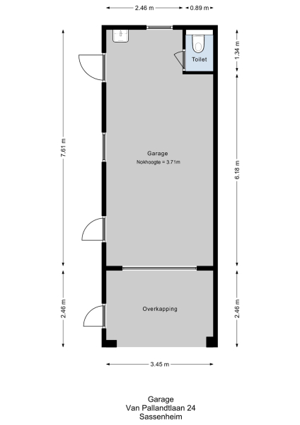
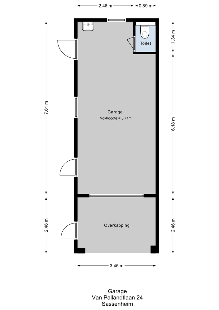
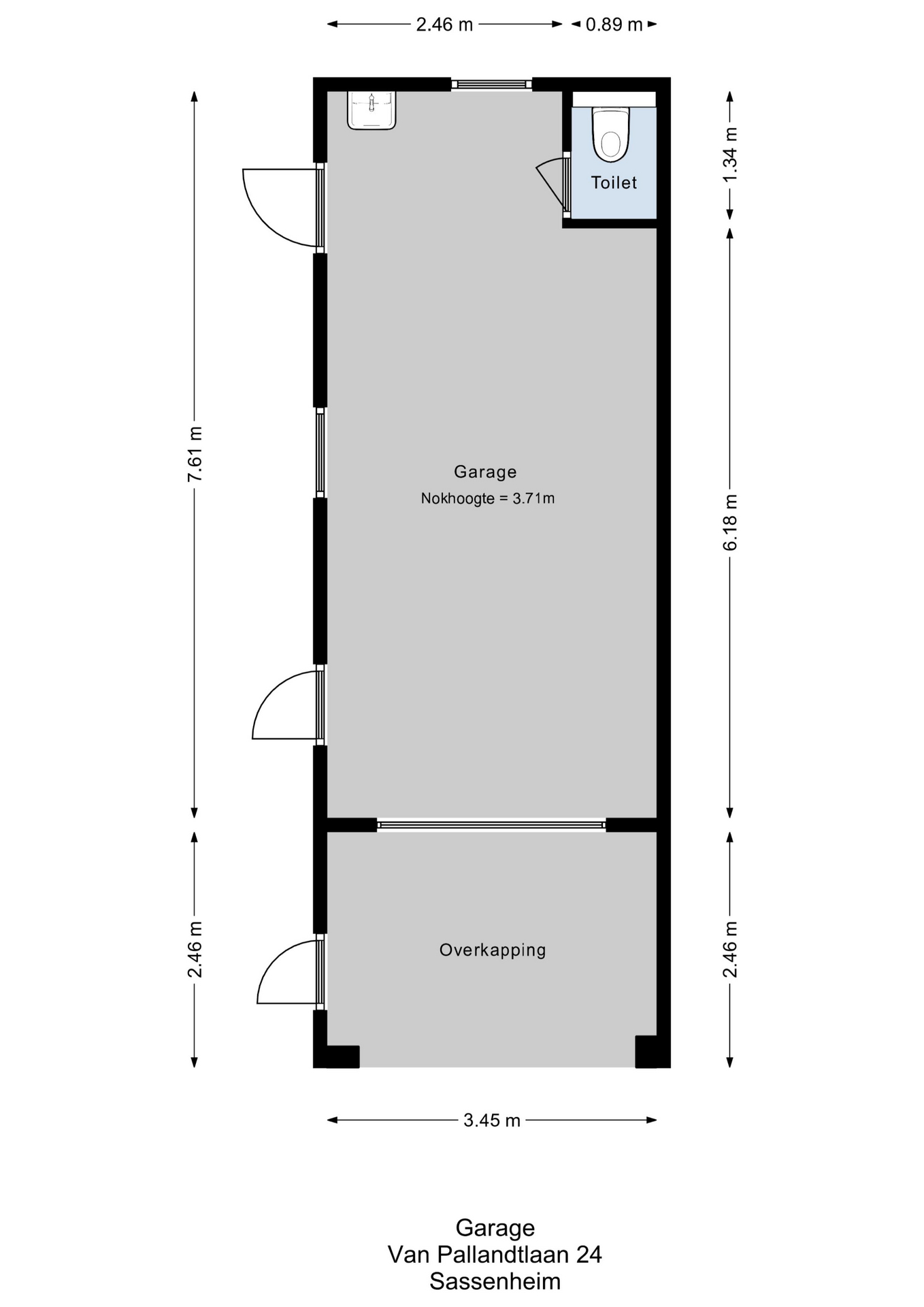
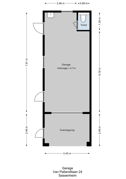
الطابق السفلي شبه الكامل، الذي يمكن الوصول إليه من نقطتين، يُستخدم حاليًا كغرفة غسيل وتخزين، لكنه يحمل إمكانيات ليصبح صالة رياضة أو سينما منزلية أو ملاذًا صحيًا. في الخارج، تتزيّن الحديقة المنسقة بممرين للسيارات ومرآبين بمساحة 26 و16 متر مربع، مما يوفر مواقف وخدمات وفيرة. فيلا ساسينهايم متصلة بقلب مرافق ساسينهايم — من متاجر ومدارس ومطاعم — بالإضافة إلى الطرق الرئيسية مثل A44 وN206، التي توفر مسارات سريعة إلى لايدن وأمستردام وهارلم ولاهاي، إلى جانب وسائل النقل العام الموثوقة. تعرض هذه الفيلا الفريدة في ساسينهايم مزيجًا من السحر الراسخ مع إمكانيات لنمط حياة راقٍ وتطلعات مميزة.
استكشف Sassenheim مع Baerz، مستشارك الموثوق للعثور على العقارات الشخصية
يتطلب التنقل في سوق ساسنهايم الرفيع خصوصية دقيقة وخبرة محلية عميقة. العقارات غير المدرجة والمفاوضات السرية شائعة. يتيح المستشارون الموثوق بهم الوصول الحصري إلى العروض ويمثلون مصالح المشترين في هيكلة الصفقات والتفاوض السعري، مع فهم متعمق للمتطلبات النظامية وجدوى الاستثمار. خبرتهم ضرورية لتعظيم الفرص في هذا المجتمع المحصور.
تجنب المزالق الشائعة
غالبًا ما يهدر المشترون الدوليون وقتًا ثمينًا أثناء التنقل بين القوائم المكررة أو القديمة أو المضللة عبر الإنترنت، خاصةً أن ما يقرب من 30% من العقارات الفاخرة لا تظهر في السوق على الإطلاق.
يمثل وكلاء البائعين مصالح البائع وليس مصالحك، وحتى مجرد الاستفسار عن عقار قد يؤدي إلى تسجيلك كـ "عميل" لديهم دون موافقتك.
مع Baerz Property Finders & Advisors، يمكنك تجنب هذه المزالق تمامًا.
نحن نعمل حصريًا نيابة عنك، ونقدم لك تمثيلاً مستقلاً، وإرشادًا شفافًا، وإمكانية الوصول إلى كل عقار متاح، بما في ذلك الفرص الخاصة وغير المطروحة في السوق والتي لا يراها الآخرون أبدًا.
هل ترغب في معرفة كيفية الحصول على مستشار عقاري شخصي؟ اتصل بنا لتتعرف على كيفية تمثيل مصالحك وفتح السوق بالكامل أمامك.