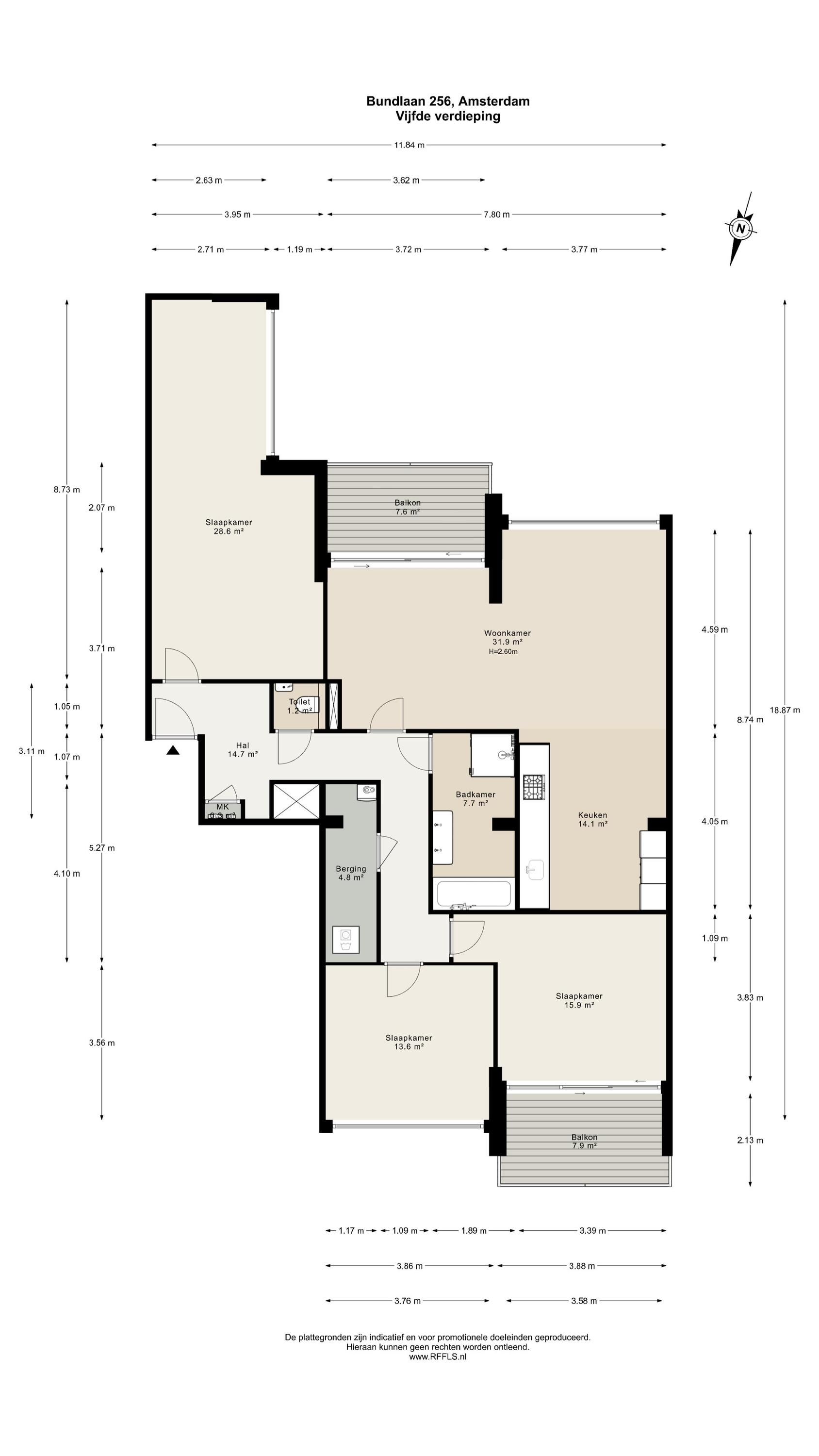
شقة أمستردام تجسّد أسلوب الحياة المعاصرة في منطقة أمستردام-نور المُجددة، حيث الفخامة الراقية تقع بمحاذاة نهر آي. هذا المسكن الجاهز للسكن بمساحة 137 م²، والذي اكتمل إنشاؤه في عام 2021 ضمن المجمع المرموق 'ذا جريد'، يضم ثلاث غرف نوم واسعة، مساحة معيشة مشرقة، وتصنيف طاقة استثنائي A+++. النوافذ الكبيرة تغمر كل غرفة بضوء النهار الطبيعي، بينما توفر التدفئة تحت الأرضية ومضخة حرارية حديثة الراحة طوال العام.
تندمج المطبخ المفتوح بسلاسة مع منطقة المعيشة المقابلة للجنوب، ليقود إلى شرفة تستقبل الهواء الطلق. شرفة ثانية في الجهة الخلفية تعزز تجربة المعيشة، وتلتقط وتيرة الحي الهادئة. يحتوي الحمام الواسع على حوض استحمام، ودش مستقل، وحوض مزدوج. الأرضيات عالية الجودة في جميع أنحاء الشقة والعزل المدروس يبرزان اهتمام العقار بالجوانب المستدامة.
يتمتع السكان بمواقف سيارات خاصة، ومساحة تخزين تتجاوز 7 م²، بالإضافة إلى الاستفادة من بهو ترحيبي، ومستودع داخلي للدراجات، وغرفة طرود. 'ذا جريد' يتمتع بموقع استراتيجي من حيث الاتصال، مع إمكانية الوصول السريع بالعبّارة إلى محطة أمستردام المركزية، والقرب من خط المترو الشمالي/الجنوبي وطريق A10 الدائري. تشمل المرافق القريبة المتاجر الكبرى والمدارس والمقاهي المعروفة ووجهات ثقافية مثل متحف آي للأفلام. هذه الشقة المعروضة للبيع في أمستردام تمثل ملاذاً هادئاً ومنصة للحياة المدنية، وتوفر أسلوب معيشة راقياً في واحدة من أكثر مناطق المدينة ديناميكية.
استكشف Amsterdam مع Baerz، مستشارك الموثوق للعثور على العقارات الشخصية
يتطلب التنقل في السوق الفاخر بأمستردام خبرة محلية ومعرفة تفصيلية واحترافية في التفاوض. يقدم أفضل المستشارين فرص الوصول إلى العروض الخاصة، وشرح قواعد الملكية الدقيقة، وتحديد القيمة الحقيقية في سوق نادرًا ما تتوفر فيه الفرص للعلن. توفر فرق الاستشارات تدقيقًا صارمًا للأصول وخدمة التمثيل، ما يقوي موقفك أثناء التفاوض ويضمن عملية سلسة ويحمي خصوصيتك طوال الإجراءات.
تجنب المزالق الشائعة
غالبًا ما يهدر المشترون الدوليون وقتًا ثمينًا أثناء التنقل بين القوائم المكررة أو القديمة أو المضللة عبر الإنترنت، خاصةً أن ما يقرب من 30% من العقارات الفاخرة لا تظهر في السوق على الإطلاق.
يمثل وكلاء البائعين مصالح البائع وليس مصالحك، وحتى مجرد الاستفسار عن عقار قد يؤدي إلى تسجيلك كـ "عميل" لديهم دون موافقتك.
مع Baerz Property Finders & Advisors، يمكنك تجنب هذه المزالق تمامًا.
نحن نعمل حصريًا نيابة عنك، ونقدم لك تمثيلاً مستقلاً، وإرشادًا شفافًا، وإمكانية الوصول إلى كل عقار متاح، بما في ذلك الفرص الخاصة وغير المطروحة في السوق والتي لا يراها الآخرون أبدًا.
هل ترغب في معرفة كيفية الحصول على مستشار عقاري شخصي؟ اتصل بنا لتتعرف على كيفية تمثيل مصالحك وفتح السوق بالكامل أمامك.